Large serviced plot with safeguarded planning for a four‑bed coastal home.
Elevated coastal plot with panoramic southerly sea views
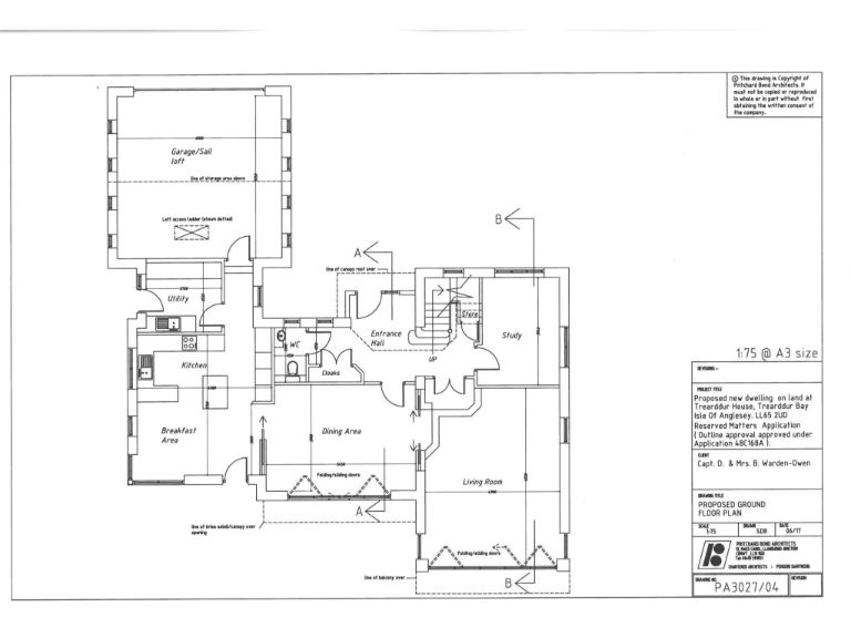
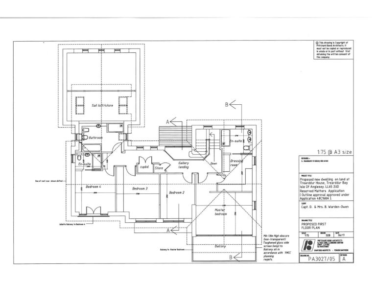
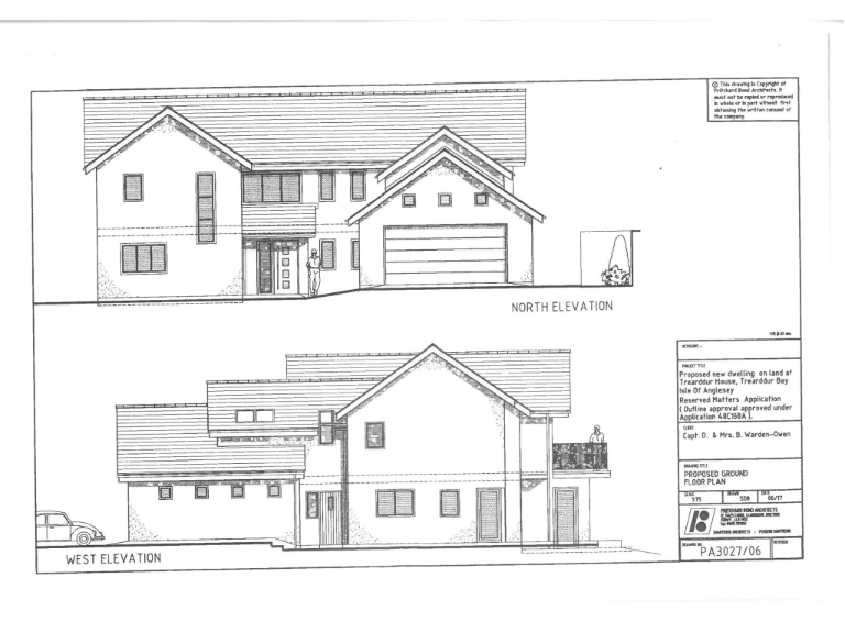
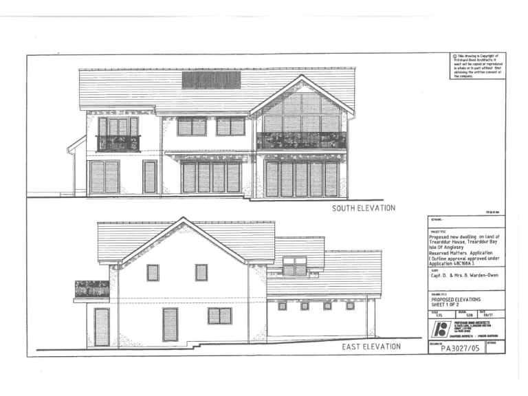
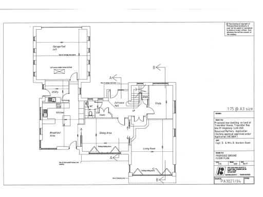
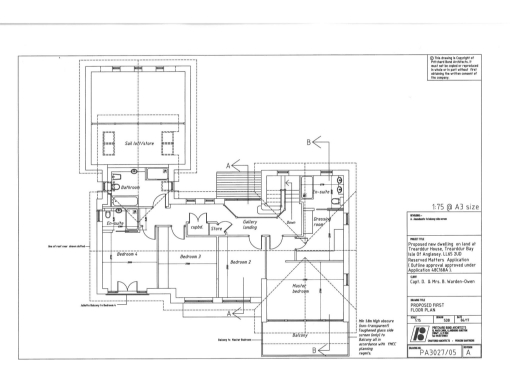
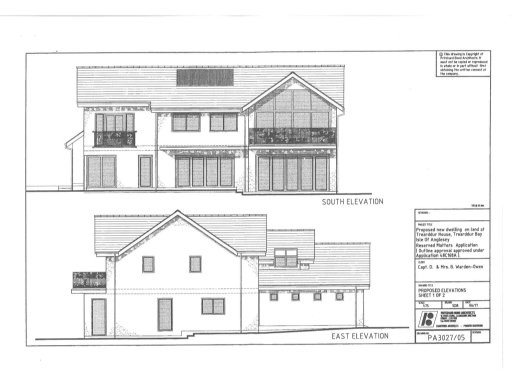
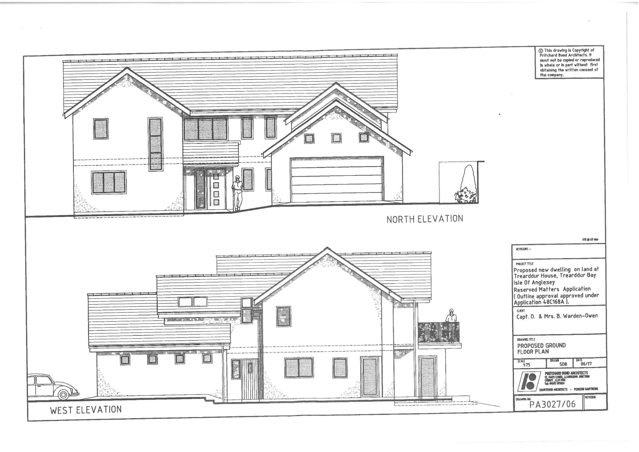
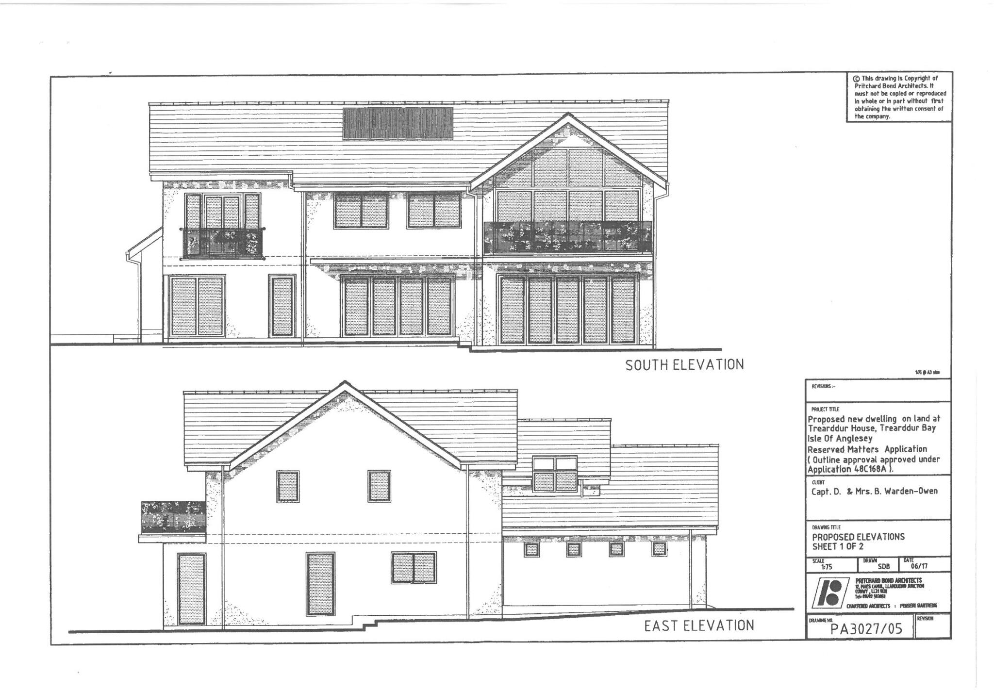
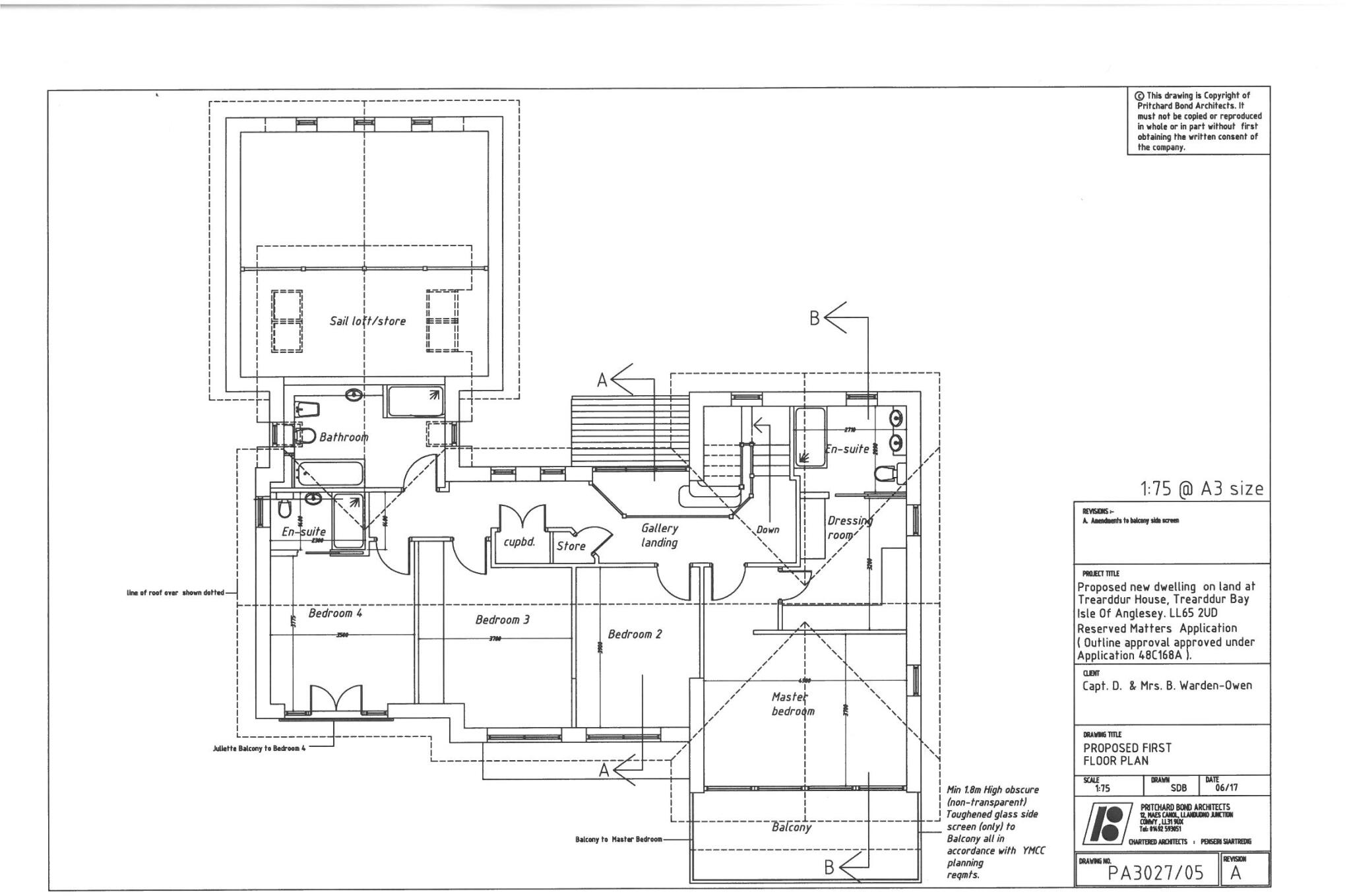
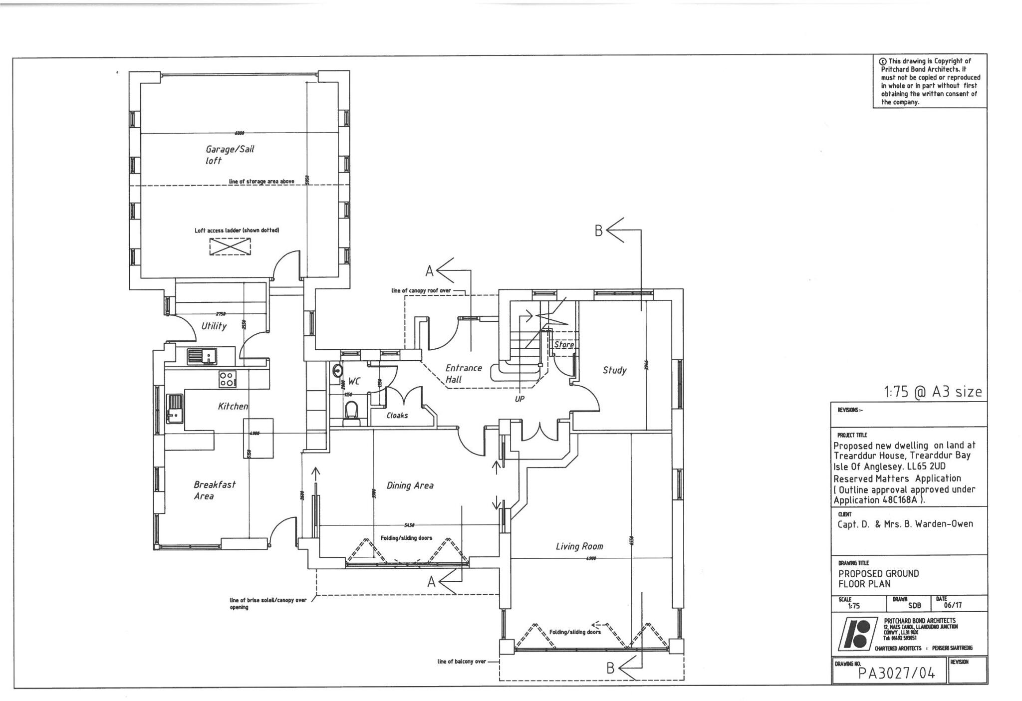
A rare, elevated building plot commanding open southerly sea views across Trearddur Bay, ideal for a spacious family home or high-value holiday property. Planning permission (46C168A/FR) with reserved matters (46C168D/DA) has been safeguarded by a certificate of proposed use/development (material start) dated 19 Dec 2019, allowing construction of an architect-designed two-storey, four-bedroom detached house with terraces and parking. The site is approximately 0.38 acres (very large plot) and benefits from excellent mobile signal, off-street parking and mains water and gas to the site.
Practical matters are already addressed: a permit for a private sewage treatment plant has been secured from Natural Resources Wales and is transferable to the purchaser, reducing a common delivery risk. The elevated orientation means principal living rooms and bedrooms are planned to enjoy southerly panoramic views over the bay, main beach and distant mountains — a strong value driver for resale or holiday-let potential. Access is via a private drive off Trearddur Court, a short walk to village amenities and beaches.
Buyers should note material drawbacks plainly: the wider area records above-average crime and very high deprivation indices, and broadband speeds are slow — important considerations for permanent occupiers or remote workers. The consent is safeguarded by a 2019 material start certificate rather than a fresh recent discharge of conditions; purchasers should verify remaining planning condition obligations and build costs. Council tax and some service connection costs are unknown and the site will require completion of the sewage connection and on-site build works.
3 bedroom bungalow for sale in Lon Isallt, Trearddur Bay, LL65 — £750,000 • 3 bed • 1 bath • 1267 ft²
3 bedroom bungalow for sale in Penrallt Road, Trearddur Bay, Holyhead, Isle of Anglesey, LL65 — £350,000 • 3 bed • 1 bath • 689 ft²
Land for sale in Sandy Lane, Rhosneigr, Anglesey, LL64 — £475,000 • 1 bed • 1 bath
4 bedroom detached house for sale in Four Mile Bridge, Holyhead, Isle of Anglesey, LL65 — £850,000 • 4 bed • 3 bath • 2466 ft²
4 bedroom bungalow for sale in Lon Crecrist, Trearddur Bay, Holyhead, Isle of Anglesey, LL65 — £380,000 • 4 bed • 2 bath
4 bedroom detached house for sale in Lon St. Ffraid, Trearddur Bay, Holyhead, Isle of Anglesey, LL65 — £599,950 • 4 bed • 3 bath • 1791 ft²










































