Chain-free four-bed with double garage and south-facing garden.
Four bedrooms and three bathrooms (two en-suites)
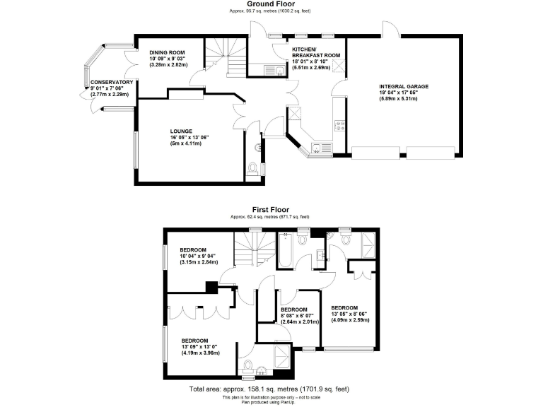
This roomy four-bedroom, three-bath detached house sits in a quiet cul-de-sac in Green Street Green and suits a growing family looking for space and convenience. At about 1,701 sqft the layout provides two reception rooms, a conservatory, a kitchen/breakfast room and a useful utility room, while two bedrooms have en-suite facilities which eases morning routines.
Outside, the south-facing landscaped rear garden backs onto mature greenery for privacy, and the property benefits from an integral double garage plus off-street parking for three vehicles. The house is freehold and offered chain free, simplifying a quick move.
Local amenities and transport are strong: well-regarded primary and secondary schools are nearby, Chelsfield mainline station and local shops are within easy reach, and broadband and mobile coverage are both excellent. The area is very affluent with low crime and comfortable suburbia character.
Practical points to note: the property dates from the late 1990s/early 2000s and has double glazing (installation date not recorded). Council tax sits in Band F, so ongoing running costs will be higher than average. Overall this is a family-focused detached home offering generous living space and parking with scope to personalise where desired.
4 bedroom detached house for sale in Glentrammon Avenue, Orpington, BR6 — £700,000 • 4 bed • 2 bath • 1505 ft²
4 bedroom detached house for sale in Wolsey Mews, Orpington, BR6 — £825,000 • 4 bed • 2 bath • 1604 ft²
4 bedroom detached house for sale in Warren Road, Orpington, BR6 — £735,000 • 4 bed • 2 bath • 1536 ft²
3 bedroom semi-detached house for sale in Glentrammon Road, Green Street Green, BR6 — £550,000 • 3 bed • 2 bath • 1181 ft²
3 bedroom detached house for sale in Oak Road, Green Street Green, Orpington, Kent, BR6 6BB, BR6 — £600,000 • 3 bed • 1 bath • 1088 ft²
4 bedroom detached house for sale in Wyvern Close, Orpington, BR6 — £925,000 • 4 bed • 2 bath • 1921 ft²






















































































