**Standout Features:**
- Ideal location near town, railway station, and Royal Harbour
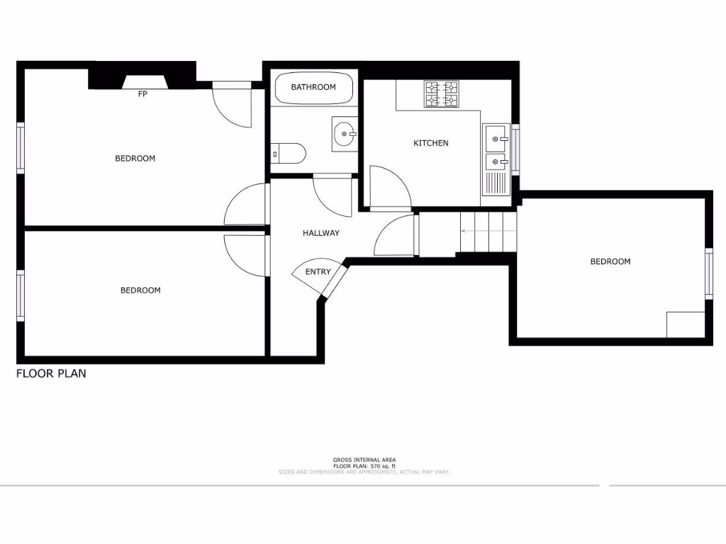
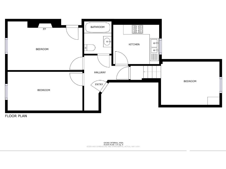
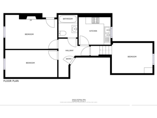
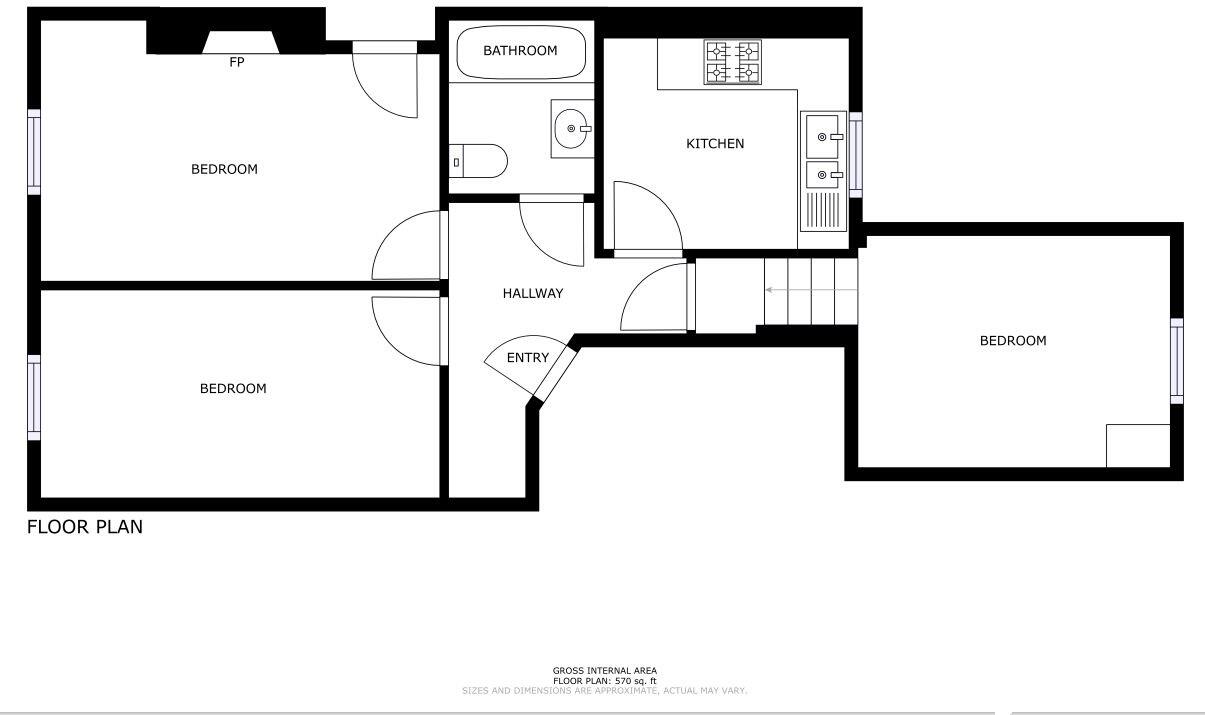
- Two-bedroom split-level apartment on the second floor
- Modern fitted kitchen and bathroom
- Long lease with share of freehold
- No forward chain, perfect for first-time buyers or investors
- Well-maintained building
- Excellent mobile signal and fast broadband
**Property Summary:**
This charming two-bedroom split-level apartment offers a unique opportunity for first-time buyers or savvy investors. Located within close proximity to the vibrant town center, railway station, and picturesque Royal Harbour, this property places convenience at your doorstep. The modern fitted kitchen and bathroom create a stylish living space, enhancing the apartment's appeal. With its no forward chain status, this residence promises a hassle-free purchasing experience.
Retaining Victorian charm with high ceilings and large windows, potential buyers will appreciate the decorative order of the interior. The long lease and share of the freehold provide added reassurance for future ownership. While the building is well-maintained, prospective buyers should be aware of the presence of original features like solid brick walls without insulation, typical of the period, which may require some maintenance for energy efficiency.
Take advantage of this rare opportunity to own a piece of Ramsgate's rich history and enjoy the comfort of city living close to the sea—this property is a must-see. Don't wait too long to schedule your viewing and explore the potential of this delightful home!
2 bedroom flat for sale in Wellington Crescent, Ramsgate, CT11 — £224,950 • 2 bed • 1 bath • 561 ft²
2 bedroom flat for sale in 26 Victoria Road, Ramsgate, CT11 — £149,950 • 2 bed • 1 bath • 599 ft²
2 bedroom flat for sale in Wellington Crescent, Ramsgate, Kent, CT11 — £245,000 • 2 bed • 1 bath • 634 ft²
2 bedroom flat for sale in Truro Road, Ramsgate, Kent, CT11 — £200,000 • 2 bed • 1 bath • 586 ft²
2 bedroom flat for sale in St Mildreds Road, Ramsgate, Kent, CT11 — £169,950 • 2 bed • 2 bath • 676 ft²
2 bedroom terraced house for sale in Wellington Crescent, Ramsgate, CT11 — £245,000 • 2 bed • 1 bath • 601 ft²


















































































