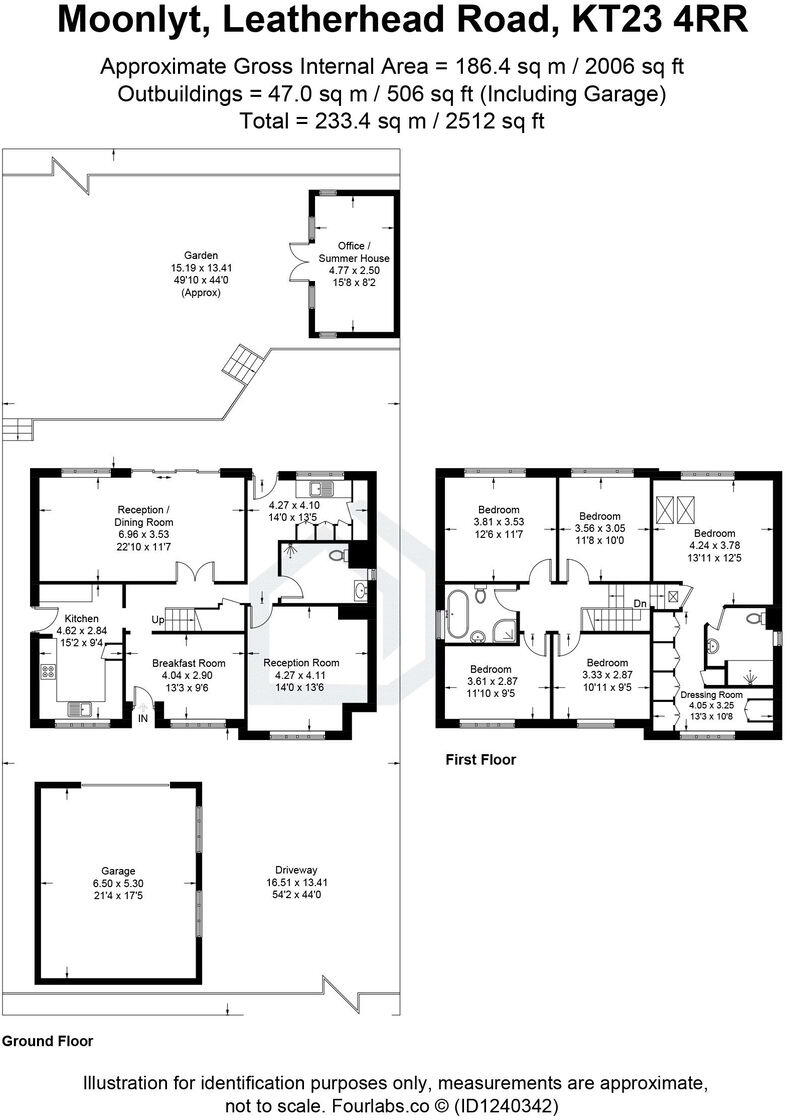
Chain-free five-bedroom detached home with annex potential and private garden near top schools..
Chain free five-bedroom detached family home, approx. 2,004 sq ft
Right wing with independent underfloor heating, boiler and tank — annex potential
Double garage with stairs to heated extra floor — conversion opportunity
Private garden with outbuilding/home office and air conditioning
Two downstairs rooms and two bedrooms have air conditioning fitted
Built 1967–75; cavity walls assumed uninsulated — modernisation likely
Council tax noted as quite expensive; EPC current D (66) with potential C (79)
Excellent location for top local schools, Bookham/Leatherhead and commuter links
Chain-free five-bedroom detached house on a large plot, offering flexible family living and clear annex potential. The ground floor provides three reception rooms, a separate kitchen, utility and wet room; the right wing has its own underfloor heating, boiler and water tank, making it suitable for a self-contained annexe or multi-generational use. A double garage with stairs to an additional heated floor adds further scope for conversion or home studio space.
The principal bedroom includes a dressing area and en-suite, and two further bedrooms plus two ground-floor rooms and the outbuilding have air conditioning for year-round comfort. The private rear garden includes an outbuilding currently used as an office, ideal for remote working. At about 2,004 sq ft over multiple storeys, the house is well sized for a large family and moments from highly regarded schools, Bookham and Leatherhead high streets, and fast commuter links (A3, M25, Leatherhead station).
Practical considerations are straightforward: the property dates from the late 1960s–1970s and will suit buyers prepared to update certain elements. Cavity walls are assumed to have no added insulation; some internal modernisation is likely to achieve higher energy performance. Council tax is described as quite expensive. Overall this is a versatile, well-located family home offering immediate accommodation with sensible scope for improvement or rental/annexe income.
5 bedroom detached house for sale in Solecote, Bookham, Surrey, KT23 3EQ, KT23 — £1,050,000 • 5 bed • 2 bath • 2181 ft²
5 bedroom detached house for sale in Kidborough Down, Great Bookham, KT23 — £1,125,000 • 5 bed • 2 bath • 2632 ft²
5 bedroom detached house for sale in Fiona Close, Great Bookham, KT23 — £1,495,000 • 5 bed • 3 bath • 2764 ft²
4 bedroom detached house for sale in The Copse, Fetcham, KT22 — £850,000 • 4 bed • 2 bath • 1472 ft²
5 bedroom detached house for sale in Post House Lane, Great Bookham, Leatherhead, KT23 — £1,050,000 • 5 bed • 3 bath • 2233 ft²
5 bedroom detached house for sale in Maddox Lane, Great Bookham, KT23 — £1,325,000 • 5 bed • 3 bath • 2767 ft²


























































































































































