**Standout Features:**
- Two double bedrooms with modern design
- Newly built with occupancy expected by February 2025
- Driveway parking for convenience
- Stunning coastal views
- Located within walking distance to local schools
- 10-year warranty for added peace of mind
- Energy-efficient features including double glazing and central heating
**Potential Concerns:**
- Situated in an area classified as very deprived
- Average mobile signal and fast broadband speeds
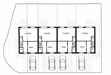
Discover your ideal home in this charming new build property located in Pennar, Pembroke Dock. Perfectly suited for families or first-time buyers, this modern end-of-terrace house features two spacious double bedrooms and an open-plan living space that invites in abundant natural light. With a contemporary design, sleek finishes, and a small front garden, the property encourages ease of maintenance and comfort.
Enjoy the delightful twist of stunning coastal views right from your living room, complemented by the convenience of driveway parking. Just a short stroll away from schools and various local amenities, this home presents an opportunity for relaxation and community living. Despite its appealing location, it’s essential to note that the area is classified as very deprived, which may influence your decision.
With a 10-year warranty, you can move in worry-free—schedule your viewing today and imagine the lifestyle that awaits you in this wonderful home!
2 bedroom terraced house for sale in Stranraer Road, Pennar, Pembroke Dock, Pembrokeshire, SA72 — £140,000 • 2 bed • 1 bath • 1260 ft²
3 bedroom terraced house for sale in Plot 2, Stranraer Avenue, Pennar, Pembroke Dock, SA72 — £155,000 • 3 bed • 2 bath
2 bedroom end of terrace house for sale in Stranraer Road, Pennar, Pembroke Dock, Pembrokeshire, SA72 — £145,000 • 2 bed • 2 bath • 575 ft²
2 bedroom end of terrace house for sale in Stranraer Road, Pennar, Pembroke Dock, Pembrokeshire, SA72 — £145,000 • 2 bed • 2 bath • 554 ft²
2 bedroom terraced house for sale in Stranraer Road, Pennar, Pembroke Dock, Pembrokeshire, SA72 — £140,000 • 2 bed • 2 bath
3 bedroom terraced house for sale in Stranraer Avenue, Pennar, Pembroke Dock, Pembrokeshire, SA72 — £155,000 • 3 bed • 2 bath


















