EX20 3LX - 4 bedroom detached house for sale in Hatherleigh, Okehampto…

View on Property Piper

4 bedroom detached house for sale in Hatherleigh, Okehampton, Devon, EX20

Summary - Marshford Farm, Hatherleigh, Okehampton, Devon EX20 3LX

4 bed 2 bath Detached

**Standout Features:**
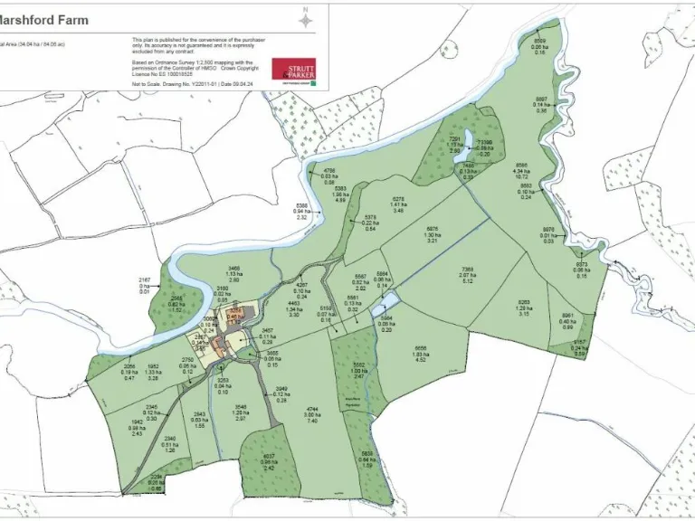
- 84-acre amenity/livestock farm with pasture and woodland
- Characterful four-bedroom farmhouse (1,962 sq ft)
- Multiple outbuildings totaling 8,676 sq ft offering development potential
- Direct river frontage with 1.5 miles of double bank fishing rights
- Secluded rural location with no public footpaths crossing the property

**Summary:**
Marshford Farm is a unique 84-acre sanctuary nestled in the enchanting Devon countryside, offering an unlisted four-bedroom farmhouse brimming with character. Spanning nearly 2,000 sq ft, the home boasts rustic features like exposed beams and original fireplaces, creating a warm, inviting atmosphere. The ample outbuildings present exciting conversion opportunities, ideal for those looking to develop a hobby farm or additional living accommodations (subject to planning consent).

Surrounded by lush pastures and productive woodlands, the estate boasts direct access to the River Lew, with an impressive 1.5 miles of fishing rights, perfect for nature enthusiasts. The vast grounds ensure utmost privacy with no public footpaths in sight, creating a serene retreat for families or investors seeking a peaceful lifestyle. While the property benefits from essential amenities like fibre broadband, potential buyers should be aware of certain maintenance considerations, including a private drainage system that may not be compliant with current regulations.

Situated just 2.7 miles from Hatherleigh and 7 miles from Okehampton, residents can enjoy local shops, schools, and vibrant community activities. Don’t miss out on this rare opportunity to own a slice of idyllic country living—invest in the serene potential of Marshford Farm today!

Property Details

Brochure Descriptions

Image Descriptions

Floorplan Description

Rooms

Textual Property Features

Detected Visual Features

Nearby Schools

Nearest Bars And Restaurants

,,,,}

Nearest General Shops

,,}

Nearest Grocery shops

,,}

Nearest Supermarkets

,,}

Nearest Religious buildings

,,}

Nearest Medical buildings

,,,}

Nearest Leisure Facilities

,,,,}

Nearest Tourist attractions

,,}

Nearest Train stations

,,,,}

Nearest Bus stations and stops

,,,,}

Nearest Hotels

,,}

Tags

Local Market Stats

Similar Properties

Meta

High Res Images

Compatible Images

Low res Images

Thumbnails

Raw Images

High Res Floorplan Images

Compatible Floorplan Images

Low res Floorplan Images

FloorplanImages Thumbnail

Raw Floorplan Images