**Standout Features:**
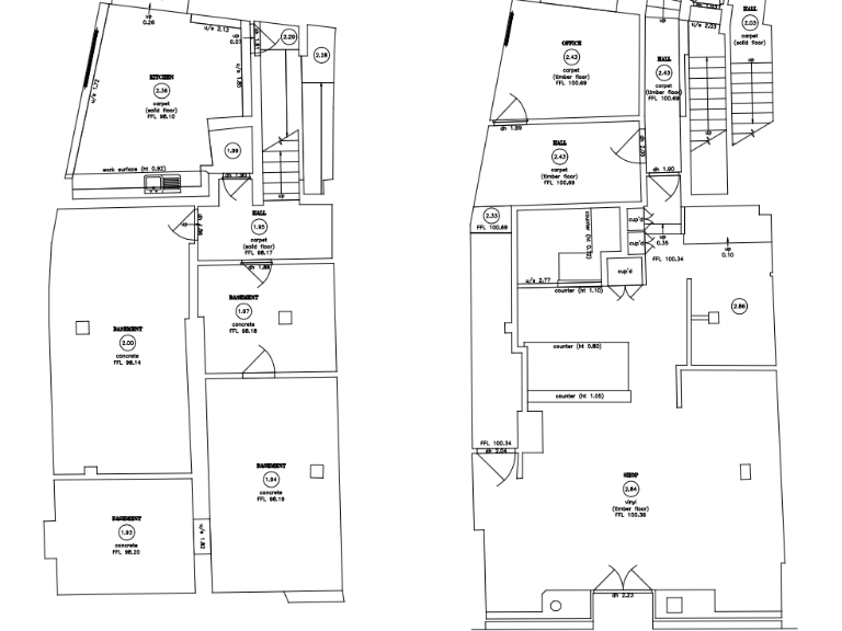
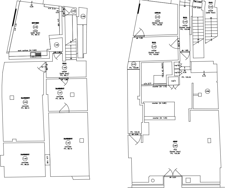
- **Extensive Retail Space:** Approximately 1,836.53 sq ft over ground and lower ground levels.
- **Prime Location:** Positioned on the bustling High Street of central Abingdon, offering excellent visibility.
- **High-Impact Frontage:** Features a striking 7.5m glass display area.
- **Versatile Usage:** Eligible for a variety of applications under Class E, ideal for various small to medium enterprises.
- **Accessibility:** Ready for immediate occupation with easy-to-customize interiors.
- **999-Year Lease:** Long-term leasehold providing security for ownership or investment.
**Summary:**
This exceptional retail unit at 8 High Street, Abingdon, offers a remarkable opportunity for either purchase or lease in a prime location frequented by both locals and visitors. Featuring a spacious 1,836.53 sq ft layout spread over two levels, the property is ready for occupation and presents outstanding potential for various business ventures under Class E regulations. The unit showcases an impressive 7.5m glass frontage that guarantees visibility and accessibility, essential for attracting foot traffic.
While the Grade II listed status may present some renovation restrictions, the rich history of this Georgian building adds a unique charm to the commercial space. Its central position means you’ll be nestled among a myriad of national and independent retailers as well as eateries, bolstering the potential for customer exposure. With the added advantage of being chain-free and VAT-elected, this property is a fantastic investment for entrepreneurs seeking a vibrant location in an affluent area known for its family-friendly community.
Secure this exclusive opportunity in the thriving market town of Abingdon, where a well-established blend of residential and commercial life awaits your vision!
 4 bedroom end of terrace house for sale in Edward Street(incorporating 11 Spring Road), Abingdon, OX14 — £575,000 • 4 bed • 1 bath • 1948 ft²
 4 bedroom end of terrace house for sale in Edward Street(incorporating 11 Spring Road), Abingdon, OX14 — £575,000 • 4 bed • 1 bath • 1948 ft² High street retail property for sale in Market Place, Wallingford, Oxfordshire, OX10 — £150,000 • 1 bed • 1 bath • 792 ft²
 High street retail property for sale in Market Place, Wallingford, Oxfordshire, OX10 — £150,000 • 1 bed • 1 bath • 792 ft² 2 bedroom flat for sale in Stert Street, Abingdon, OX14 — £235,000 • 2 bed • 2 bath • 689 ft²
 2 bedroom flat for sale in Stert Street, Abingdon, OX14 — £235,000 • 2 bed • 2 bath • 689 ft² 1 bedroom apartment for sale in St Helens Mews, Abingdon, OX14 — £110,000 • 1 bed • 1 bath • 379 ft²
 1 bedroom apartment for sale in St Helens Mews, Abingdon, OX14 — £110,000 • 1 bed • 1 bath • 379 ft² 2 bedroom apartment for sale in Old Station Yard, Abingdon, OX14 — £250,000 • 2 bed • 2 bath • 728 ft²
 2 bedroom apartment for sale in Old Station Yard, Abingdon, OX14 — £250,000 • 2 bed • 2 bath • 728 ft² High street retail property for sale in St. Marys Street, Wallingford, Oxfordshire, OX10 — £700,000 • 1 bed • 1 bath • 3321 ft²
 High street retail property for sale in St. Marys Street, Wallingford, Oxfordshire, OX10 — £700,000 • 1 bed • 1 bath • 3321 ft²














