Quiet leafy location with private garden and quick rail links.
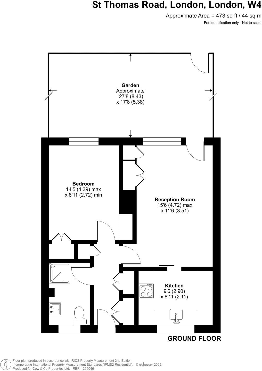
Ground-floor one-bedroom apartment, approximately 473 sq ft
Private re-wilded garden; currently overgrown and needs maintenance
Short walk to Chiswick Station and local shops, cafés and pubs
Close to Chiswick House and riverside green spaces
Leasehold tenure; mid-20th-century building (1950–1966)
Double glazing present; mains gas boiler and radiators
Guide price range £275,000 to £400,000 — buyer due diligence advised
Council tax band unknown
A bright ground-floor one-bedroom apartment with private re-wilded garden in leafy Grove Park, ideal for first-time buyers seeking a peaceful city base. The living room and large windows bring in natural light, while the bedroom includes built-in storage and overlooks the secluded garden.
The property sits within easy walking distance of Chiswick Station, local cafés, pubs and the River Thames, with excellent transport links into central London and nearby green spaces including Chiswick House. At 473 sq ft, the layout is traditional and efficient for a single professional or couple.
Practical points: this is a leasehold apartment in a mid-20th-century building (c.1950–1966) with double glazing and gas central heating. The garden is purposely re-wilded but overgrown and will need some maintenance to make it fully usable. Buyers should note the guide price range and that council tax band information is not provided.
Overall, the home offers a manageable entry point to Chiswick living with genuine outdoor space and strong local amenities, suited to buyers prepared to carry out light exterior gardening and personalise the interior.
1 bedroom apartment for sale in Gordon Road, London, W4 — £298,000 • 1 bed • 1 bath • 406 ft²
1 bedroom flat for sale in Fauconberg Road Chiswick, W4 — £350,000 • 1 bed • 1 bath • 497 ft²
2 bedroom apartment for sale in Grove Park Road, London, W4 — £695,000 • 2 bed • 2 bath • 886 ft²
1 bedroom apartment for sale in Brooks Road, London, W4 — £425,000 • 1 bed • 1 bath • 450 ft²
1 bedroom flat for sale in Spencer Road, London, W4 — £575,000 • 1 bed • 1 bath • 654 ft²
2 bedroom apartment for sale in Fauconberg Road, London, W4 — £550,000 • 2 bed • 1 bath • 832 ft²






































































































