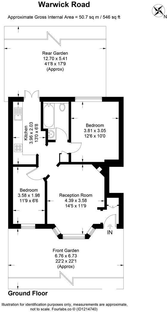
**Standout Features:**
- Beautifully maintained two-bedroom garden maisonette
- Spacious private west-facing garden over 40ft
- Contemporary kitchen with a charming butler sink
- Bright living room featuring original fireplace and mid-century modern accents
- Potential for extension into the garden (STPP)
- Close proximity to Thames Ditton station and local amenities
- Character-filled original features including stripped floorboards and period-style radiators
- Off-street parking potential
**Property Summary:**
Discover this charming and beautifully presented two-bedroom garden maisonette in the highly sought-after Thames Ditton area. The residence boasts a richly decorated interior that harmonizes modern comforts with delightful period characteristics—think gorgeous stripped floorboards, an original fireplace, and mid-century modern aesthetics that flood the living spaces with natural light.
Step through double doors from the light-filled living room to an expansive, west-facing garden that's perfect for entertaining or unwinding in the sun. This generous outdoor space, measuring over 40 feet, includes separate areas for lounging and play, leading to exciting possibilities for potential off-street parking via a rear access road or even an extension (subject to planning permissions).
Ideal for first-time buyers or small families, this maisonette is conveniently located near respected local schools, easy transport links to London Waterloo, and the picturesque River Thames, setting an attractive backdrop for your new chapter. With such unique potential and a slice of idyllic suburban living, don’t miss your opportunity to make this property your own!
2 bedroom maisonette for sale in Warwick Road, Thames Ditton, KT7 — £485,000 • 2 bed • 1 bath • 563 ft²
2 bedroom flat for sale in Speer Road, Thames Ditton, KT7 — £500,000 • 2 bed • 1 bath • 656 ft²
2 bedroom flat for sale in Speer Road, Thames Ditton, KT7 — £485,000 • 2 bed • 1 bath • 689 ft²
2 bedroom flat for sale in Warwick Road, Thames Ditton, KT7 — £410,000 • 2 bed • 1 bath • 581 ft²
2 bedroom semi-detached house for sale in Warwick Road, Thames Ditton, United Kingdom, KT7 — £465,000 • 2 bed • 1 bath • 480 ft²
2 bedroom maisonette for sale in Warwick Gardens, Thames Ditton, KT7 — £415,000 • 2 bed • 1 bath • 732 ft²






































































