Coastal four-bedroom house with flexible annexe-style accommodation and sunny garden.
Chain free four-bedroom detached house with en suite and separate entrance
Short walk to Broadsands Beach; pleasant coastal location and sea glimpse
Three reception rooms including vaulted sun lounge with lots of light
Modern kitchen/breakfast room; integrated appliances and garden outlook
Driveway parking plus electrically operated integral garage
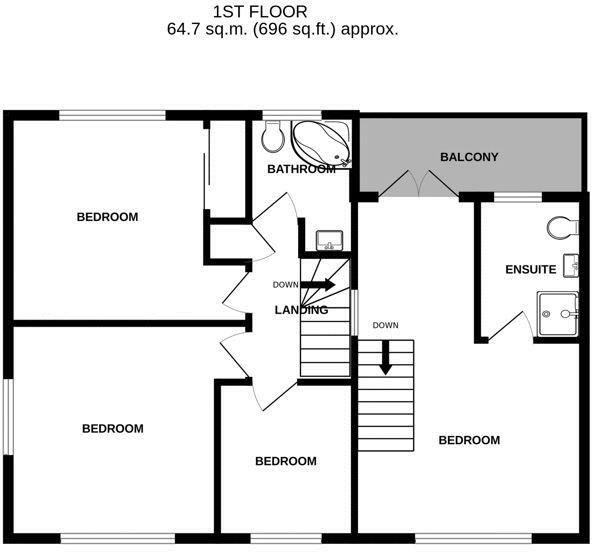
Approx. internal area ~696 sq ft — modest for four bedrooms
Cavity walls assumed uninsulated; double glazing age unconfirmed
Council tax band above average; energy-efficiency upgrades may be needed
This extended, detached family home sits a short walk from Broadsands Beach and local amenities, offering an attractive mix of living space and outdoor garden with a sunny, southerly aspect. The house benefits from a vaulted sun lounge, separate dining room and a modern kitchen/breakfast area that opens to the rear garden and integral garage. An additional bedroom with an en suite and its own entrance provides useful flexibility for guests or an older relative.
Practical positives include driveway parking, an electrically operated integral garage, mains gas central heating and double glazing. The property is offered chain free and occupies a decent plot with mature, landscaped gardens and a glimpse of the sea from parts of the house. Local schools are well regarded and the area has very low crime and fast broadband—good for families and remote working.
Important points to note: the stated total internal area is approximately 696 sq ft, which is modest for a four-bedroom detached house and may mean rooms feel smaller than advertised. The cavity walls are listed as having no added insulation (assumed), and the age of double glazing is not confirmed, so energy-efficiency improvements could be needed. Council tax is above average for the area.
This property will suit buyers seeking a coastal family home with flexible accommodation and a ready-to-use garden, but those wanting large internal floor area or a turn-key, highly efficient modern build should expect some updating. Viewing is recommended to judge room sizes and the layout, particularly the secondary-access bedroom suite.
4 bedroom detached house for sale in Broadsands Road, Paignton, TQ4 — £625,000 • 4 bed • 2 bath • 990 ft²
4 bedroom detached house for sale in North Rocks Road, Paignton, Devon, TQ4 — £630,000 • 4 bed • 2 bath • 1771 ft²
4 bedroom detached house for sale in Broadsands Avenue Broadsands Paignton, TQ4 — £675,000 • 4 bed • 2 bath • 1636 ft²
3 bedroom detached house for sale in Tor Close Broadsands Paignton, TQ4 — £425,000 • 3 bed • 1 bath • 865 ft²
5 bedroom detached house for sale in Tor Close, Paignton, TQ4 — £600,000 • 5 bed • 3 bath • 1907 ft²
4 bedroom detached bungalow for sale in Broadsands Avenue, Broadsands, Paignton, TQ4 — £525,000 • 4 bed • 2 bath • 1453 ft²










































































































