ME12 2JZ - 3 bedroom terraced house for sale in Wards Hill Road, Minst…

View on Property Piper

3 bedroom terraced house for sale in Wards Hill Road, Minster On Sea, Sheerness, Kent, ME12

Summary - 194 WARDS HILL ROAD MINSTER ON SEA SHEERNESS ME12 2JZ

3 bed 1 bath Terraced

**Standout Features:**
- Spacious 3-bedroom terraced house in a prime location.
- Stunning kitchen with integrated appliances and island.
- Generous rear garden, ideal for outdoor entertaining.
- Close proximity to Blue Flag award beach and town center.
- Excellent mobile signal and fast broadband speeds.
- Freehold tenure with affordable council tax.

**Summary:**
This charming 3-bedroom terraced home is perfect for first-time buyers seeking both comfort and convenience. The stunning kitchen boasts integrated appliances and a spacious island—ideal for cooking and entertaining. The bright and airy lounge/dining area seamlessly flows to a lovely-sized rear garden, perfect for summer barbecues and family gatherings. With a prime location just a short walk from a Blue Flag beach and easy access to local amenities, including well-rated primary schools, this property offers an exceptional lifestyle.

While the home is move-in ready, its classic Victorian features and spacious layout provide ample opportunity for personal touches and renovations, allowing you to make it uniquely yours. The average-sized property is situated in an area with decent local amenities and solid transport links, making it a desirable option for growing families or those looking to invest. Don't miss your chance to secure this delightful home—properties like this are in high demand!

Property Details

Image Descriptions

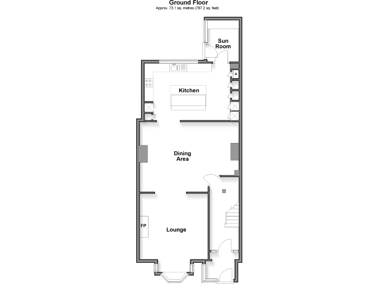
Floorplan Description

Rooms

Textual Property Features

Detected Visual Features

EPC Details

Nearby Schools

Nearest Bars And Restaurants

,,,,}

Nearest General Shops

,,}

Nearest Grocery shops

,,}

Nearest Supermarkets

,,}

Nearest Religious buildings

,,}

Nearest Medical buildings

,,,}

Nearest Airports

}

Nearest Leisure Facilities

,,,,}

Nearest Tourist attractions

,,}

Nearest Train stations

,,,,}

Nearest Bus stations and stops

,,,,}

Nearest Hotels

,,}

Tags

Local Market Stats

Similar Properties

Meta

High Res Images

Compatible Images

Low res Images

Thumbnails

Raw Images

High Res Floorplan Images

Compatible Floorplan Images

Low res Floorplan Images

FloorplanImages Thumbnail

Raw Floorplan Images