Bright flat moments from Hyde Park and excellent transport connections.
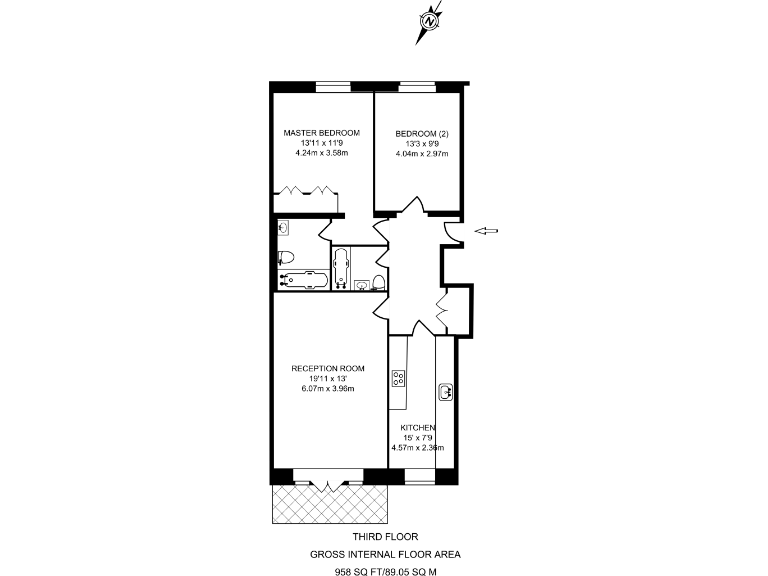
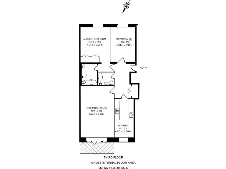
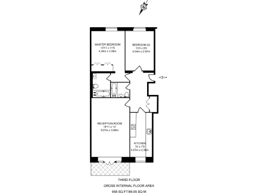
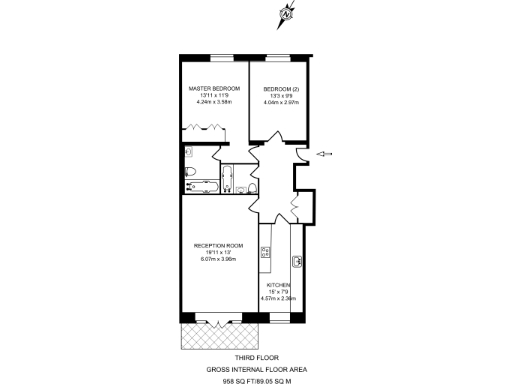
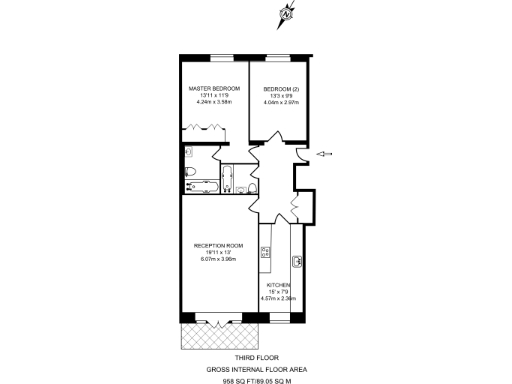
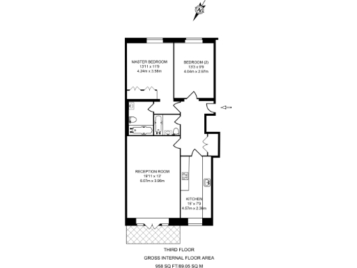
Large 2-bedroom layout — approximately 958 sq ft
Set on Bishop’s Bridge Road, this spacious two-bedroom flat occupies nearly 958 sq ft in a modern portered block just moments from Hyde Park. The reception room offers a leafy outlook and dining space, while a large eat-in kitchen and private balcony extend the living area. The main bedroom includes an en suite for convenience. Communal terrace and lift access add practical benefits for city living.
The property is leasehold with 87 years remaining and will be sold at auction — important for buyers to note. Service charges are above average (£4,784 pa) and ground rent is £200 pa. The building dates from the 1980s; glazing is double but installation date is unknown. Heating is mains gas with boiler and radiators.
This location suits buyers seeking excellent transport links (Paddington nearby), fast broadband and strong mobile signal, with easy access to Queensway, Westbourne Grove and the West End. Local schools rate well and the neighbourhood supports a wide range of amenities. Crime levels are higher than average for the area, so buyers should factor safety and security considerations into their decision.
Overall the flat offers generous central-London space and practical modern living, but the auction sale, limited lease length and elevated service charge are material points to check with solicitors and mortgage lenders before bidding.
2 bedroom flat for sale in Gloucester Terrace, Bayswater, London, W2 — £675,000 • 2 bed • 2 bath • 879 ft²
2 bedroom flat for sale in Queensway, Bayswater, London, W2 — £935,000 • 2 bed • 1 bath • 998 ft²
1 bedroom flat for sale in Sussex Place, Hyde Park Estate, London, W2 — £585,000 • 1 bed • 1 bath • 808 ft²
2 bedroom flat for sale in Gloucester Terrace, London, W2 — £675,000 • 2 bed • 2 bath • 879 ft²
2 bedroom apartment for sale in Flat 67 Ralph Court, Queensway, London, W2 — £630,000 • 2 bed • 2 bath • 773 ft²
2 bedroom flat for sale in Kensington Gardens Square, Bayswater, London, W2 — £1,350,000 • 2 bed • 2 bath • 695 ft²


























































































































































































































































































































