Immaculate four-bedroom semi with open-plan kitchen, garden pod and off-street parking near Didsbury Village.
Bay-fronted living room with high ceilings and herringbone floor
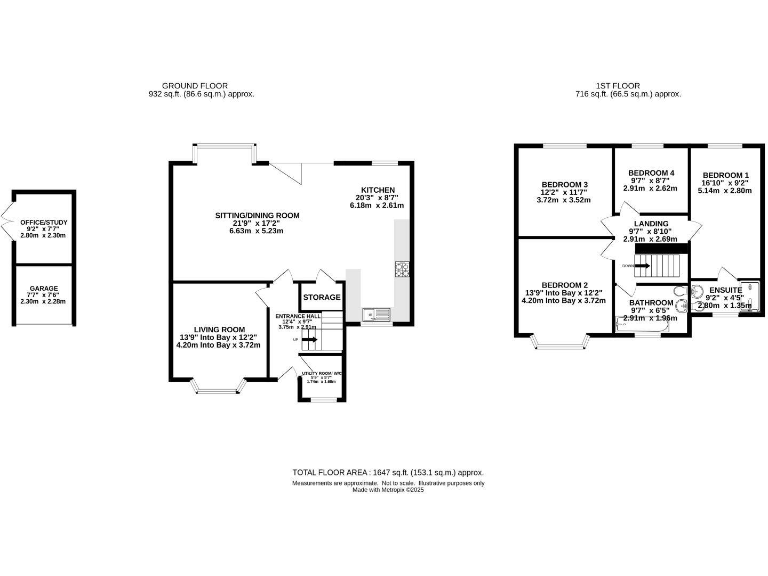
This immaculately presented 1930s bay-fronted semi offers 1,647 sq ft of family-ready living in the heart of Didsbury, a short walk from Didsbury Village, parks and well-regarded schools. The ground floor is arranged for modern family life: a light bay-fronted living room, a spectacular open-plan dining kitchen with a central island and bi-fold doors, a second sitting room and a utility/WC. The principal bedroom includes an en-suite and built-in wardrobes; there are three further good-sized bedrooms and a contemporary family bathroom.
Outside, the property sits behind off-street parking for multiple cars and a neat front garden. A generous landscaped rear garden with patio and an insulated outdoor pod (electrics and heating) provides flexible space for a home office or gym. Newly renovated throughout, the house combines period character—bay windows, stained glass and high ceilings—with modern finishes and integrated appliances.
Practical details: the home is freehold, mains gas heated via boiler and radiators, double-glazed (install date unknown) and in a very low-crime neighbourhood with fast broadband and excellent mobile signal. Council tax is moderate. Note that the property’s cavity walls are recorded as built without insulation (assumed), so buyers wanting maximum thermal efficiency may consider further insulation works. As a 1930s build, ongoing typical maintenance should be expected despite the recent renovation.
4 bedroom semi-detached house for sale in Wilmslow Road, Didsbury, M20 — £630,000 • 4 bed • 2 bath • 1583 ft²
3 bedroom semi-detached house for sale in School Lane, Didsbury, M20 — £495,000 • 3 bed • 1 bath • 1067 ft²
4 bedroom semi-detached house for sale in Dene Road, Didsbury Village, M20 — £700,000 • 4 bed • 2 bath • 1422 ft²
3 bedroom semi-detached house for sale in Parrs Wood Avenue, East Didsbury, M20 — £660,000 • 3 bed • 2 bath • 1399 ft²
3 bedroom semi-detached house for sale in Crandon Drive, East Didsbury, M20 — £400,000 • 3 bed • 1 bath • 1070 ft²
5 bedroom semi-detached house for sale in Claremont Grove, Didsbury Village, Manchester, M20 — £900,000 • 5 bed • 3 bath • 1789 ft²


































































































































