Perfect for single-storey living with large garden and garage workshop.
Generous corner plot with extensive, private rear garden
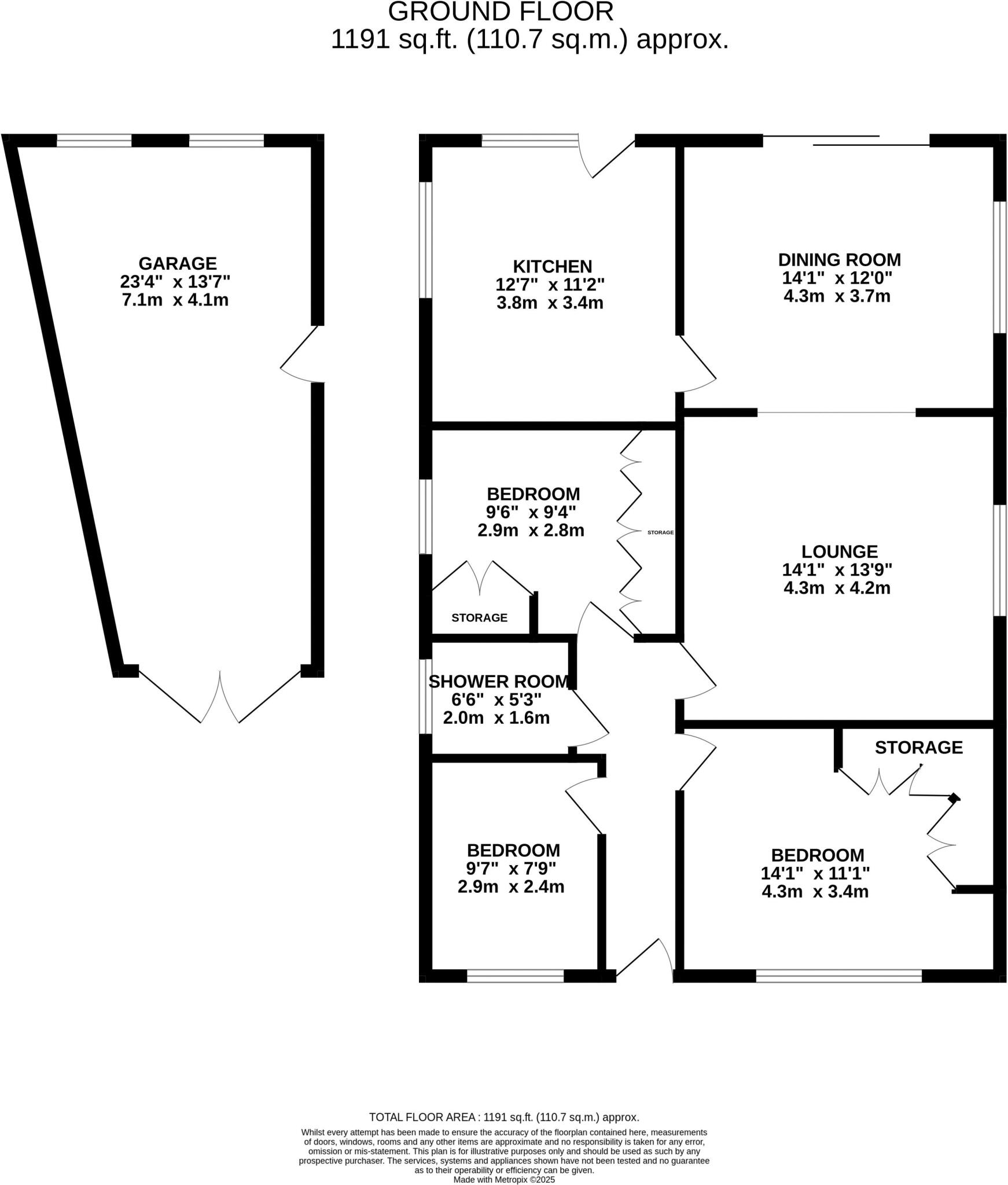
Set on a generous corner plot in a quiet cul-de-sac, this three-bedroom detached bungalow offers single-storey living with excellent outside space and practical parking. The large lounge flowing into a dining area and a substantial kitchen/breakfast room give flexible living areas suited to everyday life or entertaining.
The rear garden is extensive and mostly private, backed up by a large detached garage/workshop and driveway parking for multiple cars — strong assets for hobbyists, gardeners or those with storage needs. The property sits close to reliable transport links, local shops and several well-rated primary and secondary schools.
Built mid-20th century, the bungalow offers genuine scope to modernise; cosmetic and updating work is likely needed, particularly to bring services and decor to contemporary standards. Note there is a single shower room only. Freehold tenure, no flood risk, and a favourable, low-crime neighbourhood add to the appeal for buyers seeking an accessible, long-term home or a downsizing opportunity.
3 bedroom detached bungalow for sale in Russet Close, Market Harborough, LE16 — £340,000 • 3 bed • 1 bath • 842 ft²
2 bedroom bungalow for sale in Logan Crescent, Market Harborough, LE16 — £300,000 • 2 bed • 1 bath • 907 ft²
3 bedroom detached bungalow for sale in Hammond Way, Market Harborough, LE16 — £325,000 • 3 bed • 1 bath • 1320 ft²
3 bedroom semi-detached bungalow for sale in Rupert Road, Market Harborough, LE16 9LU, LE16 — £250,000 • 3 bed • 1 bath • 746 ft²
2 bedroom bungalow for sale in Park Drive, Market Harborough, LE16 — £357,950 • 2 bed • 1 bath • 658 ft²
2 bedroom semi-detached bungalow for sale in Rainsborough Gardens, Market Harborough, LE16 — £315,000 • 2 bed • 1 bath • 657 ft²














































































































