Modern family living with garage, parking and low-maintenance garden.
End-terrace townhouse across three floors
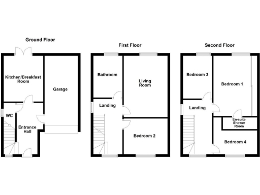
This end-terrace townhouse in Altofts offers practical, modern living across three floors — ideal for a first-time buyer or growing family. The ground floor is arranged for everyday convenience with a kitchen/breakfast room, downstairs WC and an integral garage that opens from the driveway. French doors in the kitchen connect directly to a low-maintenance rear garden that’s fully enclosed and child-friendly.
Upstairs accommodation includes a generous living room on the first floor and four good-sized bedrooms on the second and third levels. The principal bedroom benefits from fitted wardrobes and an en suite shower, while a family bathroom serves the remaining bedrooms. Built in the late 2000s with cavity walls and double glazing, the house has efficient mains gas central heating and an EPC rating of C (75).
Practical features include off-road parking for one car, a single integral garage, fast broadband and excellent mobile signal — useful for professionals working from home. The location is suburban and very affluent, close to local shops, bus routes, Altofts train station and the M62, with a mix of good and outstanding primary and secondary schools nearby.
Considerations: the plot is small and externally low-maintenance, so buyers seeking large gardens or extensive outdoor space may find it limiting. Accommodation is spread over three floors, which may not suit those with mobility needs. Room sizes are described as average—there’s scope to personalise or reconfigure interiors, but major structural changes would be limited by the modern build and plot size.
3 bedroom terraced house for sale in Croft Avenue, Altofts, WF6 — £185,000 • 3 bed • 2 bath • 743 ft²
3 bedroom terraced house for sale in Brook Street, Altofts, Normanton, WF6 — £145,000 • 3 bed • 2 bath • 700 ft²
4 bedroom detached house for sale in Highgrove Court, Altofts, Normanton, WF6 — £390,000 • 4 bed • 2 bath • 1356 ft²
4 bedroom town house for sale in Church Grove, Altofts, Normanton, WF6 — £259,995 • 4 bed • 2 bath • 1163 ft²
5 bedroom detached house for sale in Edward Street, Altofts, Normanton, WF6 — £365,000 • 5 bed • 3 bath • 2078 ft²
3 bedroom detached house for sale in Bannockburn Way, Normanton, WF6 — £325,000 • 3 bed • 2 bath • 1468 ft²






























































