Large freehold site near hospital—convert or redevelop with planning.
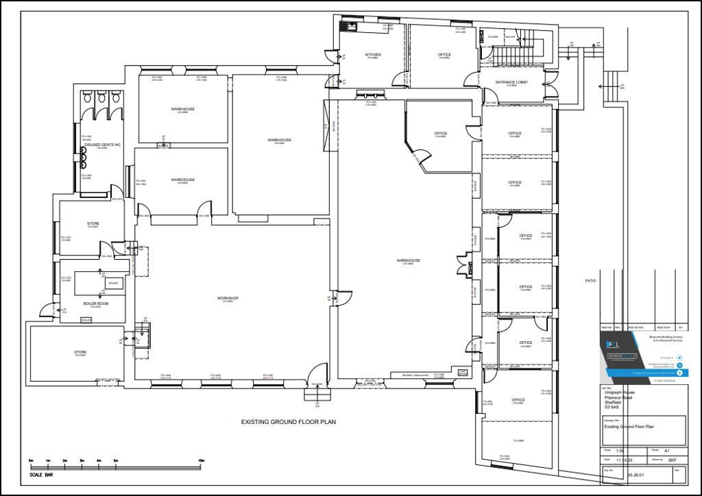
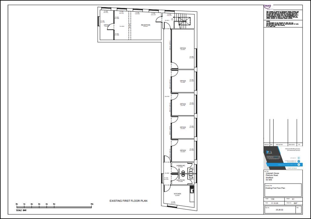
Freehold mixed-use building on ~0.217 acre (large plot)
Total approx 5,640 sq ft across warehouse and offices
Significant refurbishment or redevelopment potential, subject to consent
Flat roof and exterior show neglect; roof maintenance required
EPC rating G—significant energy upgrades likely needed
Located near Northern General Hospital and local amenities
High local crime and very deprived area may affect end-use demand
To be sold at public online auction; legal pack and buyers’ fees apply
This is a substantial freehold commercial building on a large 0.217 acre plot just off the A6135 in north Sheffield. The property combines older stone warehouse accommodation with mid-century office space across two levels, offering deep-footprint space and clear scope for refurbishment, conversion or redevelopment subject to planning consent. The site’s size and location near the Northern General Hospital and local amenities make it suitable for a range of commercial or mixed‑use proposals.
The building is sold at public online auction with bidding in December 2025; interested parties must consult the legal pack and auction addenda. Physically the property shows signs of neglect: parts of the exterior are weathered, graffiti present, and the flat roof will require maintenance or renewal. Energy performance is poor (EPC G) and the building’s stone walls are likely uninsulated, so investment will be needed to bring services and fabric up to modern standards.
This opportunity will suit developers, investors or operators prepared to manage an urban refurbishment or change‑of‑use process. Take-up should factor planning pre‑application with Sheffield City Council, potential buyer’s fees and the auction timetable. The surrounding area is economically challenged with above‑average crime and high deprivation scores, which affects end‑use viability and demand profiles but also keeps acquisition costs lower for value‑driven buyers.
Detached house for sale in 27 Mansfield Road, Sheffield, South Yorkshire, S12 2AE, S12 — £100,000 • 1 bed • 1 bath • 777 ft²
Commercial property for sale in 233 & 233A Abbeydale Road, Sheffield, South Yorkshire, S7 1FJ, S7 — £200,000 • 1 bed • 1 bath
20 bedroom block of apartments for sale in Apartments 1-8, Portabrook Apartments, 245 Broomhall Street, Sheffield, South Yorkshire, S3 7SP, S3 — £875,000 • 20 bed • 9 bath
Commercial property for sale in 476/476A, Glossop Road, Broomhill, Sheffield, South Yorkshire, S10 2QA, S10 — £275,000 • 1 bed • 1 bath • 1088 ft²
Commercial property for sale in 232 Holme Lane, Malin Bridge, Sheffield, South Yorkshire, S6 4JZ, S6 — £70,000 • 1 bed • 1 bath
Commercial property for sale in Hope House, Whitting Valley Road, Old Whittington, Chesterfield, Derbyshire, S41 9EY, S41 — £90,000 • 1 bed • 1 bath • 475 ft²


















































