Compact, well-located apartment close to Richmond Park and top-rated schools.
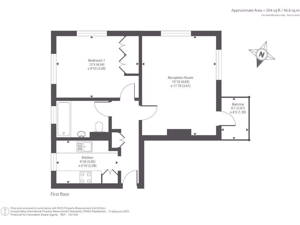
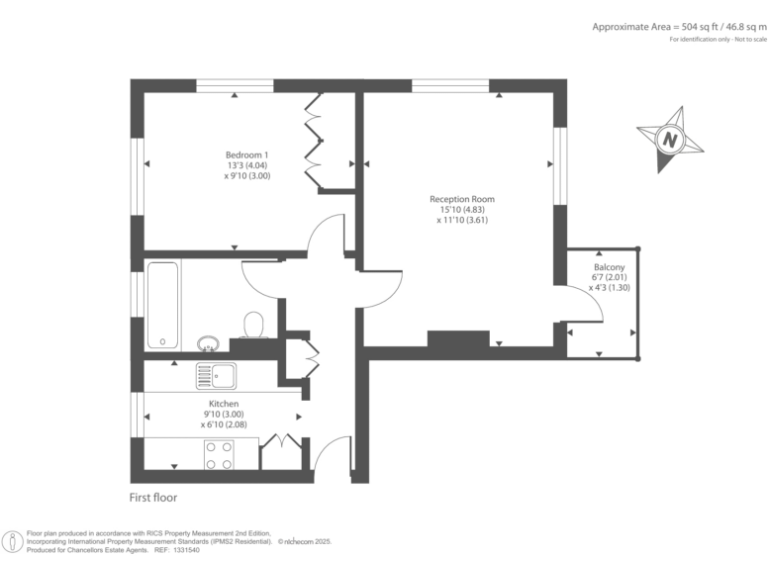
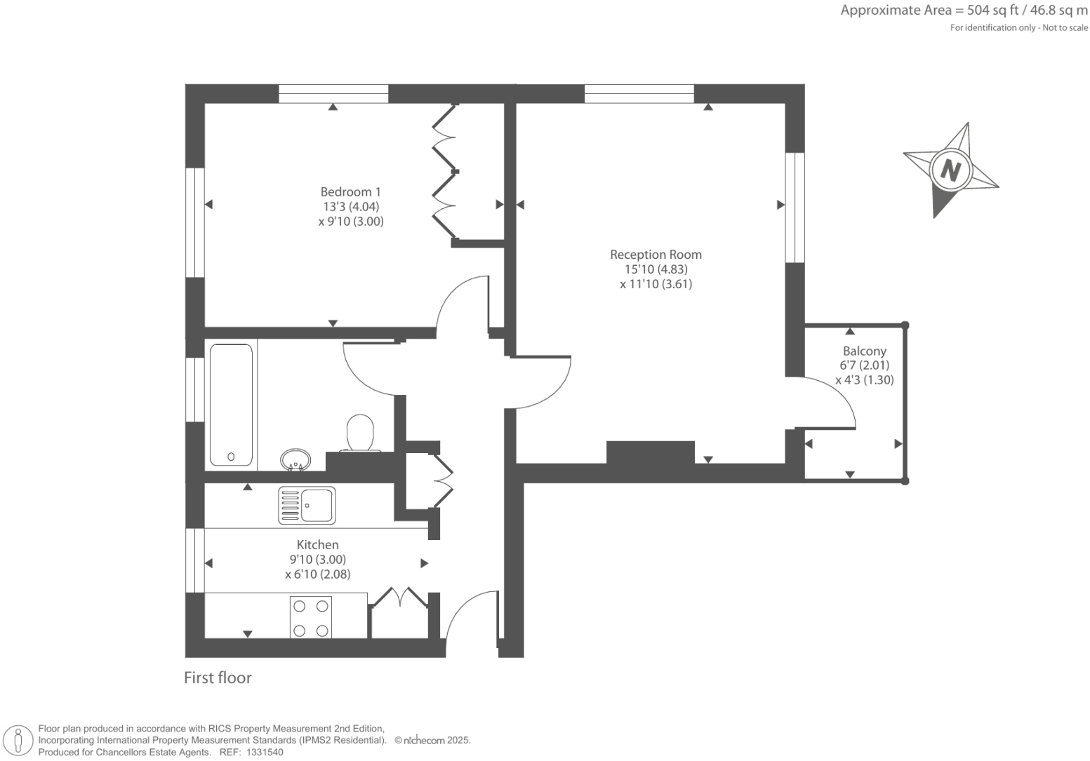
- Approx 504 sq ft one-bedroom, first-floor apartment
- Double-aspect reception room with small balcony
- Communal heating and hot water via community scheme
- On-site management office and communal gardens
- Off-street residents parking included
- Leasehold — approximately 123 years remaining
- Solid brick construction; likely limited insulation
- Local crime levels above average; check security measures
Set within a popular purpose-built block, this first-floor one-bedroom flat offers a practical, well-presented home in a sought-after Richmond location. The apartment features a double-aspect reception room with a small balcony, a fully fitted kitchen and a bathroom, all arranged across approximately 504 sq ft. Residents benefit from communal gardens, on-site management and off-street residents’ parking — useful extras for day-to-day living.
The location is a major draw: under a mile from Richmond Park and in the catchment for several highly rated primary and secondary schools, making it convenient for active lifestyles and families planning ahead. Excellent mobile signal and average broadband speeds mean the flat is suitable for remote working or streaming.
This is a leasehold property with around 123 years remaining; communal heating and hot water are provided via a community scheme. That arrangement simplifies individual boiler maintenance but does mean there will be communal service charges and dependence on the building’s heating system.
Practical considerations: the building is solid-brick with assumed no cavity insulation, so energy efficiency improvements may be limited without structural work. Crime levels in the area are above average, and buyers should factor that into personal security choices. Overall, the flat is a compact, well-located option for a first-time buyer or investor seeking proximity to green space and strong local schools, but it will require attention to communal costs and energy performance if those are priorities.
1 bedroom apartment for sale in Spring Grove Road, Richmond, TW10 — £450,000 • 1 bed • 1 bath • 503 ft²
2 bedroom apartment for sale in Tangley Grove, London, SW15 — £250,000 • 2 bed • 1 bath • 708 ft²
2 bedroom apartment for sale in Cleeve Way, London, SW15 — £375,000 • 2 bed • 1 bath • 640 ft²
1 bedroom flat for sale in Bicester Road, Richmond, TW9 — £400,000 • 1 bed • 2 bath • 463 ft²
1 bedroom flat for sale in Richmond Upon Thames, London, TW9 — £450,000 • 1 bed • 1 bath • 443 ft²
1 bedroom flat for sale in Lambert Avenue, RICHMOND, TW9 — £340,000 • 1 bed • 1 bath • 500 ft²






































































