B66 3NE - 3 bedroom semidetached house for sale in 2 Raglan Road, Sme…

View on Property Piper

3 bedroom semi-detached house for sale in 2 Raglan Road, Smethwick, B66 3NE, B66

Summary - 2 RAGLAN ROAD SMETHWICK B66 3NE

3 bed 1 bath Semi-Detached

**Standout Features:**
- Freehold semi-detached property with vacant possession upon completion
- 3 bedrooms and 1 bathroom, ideally suited for families or investors
- Victorian design with charming period features, including arched windows and a Tudor-style gable
- Average-sized garden enhancing outdoor potential
- Gas central heating and double glazing for energy efficiency
- Auction starting bid: £50,000

**Concise Summary:**
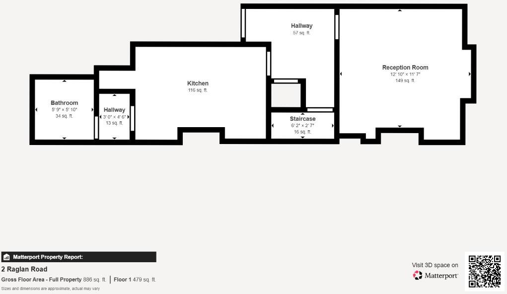
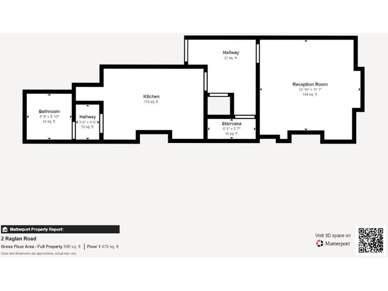
Discover a promising opportunity with this semi-detached Victorian home in a vibrant community, strategically positioned in a major conurbation. Spanning approximately 886 square feet, the layout includes three bedrooms, a reception room, kitchen, and bathroom, making it an ideal canvas for families or first-time buyers seeking to invest in renovation potential. While the property does require modernization, its solid brick structure and inviting garden offer a great foundation for enhancements that can elevate both comfort and value.

This home is chain-free and ready for immediate possession, catering to those looking for a hassle-free transition. Located near reputable schools with good Ofsted ratings and a host of local amenities, this is a prospect not to be missed. The upcoming auction on September 11, 2025, presents a limited-time chance to secure this property. With fast broadband and excellent mobile signal, it suits modern living, while the average crime rates suggest a community that is both accessible and secure. Check viewing times to plan your visit and envision the future this home could hold.

Property Details

Image Descriptions

Floorplan Description

Rooms

Textual Property Features

Detected Visual Features

EPC Details

Nearby Schools

Nearest Bars And Restaurants

,,,,}

Nearest General Shops

,,}

Nearest Grocery shops

,,}

Nearest Supermarkets

,,}

Nearest Religious buildings

,,}

Nearest Medical buildings

,,,}

Nearest Airports

}

Nearest Leisure Facilities

,,,,}

Nearest Tourist attractions

,,}

Nearest Train stations

,,,,}

Nearest Bus stations and stops

,,,,}

Nearest Hotels

,,}

Tags

Local Market Stats

AirBnB Data

Similar Properties

Meta

High Res Images

Compatible Images

Low res Images

Thumbnails

Raw Images

High Res Floorplan Images

Compatible Floorplan Images

Low res Floorplan Images

FloorplanImages Thumbnail

Raw Floorplan Images