Freshly renovated two-bed starter near M62 junctions and Good schools.
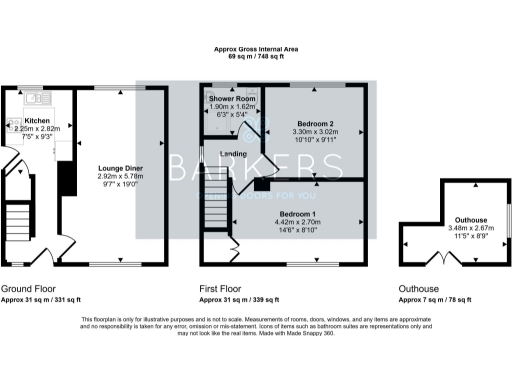
Two double bedrooms with built-in storage
19ft lounge/diner, dual-aspect windows, bright living space
Modern fitted kitchen with integrated appliances
Contemporary shower room with fully tiled finish
Driveway for two cars and enclosed rear garden
Newly renovated throughout; ready for immediate occupation
Boiler replaced two years ago; double glazing and alarm installed
Small plot; area more deprived and average local crime
A neatly renovated two-bedroom semi offers a ready-to-move-in home for first-time buyers seeking low-stress ownership. The ground floor provides a modern fitted kitchen, a 19ft lounge/diner with plenty of natural light and durable Karndean flooring, while two double bedrooms and a contemporary shower room sit on the first floor. Practical upgrades include uPVC double glazing, a security alarm, and a boiler replaced two years ago.
Outside, the property has private off-street parking for two cars and an enclosed rear garden with a paved patio and outhouse — low-maintenance outdoor space rather than a large plot. At about 670 sq ft, the house is an average-sized starter home on a small plot, offered freehold with a very low council tax band.
Location is commuter-friendly: local schools rated Good, nearby amenities and bus routes, and quick access to Junction 27 of the M62. Broadband speeds are fast and mobile signal is excellent, useful for working from home or staying connected.
Buyers should note a few practical points: the plot is small, the area scores as more deprived and crime is described as average. The property has been substantially modernised and requires little immediate work, but anyone wanting sizeable gardens or a larger floorplan should consider the size limits before viewing.
2 bedroom terraced house for sale in Wakefield Road, Gildersome, Morley, Leeds, LS27 — £175,000 • 2 bed • 2 bath • 816 ft²
3 bedroom semi-detached house for sale in Springbank Road, Leeds, LS27 — £245,000 • 3 bed • 1 bath • 669 ft²
2 bedroom town house for sale in Applehaigh Close, Bradford, BD10 9DW, BD10 — £180,000 • 2 bed • 1 bath • 593 ft²
2 bedroom semi-detached house for sale in Spring Avenue, Morley, LS27 — £285,000 • 2 bed • 1 bath • 710 ft²
2 bedroom semi-detached house for sale in Mountain Crescent, Dewsbury, WF12 — £150,000 • 2 bed • 1 bath • 555 ft²
2 bedroom semi-detached house for sale in Kenton Drive, Durkar, Wakefield, West Yorkshire, WF4 — £240,000 • 2 bed • 1 bath • 667 ft²


















































