Bright three-bedroom home with private garden and communal outdoor space.
Spacious open-plan reception and modern kitchen with island
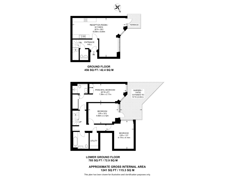
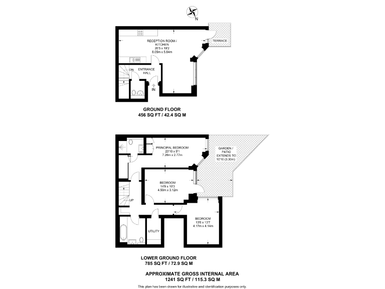
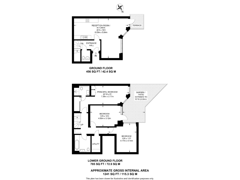
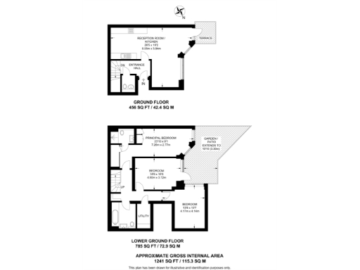
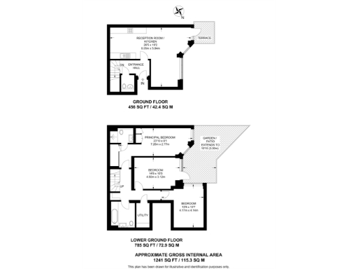
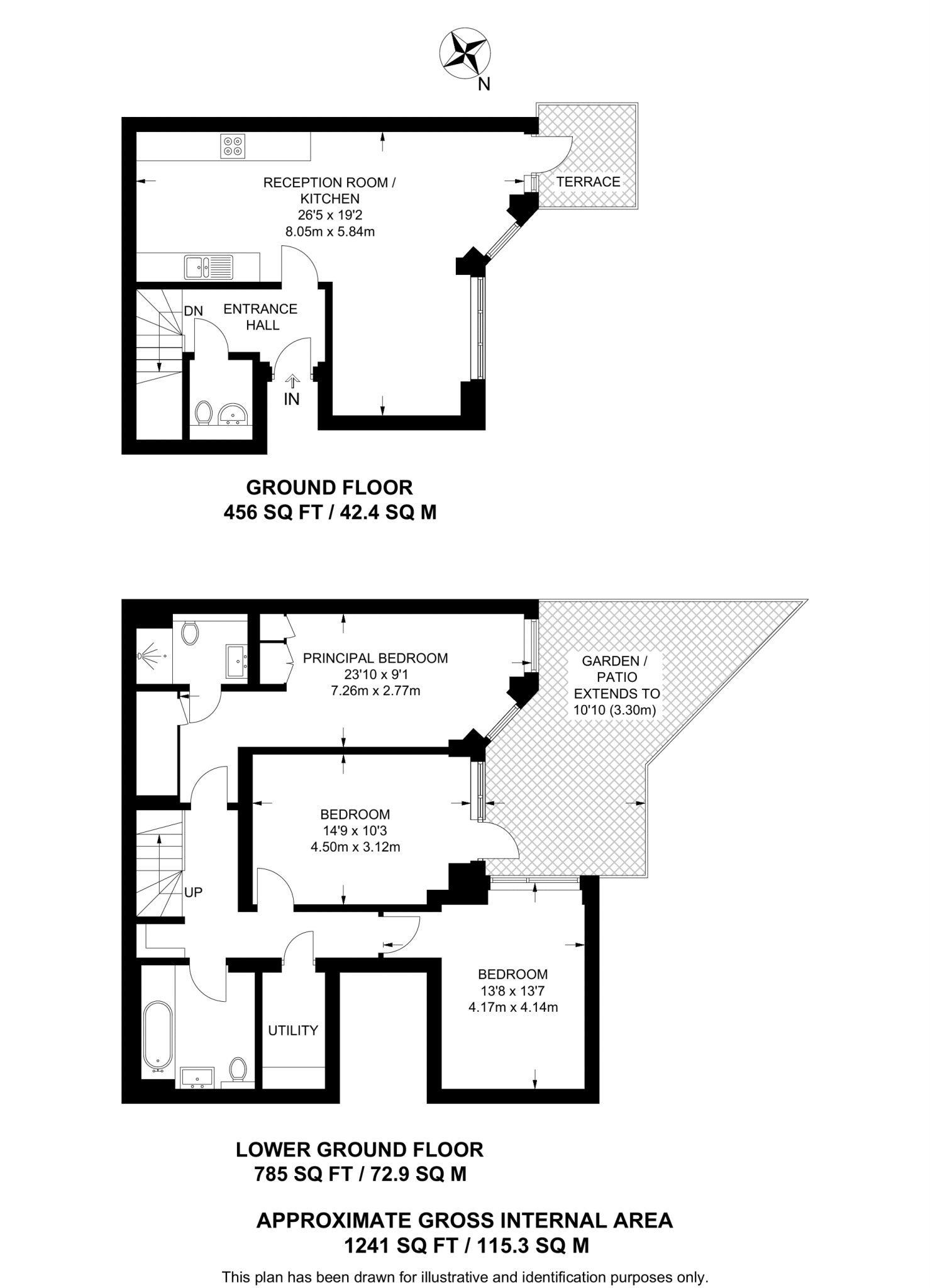
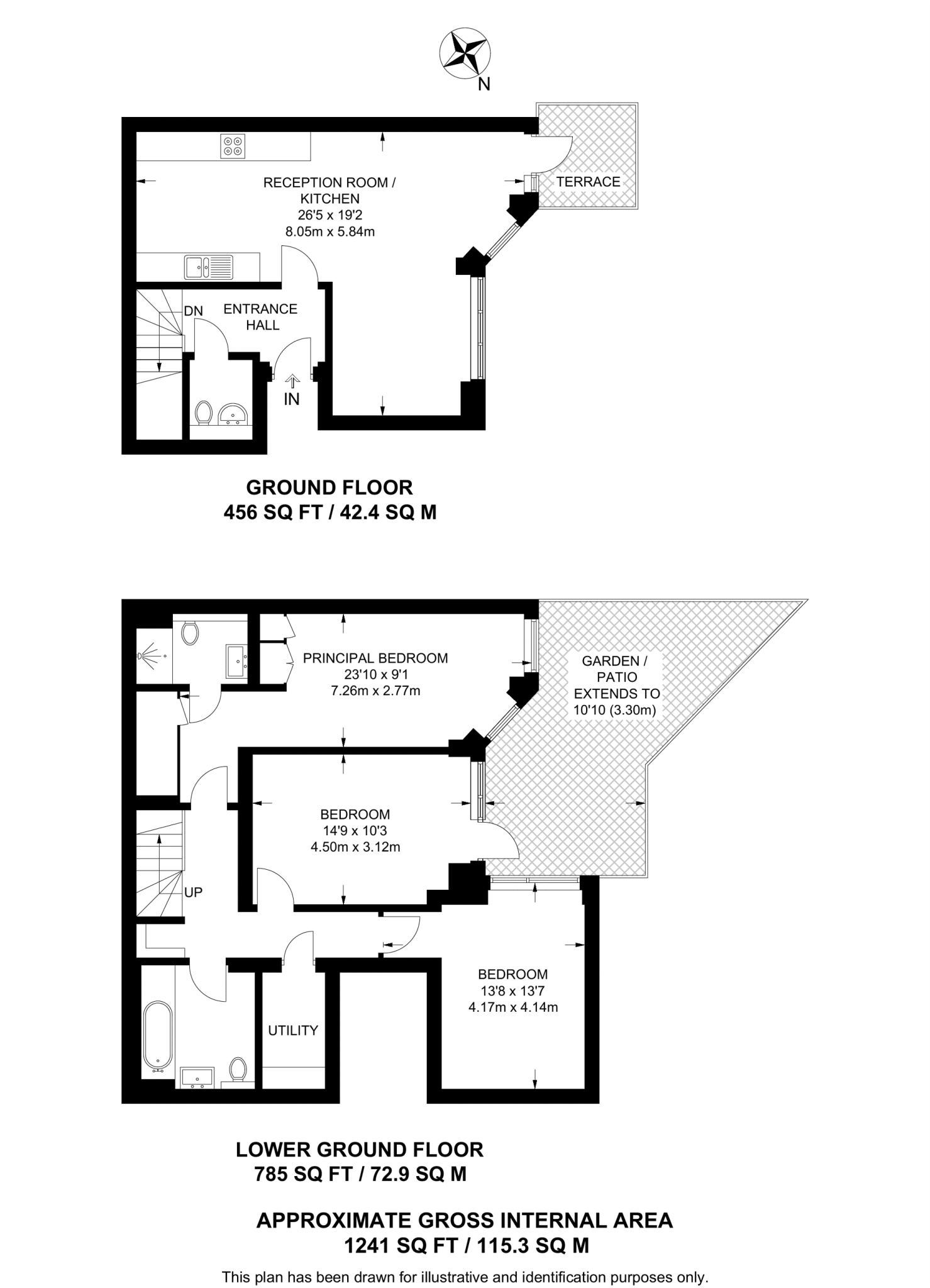
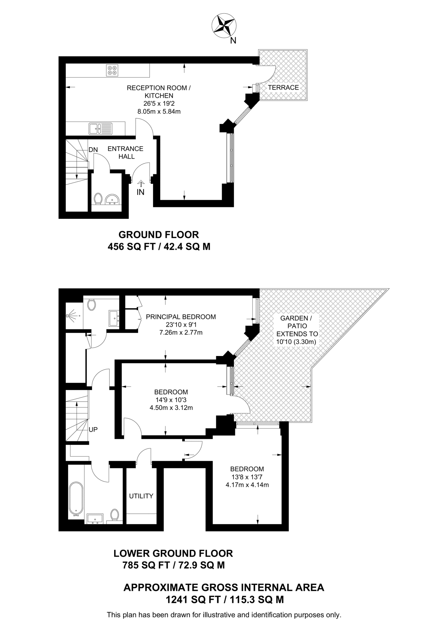
A bright, split-level three-bedroom flat arranged over generous living space in a contemporary Clerkenwell development. The south-facing reception and large windows create light throughout; the modern open-plan kitchen with island and integrated appliances suits everyday living and entertaining. The main bedroom includes an en-suite shower room, with two further double bedrooms and an additional shower room and WC giving practical family-style accommodation.
Outside space is a clear strength: a private garden and balcony plus access to a larger communal garden and secure bike storage provide rare outdoor options for central London living. Built 2007–2011, the building benefits from double glazing and underfloor heating from a mains-gas boiler, and the flat is presented in excellent condition throughout.
Practical considerations: the flat is leasehold — prospective buyers should confirm the lease length and any service or ground rent charges. The property sits in an inner-city, multicultural student neighbourhood with a very high local crime rate, so buyers should weigh the convenient location and transport links against local safety and noise factors.
This home will suit buyers seeking a low-maintenance, modern central London base with flexible space and outdoor areas — ideal for first-time purchasers wanting room to grow or investors seeking strong rental appeal close to Farringdon and Exmouth Market amenities.
3 bedroom flat for sale in Old Street, Old Street, London, EC1V — £1,150,000 • 3 bed • 3 bath • 1090 ft²
2 bedroom flat for sale in Cock Lane, Farringdon, London, EC1A — £825,000 • 2 bed • 2 bath • 802 ft²
3 bedroom flat for sale in Banner Street, Old Street, London, EC1Y — £650,000 • 3 bed • 1 bath • 813 ft²
3 bedroom flat for sale in Partridge Court, Malta Street, London, EC1V — £675,000 • 3 bed • 1 bath • 938 ft²
3 bedroom flat for sale in Greville Street, Farringdon, London, EC1N — £775,000 • 3 bed • 1 bath • 886 ft²
1 bedroom flat for sale in Bartholomew Close, Farringdon, London, EC1A — £785,000 • 1 bed • 1 bath • 569 ft²






















































































































































































