Stylish two-bedroom home near town centre and station, ideal for first buyers.
Chain free two-bedroom duplex with en suite and walk-in wardrobe
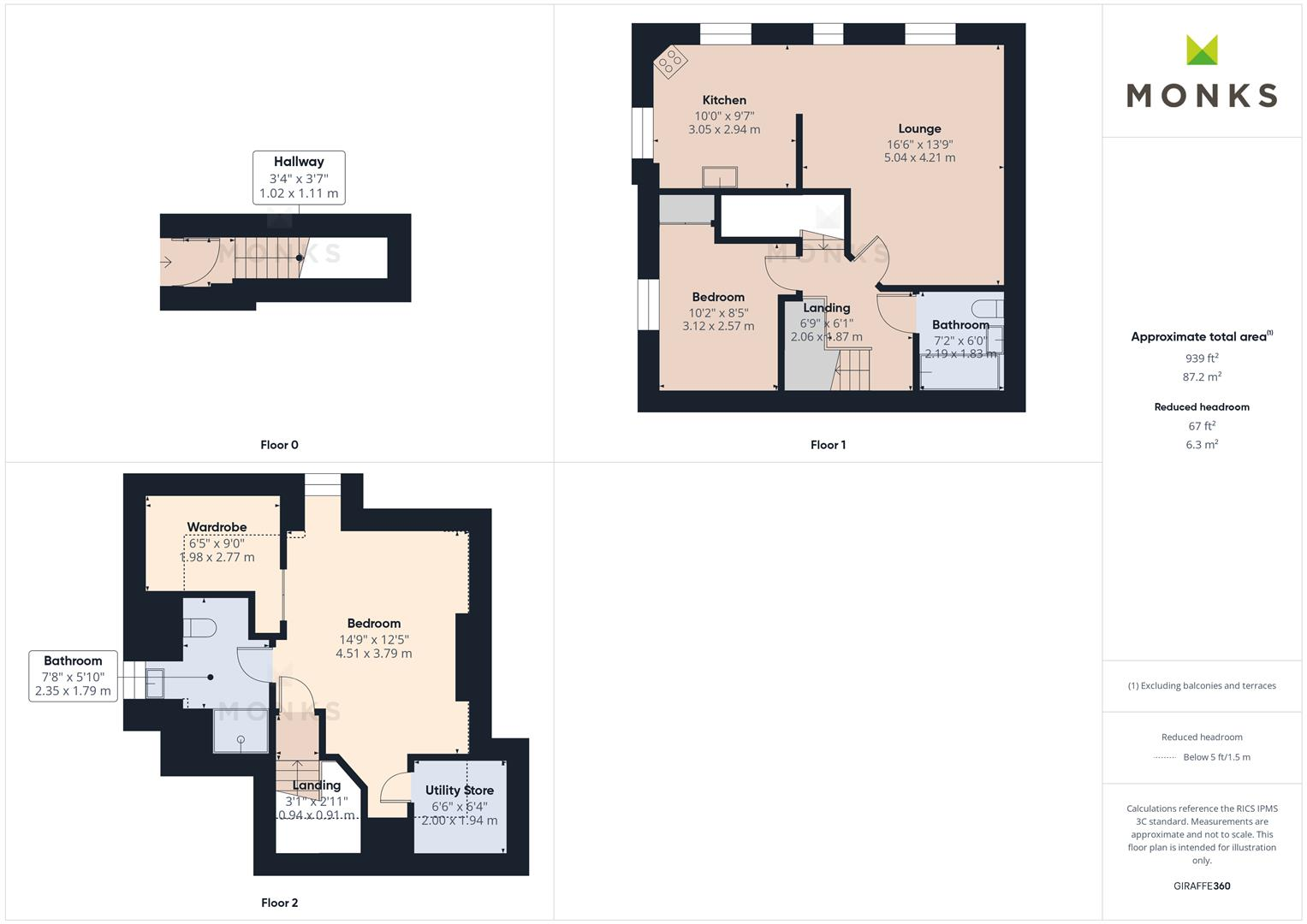
Set over two floors in a conservation-style terrace, this two-bedroom duplex offers a practical, well-laid-out home close to Shrewsbury town centre. The principal bedroom includes a walk-in wardrobe and en suite, while the first-floor lounge/dining room and attractive breakfast kitchen provide comfortable everyday living. Allocated parking and a communal garden add useful outside space, and the property is offered chain free.
This home will particularly suit first-time buyers or professionals seeking a low-maintenance city-edge property with good transport links; the nearby railway station and local amenities are an easy walk away. The apartment was built in the mid-2000s and benefits from double glazing and gas central heating, making it broadly energy efficient, with an EPC rating of C.
Practical points to note: the sale is on a long leasehold (999-year lease with 980 years remaining) and there is an annual service charge of £680. The property sits in an area with above-average recorded crime, which prospective buyers should consider. Interiors are average in size (approx. 847 sq ft) and the communal garden is modest rather than private.
Viewing is recommended to appreciate the layout and feeling of space. Buyers should verify service charge and lease details during pre-contract enquiries and may want to review security measures and energy improvement options given the EPC rating.
2 bedroom duplex for sale in St. Michaels Street, Shrewsbury, SY1 — £187,000 • 2 bed • 1 bath • 1070 ft²
3 bedroom duplex for sale in Frankwell, Shrewsbury, SY3 — £230,000 • 3 bed • 2 bath • 1302 ft²
3 bedroom duplex for sale in Coffee House Passage, The Square, Shrewsbury, SY1 — £230,000 • 3 bed • 1 bath • 915 ft²
2 bedroom apartment for sale in Simpson Square, Shrewsbury, SY1 — £187,000 • 2 bed • 1 bath • 1104 ft²
1 bedroom duplex for sale in The Monklands, Abbey Foregate, Shrewsbury, SY2 — £185,000 • 1 bed • 1 bath • 593 ft²
2 bedroom duplex for sale in Chester Street, Shrewsbury, SY1 — £200,000 • 2 bed • 2 bath • 650 ft²


































































