**Standout Features:**
- Expansive two-floor loft-style office building
- Excellent natural light with large glazed windows
- Exposed trusses and ductwork adding an industrial touch
- Off-street parking available
- Convenient location near Ravenscourt Park Underground station
- Close proximity to vibrant amenities on King Street and Chiswick High Road
**Potential Concerns:**
- High crime rate in the local area
- Small plot size may limit expansion options
- Average broadband speeds
**Summary:**
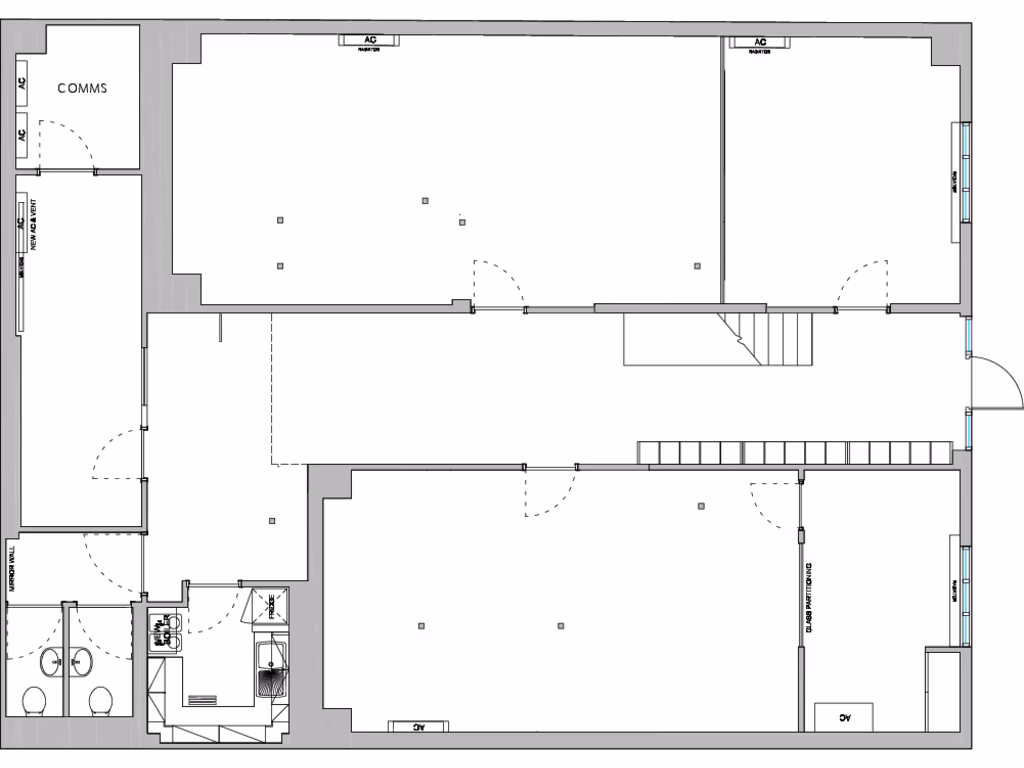
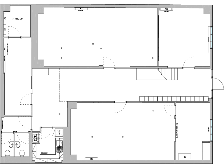
Discover this impressive loft-style office building in a vibrant urban setting, perfect for businesses seeking an expansive space with a contemporary edge. Featuring striking industrial architecture highlighted by excellent natural light and stunning exposed trusses, this two-floor property encompasses over 3,500 square feet of versatile open-plan workspace. Ideal for creative professionals or those craving a unique atmosphere, the self-contained design includes comfort cooling and valuable feature lighting to enhance productivity. 
Conveniently positioned near Ravenscourt Park and only a short walk from Hammersmith Broadway, this location benefits from rich amenities, including an array of restaurants, shopping options, and excellent public transport links. While the property presents immense potential for those willing to invest in a dynamic work environment, it’s essential to consider the high local crime rate and modest broadband speeds. Don’t miss your chance to secure this unique space—opportunities like this in such prime areas are not expected to last long!
 Office for sale in 2 Vencourt Place, London, W6 9NU, W6 — POA • 1 bed • 1 bath • 3352 ft²
 Office for sale in 2 Vencourt Place, London, W6 9NU, W6 — POA • 1 bed • 1 bath • 3352 ft² Office for sale in 3, 4 , 5 And 6, Vencourt Place, Hammersmith, W6 9NU, W6 — £7,000,000 • 1 bed • 1 bath • 14288 ft²
 Office for sale in 3, 4 , 5 And 6, Vencourt Place, Hammersmith, W6 9NU, W6 — £7,000,000 • 1 bed • 1 bath • 14288 ft² Office for sale in Studio 10, 92 Lots Road, Chelsea, SW10 0QD, SW10 — £630,000 • 1 bed • 1 bath • 1100 ft²
 Office for sale in Studio 10, 92 Lots Road, Chelsea, SW10 0QD, SW10 — £630,000 • 1 bed • 1 bath • 1100 ft² Commercial property for sale in Fulham Business Exchange, The Boulevard, London, SW6 — £700,000 • 1 bed • 1 bath • 2110 ft²
 Commercial property for sale in Fulham Business Exchange, The Boulevard, London, SW6 — £700,000 • 1 bed • 1 bath • 2110 ft² Office for sale in Units 4C & 4D, Westpoint, 36-37 Warple Way, Acton, W3 0RG, W3 — £1,000,000 • 1 bed • 1 bath • 1419 ft²
 Office for sale in Units 4C & 4D, Westpoint, 36-37 Warple Way, Acton, W3 0RG, W3 — £1,000,000 • 1 bed • 1 bath • 1419 ft² Office for sale in Unit 2 Bramber Court, W14 — £775,000 • 1 bed • 1 bath • 1268 ft²
 Office for sale in Unit 2 Bramber Court, W14 — £775,000 • 1 bed • 1 bath • 1268 ft²


























