Chain-free three-bedroom stone cottage with scope to modernise in sought-after Bromley Cross..
End-terrace Victorian stone cottage with high ceilings and bay window
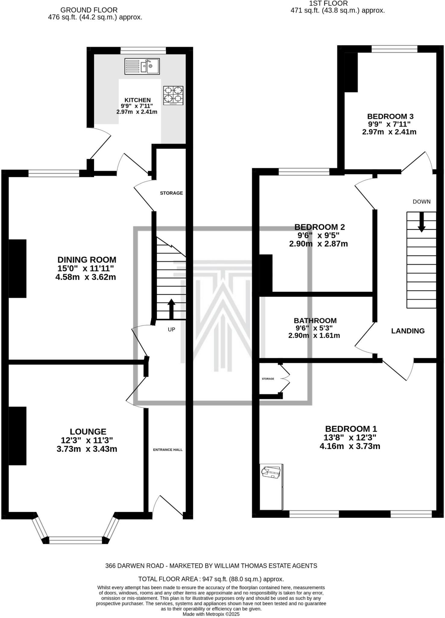
Three bedrooms; two doubles and a spacious single
Needs full modernisation throughout; cosmetic and mechanical works likely
Chain free and freehold — simpler purchase process
CAT-6 ethernet to every room; junction box under stairs
Double glazing installed post-2002; mains gas central heating
Small enclosed stone-flagged courtyard plus raised patio and shed
Convenient for Bromley Cross station, shops and several Good-rated schools
Set on desirable Darwen Road in Bromley Cross, this three-bedroom Victorian stone end-terrace offers genuine refurbishment potential. The house is deceptively spacious with high ceilings, bay-windowed lounge and two double bedrooms, making it a practical family home once modernised. Double glazing (installed post-2002) and mains gas central heating are already in place, while CAT‑6 cabling to each room is a useful modern convenience for home working or streaming.
The accommodation includes a separate dining room, rear kitchen and first-floor bathroom; the layout is straightforward and lends itself to reconfiguration or an upgrade to modern finishes. Outside, a small enclosed stone-flagged courtyard plus an elevated patio and wooden shed provide low-maintenance outdoor space, though the garden area is limited compared with semi-detached homes.
This property is offered chain-free and freehold, which simplifies purchase for a buyer prepared to carry out renovation. Local amenities, good primary and secondary schools and Bromley Cross train station are all within easy walking distance, giving strong day‑to‑day convenience and commuter appeal. Buyers should note the house needs modernisation throughout, with likely cosmetic and mechanical works required to achieve contemporary standards.
3 bedroom terraced house for sale in Darwen Road, Bolton, BL7 — £210,000 • 3 bed • 1 bath • 1088 ft²
2 bedroom terraced house for sale in Darwen Road, Bolton, BL7 — £230,000 • 2 bed • 2 bath • 1016 ft²
2 bedroom end of terrace house for sale in Darwen Road, Bromley Cross, BL7 — £192,500 • 2 bed • 1 bath • 840 ft²
3 bedroom terraced house for sale in Darwen Road, Bromley Cross, Bolton, BL7 — £220,000 • 3 bed • 1 bath • 1012 ft²
3 bedroom semi-detached house for sale in Darwen Road, Egerton, Bolton, BL7 — £325,000 • 3 bed • 1 bath • 1122 ft²
3 bedroom terraced house for sale in Darwen Road, Bromley Cross, Bolton, BL7 — £200,000 • 3 bed • 2 bath • 1239 ft²


















































































