Two-bedroom Marylebone penthouse with vast roof terraces and full concierge amenities.
Panoramic views across Regent’s Park and London skyline
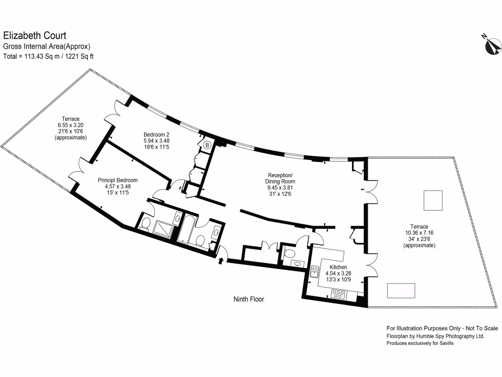
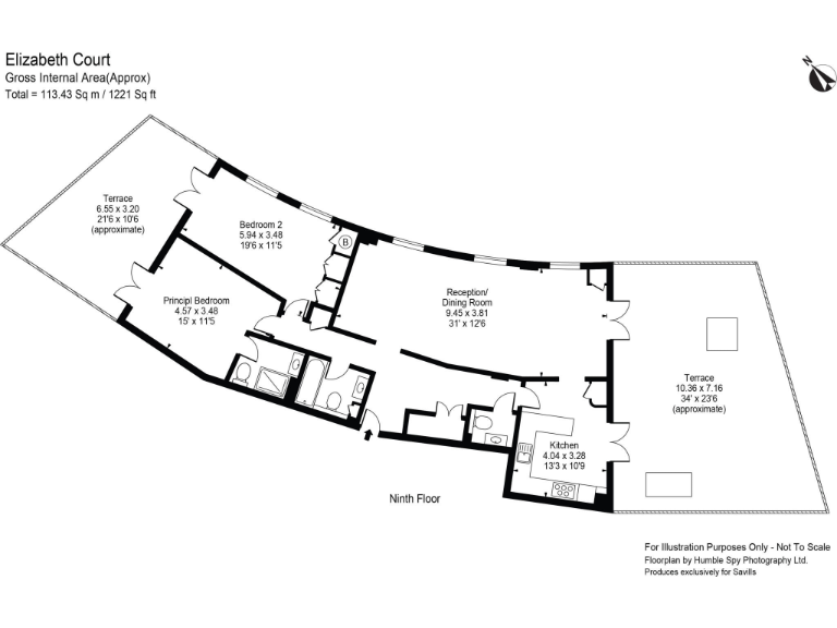
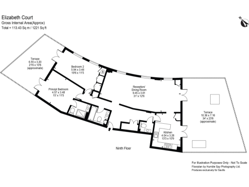
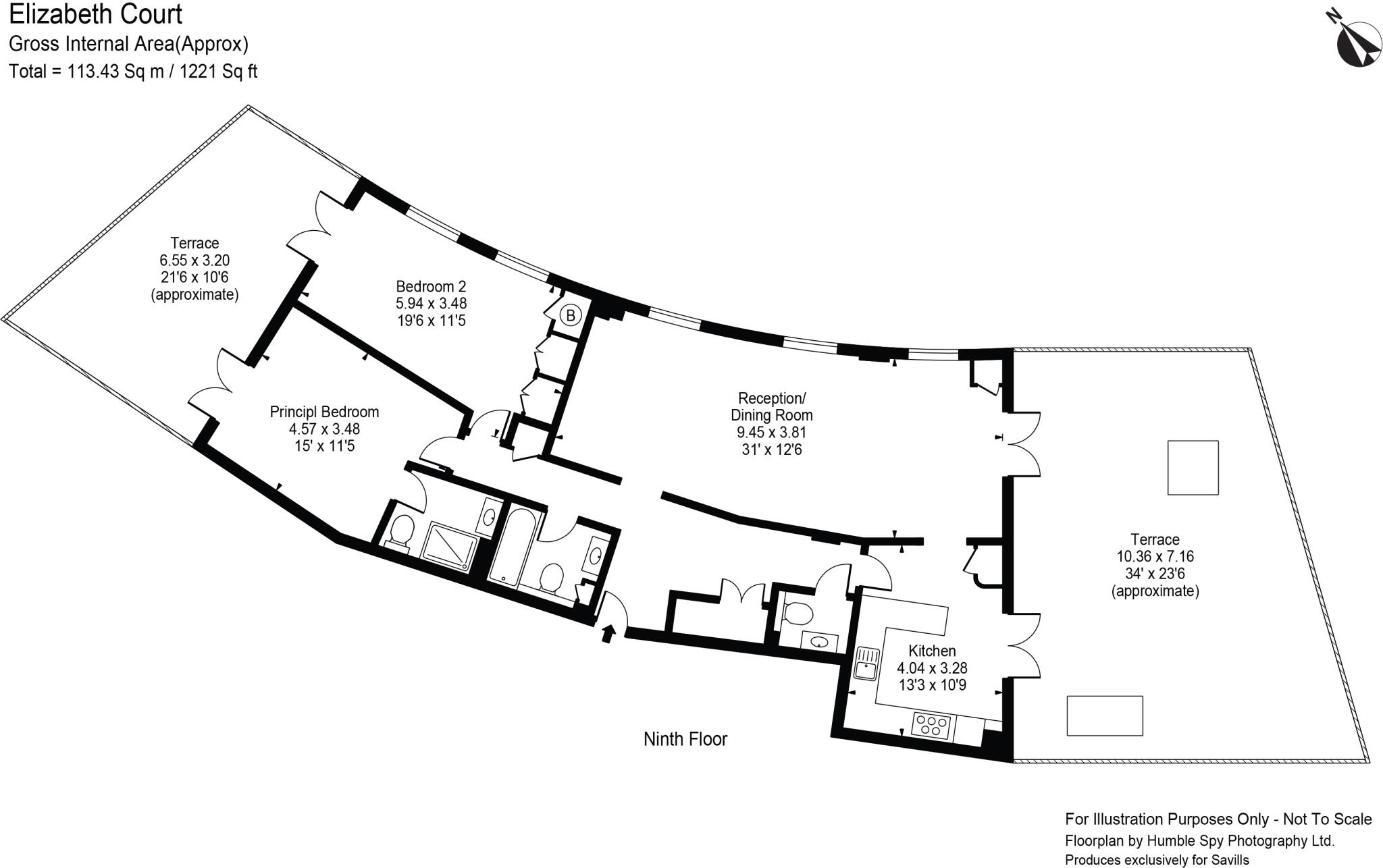
This penthouse occupies the top floor of a gated Marylebone development and delivers dramatic views over Regent’s Park and the London skyline. The apartment combines two bedrooms, two bathrooms and generous living space with two large private roof terraces (approximately 1,024 sq ft of terrace reported), ideal for entertaining or quiet city-facing outdoor living.
Residents benefit from full building amenities including 24-hour concierge, an indoor swimming pool, gym and an underground parking space. The property is offered as a share of freehold with an exceptionally long lease (circa 974 years), providing long-term security and ownership clarity.
Notable running costs include a high service charge (reported at £9,200 per year / approx £4,600 per six months) and Westminster Council Tax band H. The property sits in an area with very high recorded crime levels — a practical consideration for buyers prioritising security despite the gated development. Transport links are excellent, with Baker Street and Marylebone stations within easy walking distance, giving swift access to the West End and the City.
This apartment will suit buyers seeking a high-spec city home with substantial outdoor space and full concierge amenities. It also appeals to those wanting long leasehold security and proximity to central London schools and services. Buyers wanting a lower-cost-of-ownership pied-à-terre should note the elevated service charges and council tax banding before proceeding.
2 bedroom apartment for sale in Elizabeth Court, Palgrave Gardens, Regent's Park, London, NW1, United Kingdom, NW1 — £2,250,000 • 2 bed • 2 bath • 1184 ft²
2 bedroom flat for sale in Palgrave Gardens, LONDON, NW1 — £1,500,000 • 2 bed • 2 bath • 992 ft²
5 bedroom penthouse for sale in Beverly House, 133 Park Road, St. John's Wood, London, NW8 — £9,950,000 • 5 bed • 5 bath • 4765 ft²
4 bedroom penthouse for sale in Brock Street, London, NW1 — £5,950,000 • 4 bed • 4 bath • 4137 ft²
2 bedroom flat for sale in Bickenhall Mansions, Bickenhall Street, Marylebone, London, W1U — £1,295,000 • 2 bed • 2 bath • 1059 ft²
2 bedroom apartment for sale in Annes Court, Palgrave Gardens, Regent's Park, London, NW1 — £950,000 • 2 bed • 2 bath • 853 ft²










































































