SE5 7EW - 4 bedroom terraced house for sale in Southampton Way, Londo…

View on Property Piper

4 bedroom terraced house for sale in Southampton Way, London, SE5

Summary - FLAT 5, 133-135 SOUTHAMPTON WAY, LONDON SE5 7EW

4 bed 1 bath Terraced

Large period family home near Burgess Park, ideal for renovation and extension.
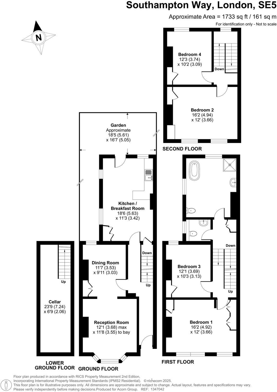
Over 1,700 sq ft across three floors
This spacious Victorian mid-terrace offers over 1,700 sq ft across three floors — a rare four-bedroom freehold within easy reach of Burgess Park. High ceilings, original sash windows and fireplaces give the house strong period character and room proportions suited to family living. A decent rear garden provides outside space and scope to extend, subject to planning.

The layout currently provides a large reception and separate dining area on the ground floor, two double bedrooms with a bathroom on the first floor, and two further bedrooms on the second floor. The property is in need of modernization throughout: the kitchen and bathrooms are dated, and the heating relies on electric storage heaters. The house is solid brick with no assumed insulation, so improvement works will be needed to improve thermal performance and running costs.

Practical positives include freehold tenure, very low flood risk, and excellent mobile signal with good local amenities and transport links nearby (Peckham Rye, Denmark Hill and several bus routes). Notes of caution: there is only one bathroom for four bedrooms, the area scores as deprived with above-average crime rates, and broadband speeds are only average. For families or buyers looking to add value, the property offers generous space and clear scope for refurbishment and updating.

Property Details

Image Descriptions

Floorplan Description

Rooms

Textual Property Features

Target Audience

AI Tags

Detected Visual Features

EPC Details

Nearby Schools

Nearest Bars And Restaurants

,,,,}

Nearest General Shops

,,}

Nearest Grocery shops

,,}

Nearest Supermarkets

,,}

Nearest Religious buildings

,,}

Nearest Medical buildings

,,,}

Nearest Airports

,,}

Nearest Leisure Facilities

,,,,}

Nearest Tourist attractions

,,}

Nearest Train stations

,,,,}

Nearest Bus stations and stops

,,,,}

Nearest Hotels

,,}

Tags

Local Market Stats

AirBnB Data

Similar Properties

Meta

High Res Images

Compatible Images

Low res Images

Thumbnails

Raw Images

High Res Floorplan Images

Compatible Floorplan Images

Low res Floorplan Images

FloorplanImages Thumbnail

Raw Floorplan Images