Walking distance to Windsor Great Park and village amenities for active families.
Chain free four-bedroom terraced house with loft master suite
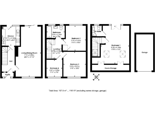
This well-presented four-bedroom terraced house offers practical family living in a sought-after Old Windsor location. The loft extension creates an impressive master suite with en‑suite and Juliette balcony, while three further bedrooms and a family bathroom sit on the first floor. Natural light fills the open-plan living/dining room and the contemporary galley kitchen features integrated appliances and good cupboard storage.
Outside, parking is a strong asset: a gravel driveway provides spaces to the front and a rear garage sits at the end of the block. The low-maintenance rear garden is modest in size, suiting busy families who prioritise location and indoor space over extensive grounds. Walking distance to Windsor Great Park and local village amenities adds lifestyle appeal.
Energy and construction notes are straightforward: the property has double glazing and mains gas central heating, with an EPC rating of C. The walls are original solid brick (no insulation assumed), which may be a consideration for buyers thinking long-term energy upgrades. The house is chain free, offered freehold and ready to occupy or rent immediately.
Overall this is a comfortable, light-filled family home in an affluent, well-connected neighbourhood. It will suit families seeking convenient access to green space and local schools, or investors wanting a low-maintenance rental in a strong area. Buyers should be aware of the small garden and potential insulation improvements when assessing future running costs.
4 bedroom end of terrace house for sale in Albert Street, Windsor, SL4 — £750,000 • 4 bed • 2 bath • 1486 ft²
2 bedroom terraced house for sale in St. Lukes Road, Old Windsor, SL4 — £480,000 • 2 bed • 1 bath • 936 ft²
2 bedroom terraced house for sale in Maidenhead Road, Windsor, SL4 — £499,950 • 2 bed • 1 bath • 1112 ft²
4 bedroom terraced house for sale in Bolton Road, Windsor, SL4 — £700,000 • 4 bed • 2 bath • 1126 ft²
4 bedroom terraced house for sale in Rydings, Windsor, Berkshire, SL4 — £550,000 • 4 bed • 2 bath • 1198 ft²
3 bedroom terraced house for sale in Wood Close, Windsor, SL4 — £420,000 • 3 bed • 1 bath • 909 ft²










































