Spacious two-bed home near Central Avenue and local transport links.
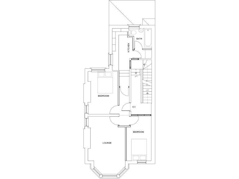
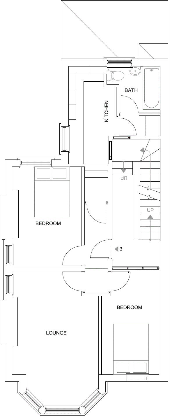
Bay-windowed living room with high ceilings and strong natural light
Opposite Trent Bridge cricket ground; short walk to Central Avenue amenities
Two double bedrooms, modern kitchen, utility area and contemporary bathroom
Allocated off-street parking space included
Chain-free sale; 111 years remaining on the lease
Service charge £540pa, ground rent £180pa, building insurance £240.64pa
Located in area with very high recorded crime — check local safety data
Solid brick construction; likely minimal wall insulation, consider retrofit costs
This first-floor period conversion sits directly opposite Trent Bridge cricket ground and delivers generous rooms, high ceilings and a standout bay-windowed living room. At about 689 sq ft, the layout includes two double bedrooms, a separate modern kitchen with utility area, and a contemporary bathroom — a comfortable city-base for professionals or first-time buyers.
Practical running costs are clear: gas central heating, double glazing, video entry and an alarm are already installed. The flat is chain-free and comes with an allocated off-street parking space. Service charge (£540pa), ground rent (£180pa) and building insurance (£240.64pa) are modest; 111 years remain on the lease.
Key trade-offs are straightforward. The property is leasehold, and the neighbourhood records a very high crime statistic — prospective buyers should check local crime reports and confirm security/insurance implications. The building is solid-brick with little assumed cavity insulation, so consider potential heating bills or retrofit costs if targeting long-term efficiency improvements.
This apartment works well for those who value location and period character close to West Bridgford’s amenities and transport links. It also offers simple letting potential given proximity to the university and local employers, though buyers should factor in leasehold terms and the neighbourhood safety profile when deciding.
2 bedroom apartment for sale in Fox Road, West Bridgford, NG2 — £265,000 • 2 bed • 2 bath • 708 ft²
2 bedroom flat for sale in Musters Road, West Bridgford, Nottingham, Nottinghamshire, NG2 — £160,000 • 2 bed • 2 bath • 560 ft²
1 bedroom apartment for sale in Fox Road, West Bridgford, Nottingham, Nottinghamshire, NG2 — £159,950 • 1 bed • 1 bath • 431 ft²
2 bedroom apartment for sale in The Gallery, Radcliffe Road, West Bridgford, NG2 — £180,000 • 2 bed • 2 bath • 500 ft²
2 bedroom apartment for sale in Pavilion Road, West Bridgford, Nottingham, NG2 — £365,000 • 2 bed • 2 bath • 1125 ft²
1 bedroom flat for sale in Loughborough Road, West Bridgford, Nottinghamshire, NG2 7JJ, NG2 — £130,000 • 1 bed • 1 bath • 423 ft²


































