Newly renovated two-bed apartment with parking and communal gardens.
Share of freehold with c.898 years remaining
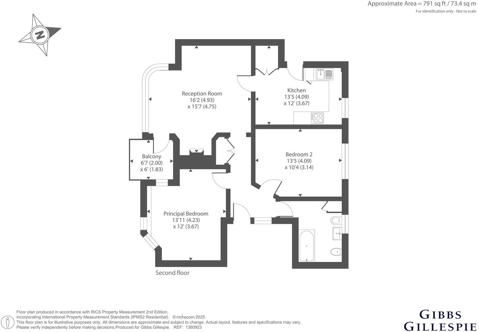
This bright two-bedroom second-floor apartment in the Art Deco Pinner Court offers ready-to-move-in space for first-time buyers or downsizers. Recently renovated throughout, the flat combines period character with a high-spec modern kitchen, contemporary bathroom and fitted bedroom storage. Secondary glazing helps keep the flat quiet and warm.
Practical benefits include a long lease (share of freehold with c.898 years remaining), off-street parking and well-kept communal gardens. The 791 sq ft layout provides an airy living room with a bay window and a small balcony off the principal bedroom, useful for extra light and air.
Considerations: the apartment is on an upper floor with no lift, which may affect accessibility and moving large items. The building dates from the 1930s and walls are assumed to be solid brick with no cavity insulation — further insulation work could improve efficiency. Communal grounds are small-to-moderate in scale and subject to shared maintenance responsibilities.
Situated in HA5, the location benefits from strong local schools, excellent broadband and very low local crime rates. The flat will suit buyers seeking a period property with modern finishes and convenient parking, or investors wanting a well-presented unit in a desirable Pinner development.
2 bedroom apartment for sale in Cecil Park, Pinner, HA5 — £550,000 • 2 bed • 1 bath • 1076 ft²
2 bedroom apartment for sale in Granville Place, Elm Park Road, Pinner, HA5 — £415,000 • 2 bed • 1 bath • 609 ft²
2 bedroom flat for sale in Rickmansworth Road, HA5 — £325,000 • 2 bed • 1 bath • 681 ft²
2 bedroom apartment for sale in Chiswick Court, Moss Lane, Pinner, HA5 — £350,000 • 2 bed • 1 bath • 766 ft²
2 bedroom apartment for sale in Pinner Grove, Pinner, HA5 — £285,000 • 2 bed • 1 bath • 750 ft²
2 bedroom flat for sale in Uxbridge Road, Pinner, HA5 — £340,000 • 2 bed • 1 bath • 529 ft²






















































































