Minutes from the Old Course with private garden and garage.
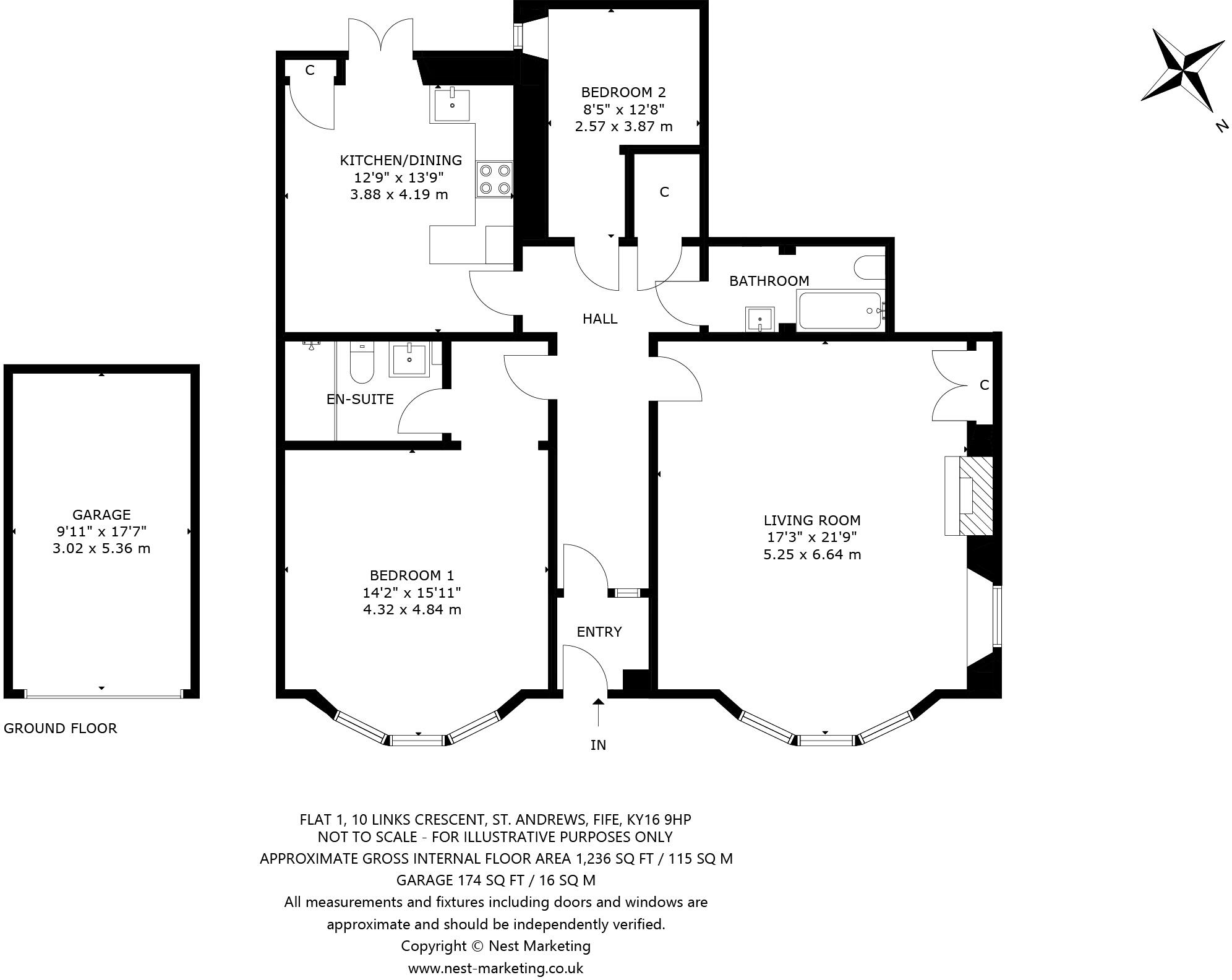
Ground-floor Victorian apartment with high ceilings and original features
Set on the ground floor of an elegant Victorian villa in the St Andrews Conservation Area, this substantial two-bedroom apartment combines historic character with high-quality finishes. Generous principal rooms include a dual-aspect living room with bay windows, high ceilings and original detailing, plus a well-appointed kitchen that opens onto a south-west-facing courtyard.
The main bedroom benefits from a luxury en-suite with walk-in rainfall shower; the second double bedroom and a fully tiled bathroom both have underfloor heating. Outside, a gated front garden, private rear courtyard and detached single-car garage accessed from a shared driveway add rare parking and outdoor space for central St Andrews.
This property sits approximately 250m from the Old Course and within easy walking distance of the university, shops and coastal walks — a prime location for buyers seeking heritage, convenience and lifestyle. Note the immediate neighbourhood is classified as a cosmopolitan student area and the wider area shows relative deprivation, which may affect long-term rental market dynamics and quieter residential appeal.
Practical points: the home is freehold with an EPC rating of D and council tax band E. Broadband speeds are average, mobile signal is excellent, and mains gas, electricity, water and drainage are supplied. Buyers should review the Home Report and title burdens; the property is sold subject to standard servitudes and wayleaves.
2 bedroom apartment for sale in Murray Park, St. Andrews, Fife, KY16 — £795,000 • 2 bed • 2 bath • 686 ft²
2 bedroom apartment for sale in Century Court, 100 North Street, St. Andrews, KY16 — £695,000 • 2 bed • 2 bath • 893 ft²
3 bedroom apartment for sale in Bridge Street, St. Andrews, KY16 — £375,000 • 3 bed • 1 bath • 645 ft²
3 bedroom terraced house for sale in John Street, St. Andrews, Fife, KY16 — £700,000 • 3 bed • 2 bath • 1519 ft²
2 bedroom apartment for sale in North Street, St. Andrews, KY16 — £539,000 • 2 bed • 1 bath • 818 ft²
3 bedroom apartment for sale in Murray Park, St. Andrews, Fife, KY16 — £1,250,000 • 3 bed • 2 bath • 1648 ft²


































































































































