Extended three-bed family home with open-plan living, large garden and excellent school links.
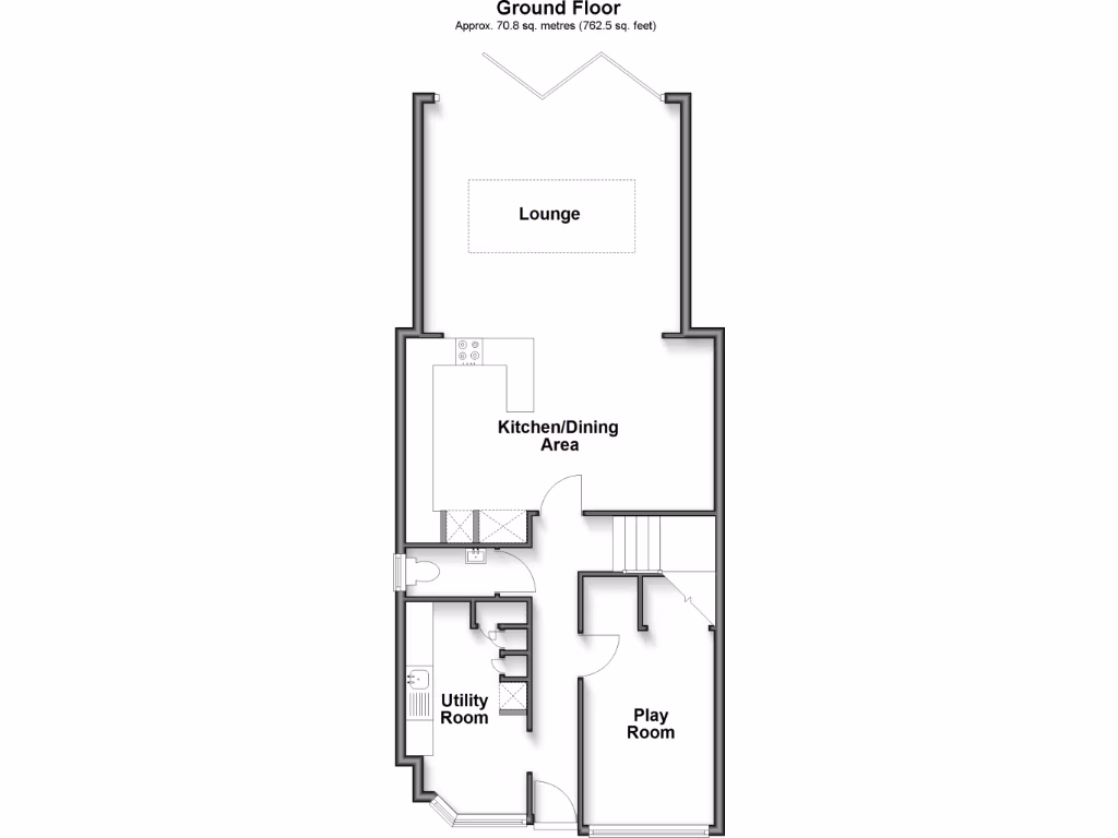
Open-plan kitchen/living with bi-fold doors to large garden
Separate utility room hides laundry and appliances
Dedicated playroom/study — flexible family space
Principal bedroom with built-in wardrobes
Single family bathroom only (no en-suite)
Off-street parking for multiple vehicles
Within Bohunt catchment; under 1 mile to Littlehaven station
Council tax above average; double glazing pre-2002 may need updating
This extended three-bedroom semi-detached house on Ropeland Way is arranged for busy family life. The modern open-plan kitchen and living area with bi-fold doors creates seamless indoor-outdoor flow onto a large garden and decking — ideal for entertaining or supervising children at play. A separate utility room keeps laundry out of sight, and the dedicated playroom/study offers flexible space for homework or home working.
Upstairs the principal bedroom includes contemporary built-in wardrobes; two further bedrooms and a well-appointed bathroom with walk-in shower and bath complete the accommodation. Built around 1996–2002 and presented in very good condition, the house benefits from mains gas central heating, cavity wall insulation and fast broadband — useful for commuting and remote work.
Practical points to note: there is a single family bathroom only, council tax is above average, and the double glazing was installed before 2002 so panes and seals may be older. The property sits within Bohunt Horsham catchment and is under a mile from Littlehaven station, making school runs and commuting straightforward. Buyers should verify planning/building regulation consents for the extension and other alterations where required.
3 bedroom semi-detached house for sale in Ropeland way, Horsham, RH12 — £495,000 • 3 bed • 2 bath • 1183 ft²
3 bedroom terraced house for sale in Peary Close, Horsham, RH12 — £465,000 • 3 bed • 2 bath • 1281 ft²
3 bedroom detached house for sale in Ropeland Way, Horsham, RH12 — £525,000 • 3 bed • 2 bath • 1044 ft²
3 bedroom link detached house for sale in Bignor Close, Horsham, RH12 — £525,000 • 3 bed • 2 bath • 949 ft²
3 bedroom semi-detached house for sale in Comptons Lane, Horsham, West Sussex, RH13 — £600,000 • 3 bed • 1 bath • 1357 ft²
3 bedroom semi-detached house for sale in Lambs Farm Road, Horsham, RH12 — £525,000 • 3 bed • 1 bath • 1315 ft²














































































