Two flats with conversion upside in a well-connected Stockport location.
To be sold by online auction on 12 Nov 2025
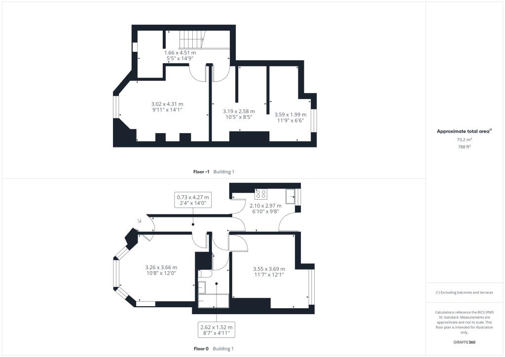
This Victorian end-of-terrace presents a hands-on investment or conversion project in a well-connected Stockport suburb. Currently arranged as two self-contained leasehold flats, the property is vacant and offered for online auction, attracting buy-to-let purchasers or developers seeking value-add opportunities.
The building requires refurbishment throughout — the first-floor flat needs full renovation and there are reported damp issues in the living room that will need addressing. Work will be needed to bring finishes, services and the EPC up to modern standards, but the property’s period features and high ceilings create strong potential to enhance appeal and rental value.
As two flats, the modest-sized property is estimated to achieve c. £950–£1,000 pcm each once refurbished; as a single three-bedroom dwelling the guidance rent is c. £1,300 pcm (subject to consents). There is a front and rear garden, private access for each flat, and excellent local transport links to Stockport town centre and beyond, supporting lettability.
Buyers should note the holding is leasehold, sale by online auction with a fixed date, and planning consent would be required to convert back to a single dwelling. This is a practical opportunity for an investor or developer prepared to manage renovation and regulatory steps to unlock uplift.
3 bedroom end of terrace house for sale in Stockport Road West, Bredbury, SK6 — £145,000 • 3 bed • 1 bath • 1441 ft²
2 bedroom terraced house for sale in Manvers Street, Stockport, SK5 — £90,000 • 2 bed • 1 bath • 772 ft²
2 bedroom flat for sale in Offerton Lane, Stockport, SK2 — £200,000 • 2 bed • 2 bath • 788 ft²
3 bedroom terraced house for sale in Stanhope Street, Stockport, Greater Manchester, SK5 — £165,000 • 3 bed • 1 bath • 1071 ft²
2 bedroom end of terrace house for sale in Ladysmith Street, Stockport, Cheshire, SK3 — £175,000 • 2 bed • 1 bath • 861 ft²
2 bedroom flat for sale in Stitch Lane, Stockport, Greater Manchester, SK4 — £130,000 • 2 bed • 1 bath • 631 ft²


























































