NE2 3DY - 4 bedroom end of terrace house for sale in Highbury, Jesmon…

View on Property Piper

4 bedroom end of terrace house for sale in Highbury, Jesmond, Newcastle upon Tyne, NE2

Summary - 24 HIGHBURY NEWCASTLE UPON TYNE NE2 3DY

4 bed 2 bath End of Terrace

### Standout Features:
- **Property Type:** Elegant Edwardian end-terrace
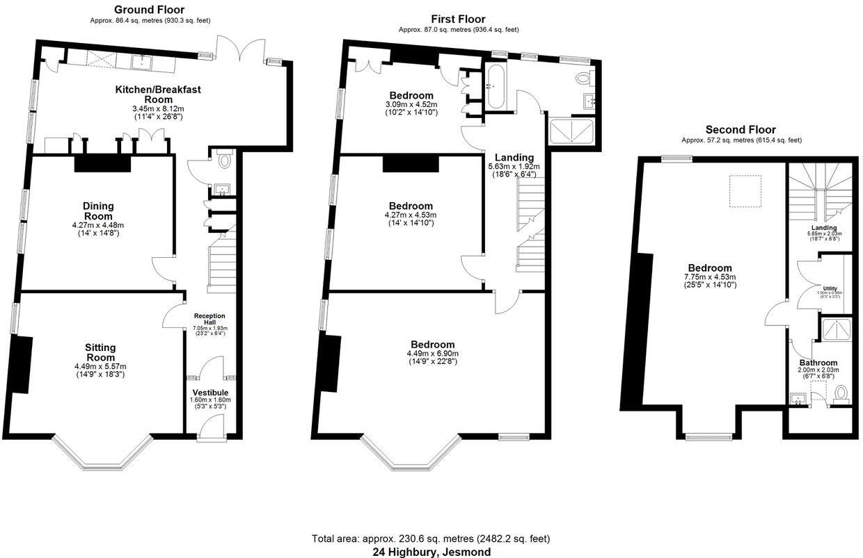
- **Size:** Approximately 2,482 sq. ft / 230.6 m²
- **Bedrooms:** 4 spacious double bedrooms
- **Bathrooms:** 2 bathrooms, including a family bathroom and a second floor shower room
- **Garden:** Generous west-facing front garden and an enclosed rear yard
- **Condition:** Well-maintained with period features; no onward chain
- **Location:** Desirable Jesmond area, close to schools, amenities, and Newcastle City Centre
- **Heating:** Gas central heating with boiler and radiators

### Summary:
Discover this splendid Edwardian end-terrace in the sought-after Jesmond locale, merging historic charm with contemporary convenience. Spanning an impressive 2,482 sq. ft, the home offers four generously-sized bedrooms, providing ample space for family living. The airy open plan living room features dual aspect windows, allowing for an abundance of natural light and stunning views over the landscaped gardens. The heart of the home is a generous 26ft kitchen breakfast room, complete with integrated appliances and French doors that seamlessly connect indoor and outdoor spaces.

Step into the beautifully designed west-facing gardens, ideal for relaxation and entertaining, ensuring this property meets all your lifestyle needs. With elegant period features like high ceilings, ornate cornicing, and stripped wood flooring, this home is imbued with character. Located within walking distance of excellent schools, local cafés, and Newcastle City Centre, it presents a remarkable opportunity for families and professionals alike. This exceptional residence is chain-free and presents a chance to own an exquisite home in a highly coveted area—early viewings are essential!

Property Details

Brochure Descriptions

Image Descriptions

Floorplan Description

Rooms

Textual Property Features

Detected Visual Features

EPC Details

Nearby Schools

Nearest Bars And Restaurants

,,,,}

Nearest General Shops

,,}

Nearest Grocery shops

,,}

Nearest Supermarkets

,,}

Nearest Religious buildings

,,}

Nearest Medical buildings

,,,}

Nearest Airports

,}

Nearest Leisure Facilities

,,,,}

Nearest Tourist attractions

,,}

Nearest Train stations

,,,,}

Nearest Bus stations and stops

,,,,}

Nearest Hotels

,,}

Tags

Local Market Stats

AirBnB Data

Similar Properties

Meta

High Res Images

Compatible Images

Low res Images

Thumbnails

Raw Images

High Res Floorplan Images

Compatible Floorplan Images

Low res Floorplan Images

FloorplanImages Thumbnail

Raw Floorplan Images