Compact, commuter-friendly home with garden and strong school catchment.
Freehold mid-terrace with three bedrooms
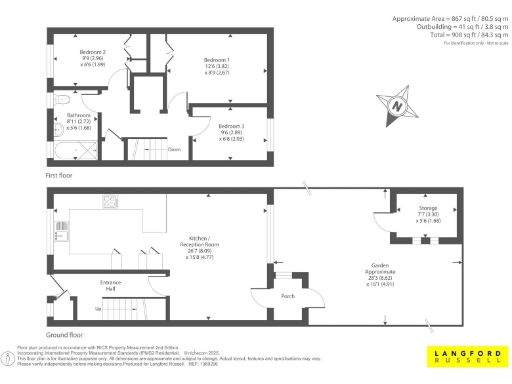
A compact three-bedroom mid-terrace offering practical, open-plan living close to Swanley mainline station. The ground floor opens into a generous kitchen/breakfast area flowing into the reception room, giving a bright, modern feel and convenient family circulation. The private rear garden is low-maintenance with lawn, patio and rear access.
Located within easy reach of Hextable Primary and high-performing Wilmington schools, this home suits first-time buyers seeking local school options and fast rail links into central London (Swanley station in the Oyster Zone, about 20 minutes to central London). The property is freehold and benefits from double glazing and gas central heating.
Buyers should note the house is modest in overall size (approximately 760 sq ft) and sits on a small plot, with a single family bathroom. The EPC is rated D and the property dates from the late 1970s/early 1980s, so some cosmetic updating or energy improvements may be needed to personalise and improve efficiency.
This home offers an affordable entry onto the local market with sensible living space, good commuter connections and strong nearby schools — a practical starting point for first-time buyers prepared to invest in minor upgrades.
3 bedroom terraced house for sale in Claremont Road, Hextable, Swanley, BR8 — £365,000 • 3 bed • 1 bath • 758 ft²
3 bedroom detached house for sale in Rollo Road, Swanley, Kent, BR8 — £550,000 • 3 bed • 1 bath • 1153 ft²
3 bedroom terraced house for sale in Rollo Road, Hextable, Swanley, Kent, BR8 — £400,000 • 3 bed • 1 bath • 968 ft²
3 bedroom end of terrace house for sale in Lynden Way, Swanley, Kent, BR8 — £415,000 • 3 bed • 1 bath • 801 ft²
4 bedroom semi-detached house for sale in Bower Road, Hextable, BR8 — £440,000 • 4 bed • 2 bath • 987 ft²
3 bedroom end of terrace house for sale in Braeburn Close, Swanley, Kent, BR8 — £400,000 • 3 bed • 2 bath • 740 ft²






























































































