Large private plot with countryside views, ideal for growing families.
Five good-sized bedrooms, master with en-suite
About 3,205 sq ft flexible living space, including loft room
Large private rear garden backing onto farmland
Driveway parking for several cars plus double garage
Open-plan kitchen/diner with utility and garden access
Energy Rating D; council tax Band E (above average)
Broadband speeds reported slow despite excellent mobile signal
Built 1983–1990; some modernisation likely required
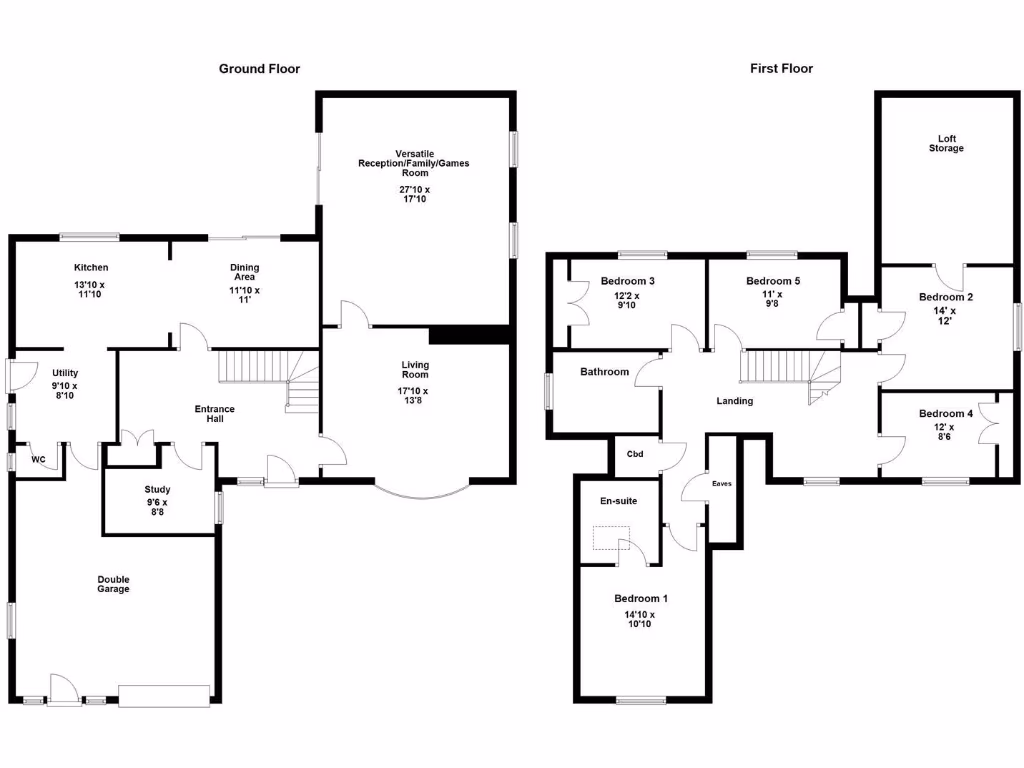
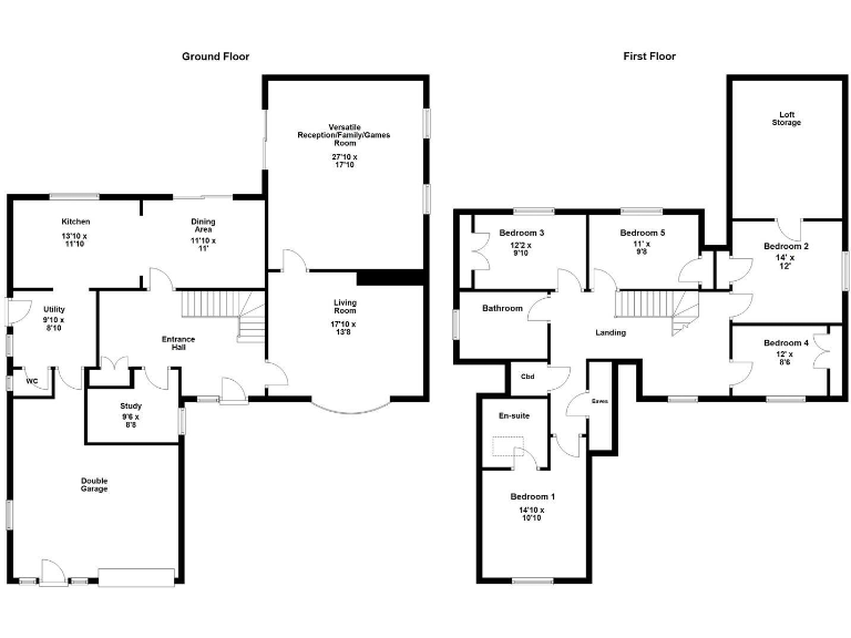
Set on a generous, private plot backing onto open farmland, this substantial five-bedroom detached home offers family-sized living across about 3,205 sq ft. Ground floor living includes a large reception hall, separate living and family rooms, a games room/study and an open-plan kitchen/diner with utility and garden access—ideal for everyday family life and entertaining.
Upstairs there are five well-proportioned bedrooms, the master with an en-suite, plus a large loft room providing useful storage or potential conversion (subject to consents). Outside, mature planting frames a broad driveway with parking for several cars and a double garage; the rear garden is expansive and enjoys direct countryside views and privacy.
Practical points to note: the property dates from the 1980s and presents traditional finishes and double glazing of unknown install date—some updating may be required to modernise services and decor. The Energy Rating is D and council tax is band E, which are realistic running-cost considerations. Broadband speeds are reported as slow despite excellent mobile signal and low local crime.
This house will suit buyers seeking a spacious family home with strong indoor-outdoor flow, rural outlook and room to personalise. There is clear scope for internal modernisation and possible extension (subject to planning), offering future value uplift for those prepared to invest.
5 bedroom detached house for sale in Southfield Road, Gretton, Corby, NN17 3BX, NN17 — £610,000 • 5 bed • 2 bath • 3205 ft²
4 bedroom detached house for sale in Maltings Court, Gretton, Corby, NN17 — £650,000 • 4 bed • 3 bath • 1927 ft²
3 bedroom detached bungalow for sale in Harringworth Road, Gretton, Corby, NN17 — £375,000 • 3 bed • 1 bath • 829 ft²
3 bedroom link detached house for sale in Finch Hatton Drive, Gretton, NN17 3DQ, NN17 — £269,950 • 3 bed • 1 bath • 677 ft²
4 bedroom barn conversion for sale in Kirby Road, Gretton, Northamptonshire, NN17 — £700,000 • 4 bed • 2 bath • 2723 ft²
5 bedroom detached house for sale in High Street, Gretton, NN17 — £900,000 • 5 bed • 3 bath • 3733 ft²






























































































































