**Standout Features:**
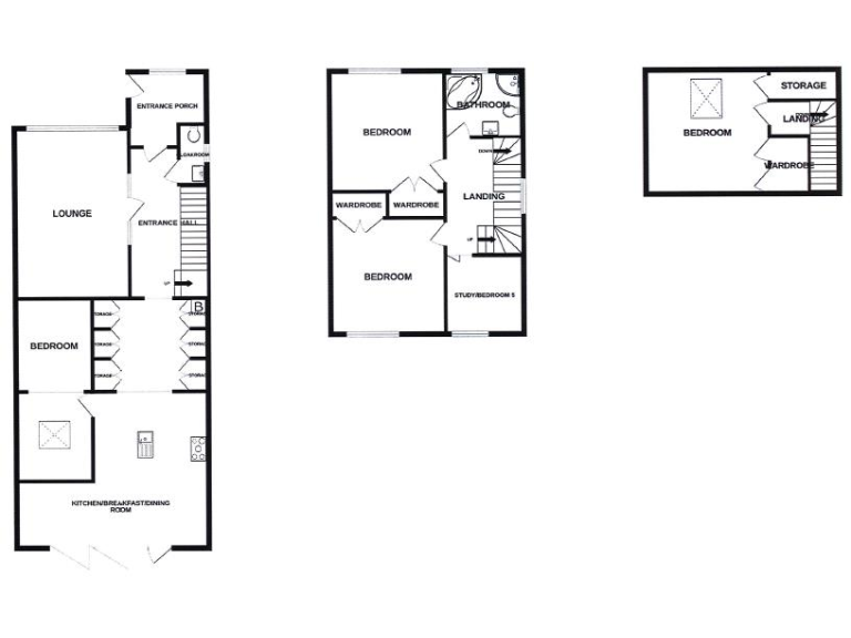
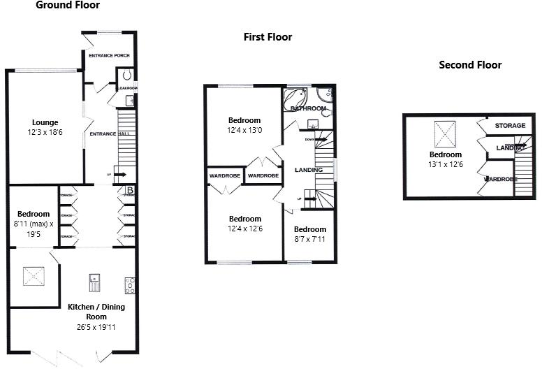
- Spacious five-bedroom semi-detached home arranged over three floors
- Modern, extended kitchen/dining area with tri-fold doors leading to the garden
- Generous, light-filled lounge with south-facing views
- Ground-floor bedroom with a dressing area
- Off-road parking and single garage
- Potential for en-suite addition in the master bedroom
- Attractive tiered rear garden with a mix of decked and lawn areas
**Summary:**
This delightful five-bedroom semi-detached family home is situated on a peaceful no-through road, making it a perfect retreat for families seeking comfort and space. An inviting entrance porch leads into a bright and airy hallway, setting the tone for a modernized interior. The heart of the home is undoubtedly the expansive kitchen/dining space, boasting vaulted ceilings, sleek high-gloss units, and tri-fold doors that seamlessly connect indoor and outdoor spaces—ideal for summer entertaining.
The spacious lounge, bathed in natural light from south-facing windows, provides a perfect spot for family gatherings. The ground floor features a versatile guest bedroom with a dressing area and a separate cloakroom for convenience. Upstairs, you'll discover three generous bedrooms, a family bathroom, and a master suite on the second floor with ample storage and stunning distant views.
While the property offers an appealing mix of modern design and practicality, potential buyers should note that there is limited outdoor space. However, the beautiful tiered garden serves as a private oasis for relaxation. With off-road parking and a garage, this home is perfectly positioned for family living in a comfortable neighborhood, close to local amenities, schools, and scenic walks. Don't miss the chance to call this inviting space your own—schedule a viewing today!
6 bedroom detached house for sale in Glynn Road, Peacehaven, BN10 8AT, BN10 — £650,000 • 6 bed • 2 bath • 1763 ft²
3 bedroom semi-detached house for sale in Ambleside Avenue, Telscombe Cliffs, Peacehaven, BN10 — £435,000 • 3 bed • 1 bath • 1216 ft²
5 bedroom detached house for sale in Phyllis Avenue, Peacehaven, BN10 — £625,000 • 5 bed • 3 bath • 2543 ft²
5 bedroom semi-detached house for sale in Swanborough Drive, Brighton, East Sussex, BN2 — £500,000 • 5 bed • 2 bath • 1962 ft²
5 bedroom detached house for sale in Sherwood Road, Seaford, BN25 — £450,000 • 5 bed • 1 bath • 1704 ft²
3 bedroom semi-detached house for sale in Brambletyne Avenue, Saltdean, BN2 8EL, BN2 — £425,000 • 3 bed • 1 bath • 807 ft²


































































































































