NW10 5JH - 4 bed victorian kensal green home in Brent Central, NW10 5JH

View on Property Piper

4 bedroom terraced house for sale in Bathurst Gardens, Kensal Green, London, NW10

Summary - 37, BATHURST GARDENS NW10 5JH

4 bed 2 bath Terraced

Spacious three-storey house with private garden near Bakerloo line.
Bay-fronted reception with high ceilings and original period features
Dining room opens to kitchen and patio doors to private garden
Three storeys with four good-sized bedrooms and two bathrooms
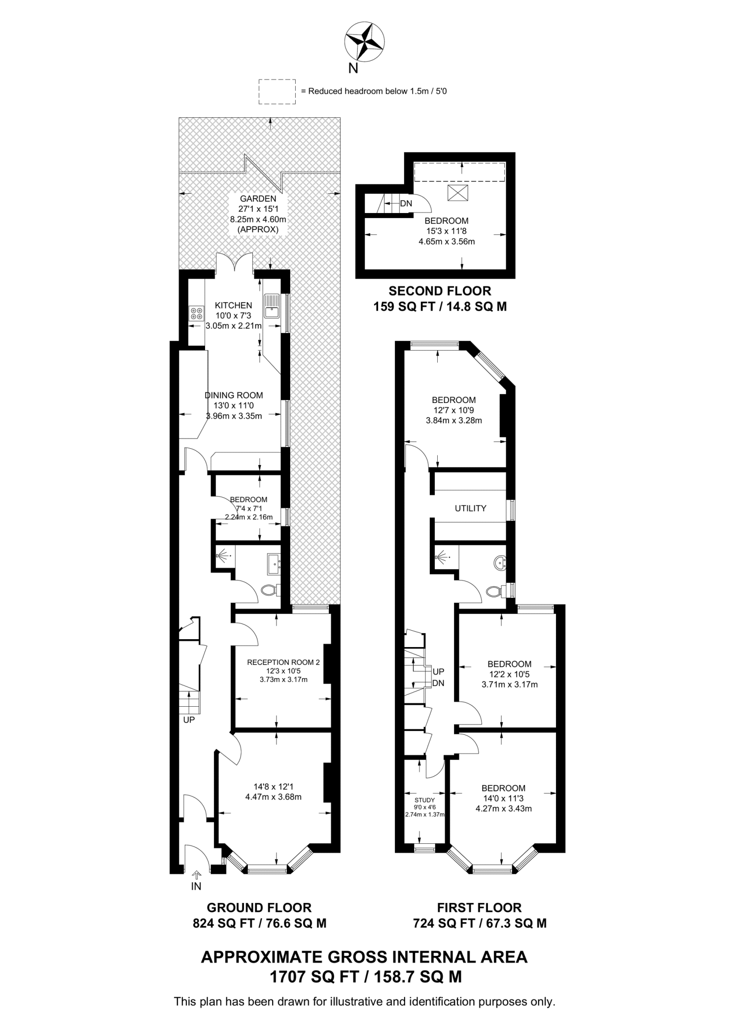
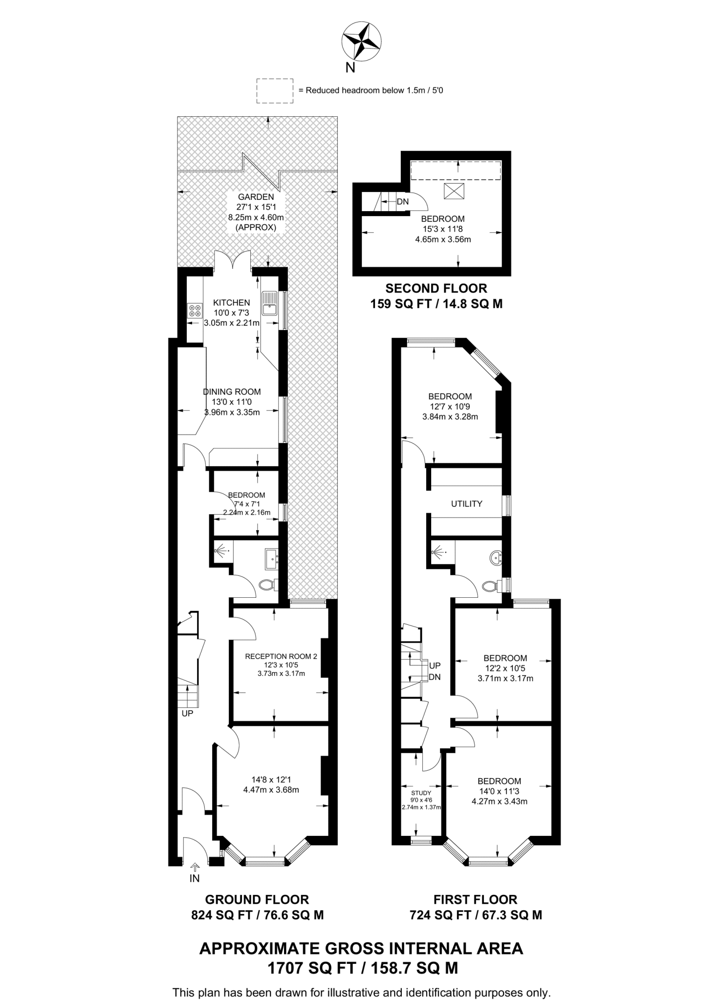
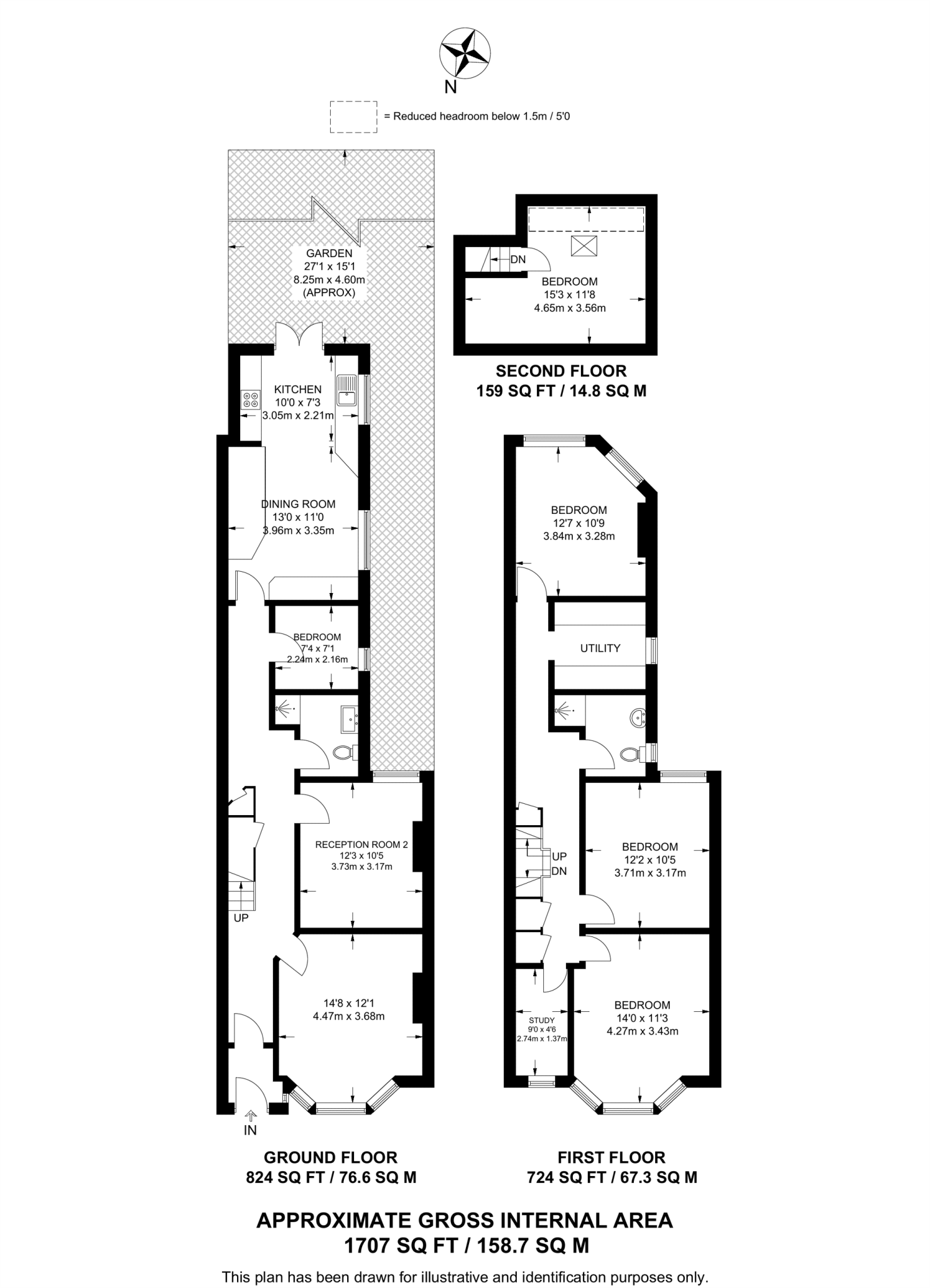
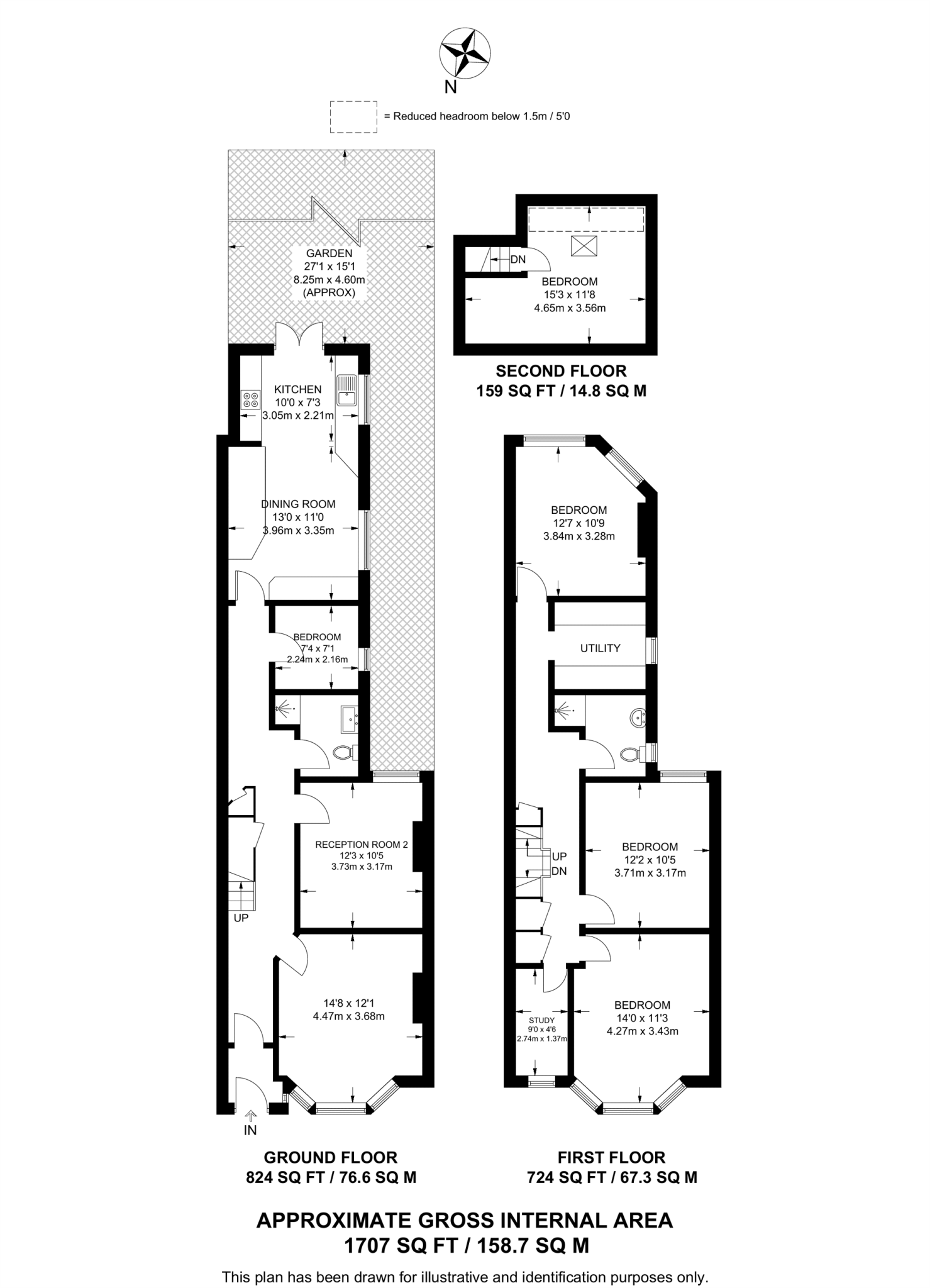
Average-sized 1,707 sq ft; mid-terrace Victorian build (c.1900–1929)
Solid brick walls assumed uninsulated; may need energy-efficiency work
Double glazing present but install date unknown
Small plot size and only two bathrooms for four bedrooms
Located in Kensal Green close to shops, restaurants and Bakerloo line
This bay-fronted Victorian terraced home spans three storeys and offers spacious living across an average-sized 1,707 sq ft layout. High ceilings, period features and a bright bay reception create classic character, while the dining room flows to a kitchen and patio doors opening onto a private garden — rare for central Kensal Green.

The house provides four good-sized bedrooms and two bathrooms, suitable for growing families needing space close to excellent local schools and the amenities of College Road. Kensal Green station (Bakerloo Line and National Rail) is within easy reach, offering fast links across London and strong connectivity with excellent mobile and broadband speeds.

Buyers should note some practical drawbacks: the plot is small and the property sits in an area with above-average crime and local deprivation indicators. The solid-brick walls are assumed uninsulated and the double-glazing install date is unknown, so the home may benefit from insulation or energy-efficiency upgrades. There are only two bathrooms for four bedrooms, and the interior will likely repay cosmetic updating to fully realise its potential.

Overall, this mid-terrace Victorian house suits families seeking period character, good local schools and excellent transport, while presenting sensible renovation and energy-improvement opportunities for long-term value.

Property Details

Image Descriptions

Floorplan Description

Rooms

Textual Property Features

Target Audience

AI Tags

Detected Visual Features

EPC Details

Nearby Schools

Nearest Bars And Restaurants

,,,,}

Nearest General Shops

,,}

Nearest Grocery shops

,,}

Nearest Supermarkets

,,}

Nearest Religious buildings

,,}

Nearest Medical buildings

,,,}

Nearest Airports

,}

Nearest Leisure Facilities

,,,,}

Nearest Tourist attractions

,,}

Nearest Train stations

,,,,}

Nearest Bus stations and stops

,,,,}

Nearest Hotels

,,}

Tags

Local Market Stats

AirBnB Data

Similar Properties

Meta

High Res Images

Compatible Images

Low res Images

Thumbnails

Raw Images

High Res Floorplan Images

Compatible Floorplan Images

Low res Floorplan Images

FloorplanImages Thumbnail

Raw Floorplan Images