**Standout Features:**
- Newly built detached property in Orchard Gardens, St. Albans.
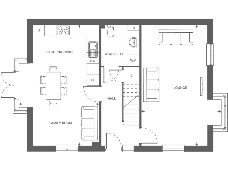
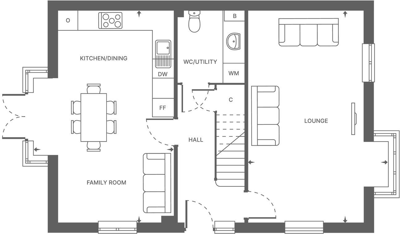
- Open plan kitchen/dining/family room with integrated appliances.
- Large 21' lounge with square bay window.
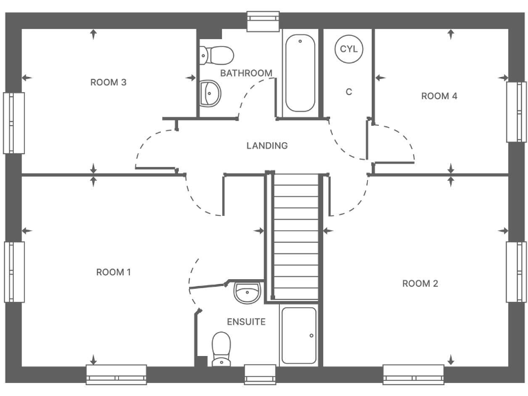
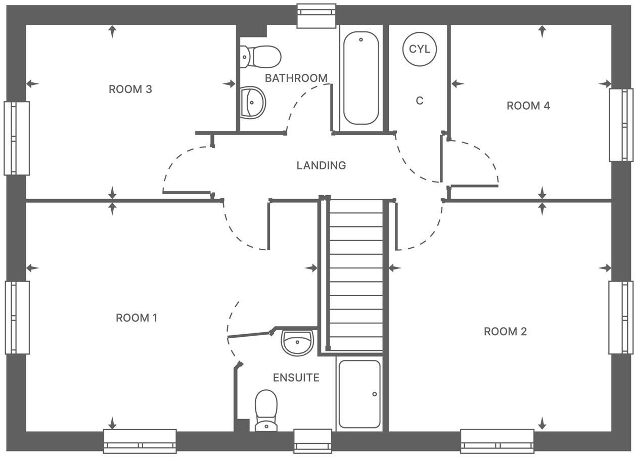
- Four spacious bedrooms, including an en-suite for the master.
- Garage with EV charging point and additional parking.
- Energy-efficient PV panels.
- Low crime, family-friendly area within walking distance to schools and shops.
- 10-Year NHBC Warranty and 2-Year Abbey New Homes Warranty.
- Chain-free, providing move-in flexibility.
**Summary:**
Discover your dream family home in Orchard Gardens, St. Albans. This rare four-bedroom detached property spans 1,384 square feet and boasts contemporary design and modern finishes throughout. You're welcomed by a spacious lounge perfect for relaxing or entertaining, leading to an impressive open plan kitchen/dining/family area, equipped with integrated appliances and abundant natural light from the square bay window and French doors that open onto the landscaped garden.
The convenient separate utility room and a garage with an EV charging point enhance the practicality of this new build, ensuring it meets the needs of modern living. Enjoy peaceful suburban life with low crime rates and easy access to top-rated schools, shops, and transport options. With energy-efficient features such as PV panels and a dependable warranty, this property presents a wonderful opportunity for families looking for a blend of comfort and style. Don't miss out; homes like this are rarely available for long!
4 bedroom detached house for sale in Orchard Drive, St Albans, AL2 — £835,000 • 4 bed • 2 bath • 1395 ft²
4 bedroom detached house for sale in Orchard Drive, St Albans, AL2 — £785,000 • 4 bed • 2 bath • 1191 ft²
4 bedroom detached house for sale in Orchard Drive, St Albans, AL2 — £850,000 • 4 bed • 2 bath • 1395 ft²
4 bedroom detached house for sale in Oaklands Lane, Smallford, St. Albans, Hertfordshire, AL4 — £910,000 • 4 bed • 2 bath • 1556 ft²
4 bedroom detached house for sale in Colney Manor, Bullens Green Lane, Colney Heath, St. Albans, AL4 — £825,000 • 4 bed • 2 bath • 917 ft²
4 bedroom detached house for sale in Westfields, St. Albans, Hertfordshire, AL3 — £800,000 • 4 bed • 1 bath • 1518 ft²






































































