**Standout Features:**
- Recently renovated 2-bed terraced house
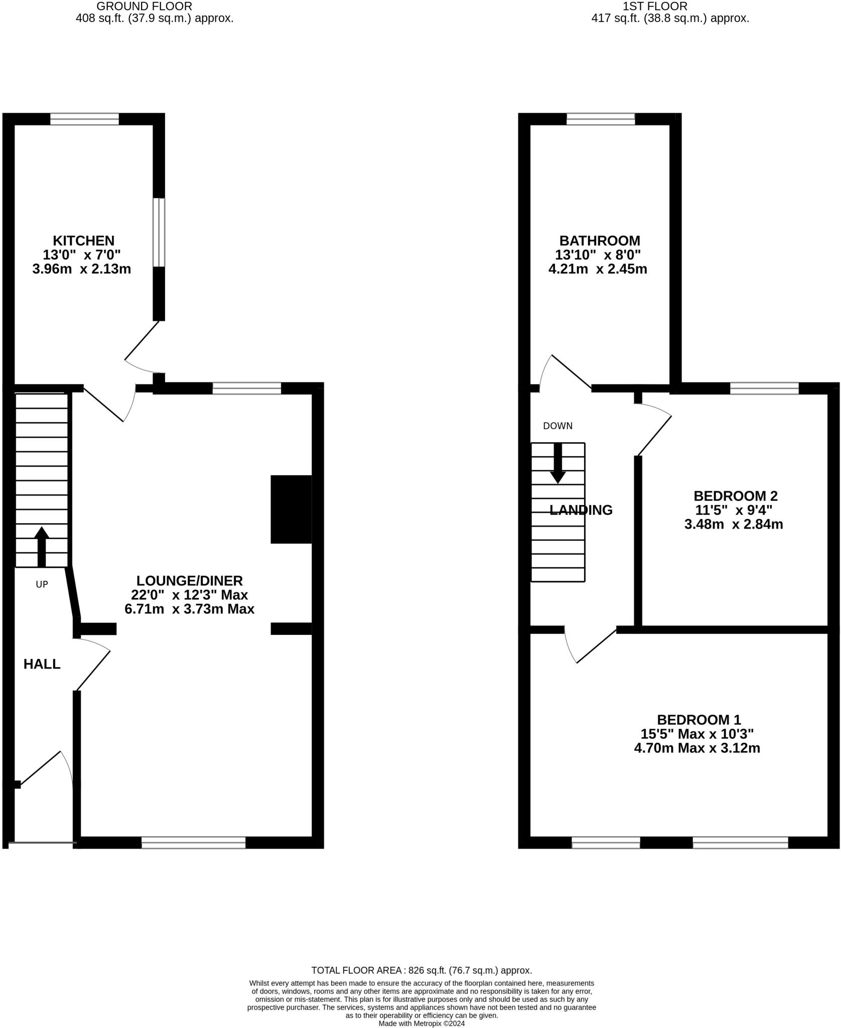
- Modern fitted kitchen and spacious, newly designed bathroom with separate shower
- Includes rear garage space or garden with south-facing aspect
- Chain-free for a swift move-in
- Excellent local amenities within a mile, including shops and recreational facilities
- Convenient transport links, including railway stations just a short distance away
**Property Summary:**
Discover your charming home in this beautifully restored Victorian terraced house, perfectly suited for first-time buyers or small families. Recently fully renovated, this inviting property boasts a stylish modern kitchen with integrated appliances and generous storage, alongside a spacious lounge/diner that is perfect for entertaining. The standout feature is the new, large bathroom equipped with both a bath and shower, offering comfort and convenience.
With two well-sized bedrooms located on the first floor, the accommodation is bright and freshly decorated throughout. Unique for a terraced house, this property also includes a garage space or garden area accessible from the rear. Situated in a popular area close to Northwich town centre, you'll enjoy easy access to a host of independent shops, dining options, and leisure facilities, including beautiful riverside walks just a short stroll away.
While the property is in excellent condition, potential buyers should note that any services and fittings have not been independently tested. The council tax is affordable, making this residence an attractive option for those seeking value in a community-oriented neighborhood. Act quickly; properties like this, with modern features and desirable location, don’t last long on the market!
2 bedroom end of terrace house for sale in Romanes Street, Northwich, Cheshire, CW8 — £175,000 • 2 bed • 1 bath • 811 ft²
3 bedroom end of terrace house for sale in James Street, Northwich, CW9 — £189,000 • 3 bed • 2 bath • 827 ft²
2 bedroom end of terrace house for sale in Burgess Place, Northwich, CW8 — £190,000 • 2 bed • 2 bath • 953 ft²
2 bedroom terraced house for sale in Navigation Road, Northwich, CW8 — £150,000 • 2 bed • 1 bath • 559 ft²
3 bedroom terraced house for sale in Royle Street, Northwich, Cheshire, CW9 — £160,000 • 3 bed • 1 bath • 872 ft²
2 bedroom terraced house for sale in Victoria Road, Northwich, CW9 — £150,000 • 2 bed • 1 bath • 882 ft²






























































