LS17 9BD - 4 bedroom semidetached house for sale in Wetherby Road, Bar…

View on Property Piper

4 bedroom semi-detached house for sale in Wetherby Road, Bardsey, LS17

Summary - LINZ-GARTH WETHERBY ROAD BARDSEY LEEDS LS17 9BD

4 bed 2 bath Semi-Detached

Large 4-bedroom 1930s home with big garden and open countryside views..
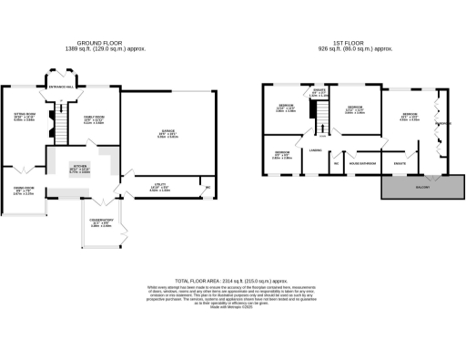
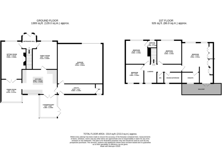
- Over 2,300 sqft of living space across multiple reception rooms
- Sensational open-plan dining kitchen overlooking the rear garden
- Four roomy bedrooms, principal bedroom with en-suite and balcony
- Large, private landscaped gardens and driveway parking plus garage
- Solid brick 1900–1929 construction; assumed no wall insulation
- Older double glazing (installed before 2002) and EPC rating D
- Council tax band above average; running costs likely higher
- Village location with excellent schools, low crime, fast broadband
A substantial extended 1930s semi-detached house on Wetherby Road, offering over 2,300 sqft of flexible family space and wide open views across the surrounding countryside. The layout includes three generous reception rooms and a sensational open-plan dining kitchen that opens to a well-maintained rear garden — ideal for family life and entertaining.

Upstairs offers four well-proportioned bedrooms, a newly updated en-suite to the principal bedroom with private balcony views, and a striking refurbished family bathroom. Practical ground-floor features include a utility room with access to the attached garage, a guest cloakroom, and plentiful fitted storage throughout.

Notable positives include a large private plot, private driveway with ample parking and a garage, low local crime and very good local schools. The property is in good decorative order and has been carefully maintained, but buyers should note its age: solid-brick construction (c.1900–1929) with assumed lack of wall insulation, older double glazing (installed before 2002) and an EPC rating of D. These factors mean there is clear scope — and likely cost — to improve thermal performance and energy efficiency.

This home will suit families seeking space and countryside character close to commuter routes, or buyers who value a large garden and village living. Factor in council tax (above average) and potential upgrade works when assessing running costs and future renovation plans.

Property Details

Brochure Descriptions

Image Descriptions

Floorplan Description

Rooms

Textual Property Features

Target Audience

AI Tags

Detected Visual Features

EPC Details

Nearby Schools

Nearest Bars And Restaurants

,,,,}

Nearest General Shops

,,}

Nearest Grocery shops

,,}

Nearest Supermarkets

,,}

Nearest Religious buildings

,,}

Nearest Medical buildings

,,,}

Nearest Airports

}

Nearest Leisure Facilities

,,,,}

Nearest Tourist attractions

,,}

Nearest Train stations

,,,,}

Nearest Bus stations and stops

,,,,}

Nearest Hotels

,,}

Tags

Local Market Stats

Similar Properties

Meta

High Res Images

Compatible Images

Low res Images

Thumbnails

Raw Images

High Res Floorplan Images

Compatible Floorplan Images

Low res Floorplan Images

FloorplanImages Thumbnail

Raw Floorplan Images