Compact, single-storey living with garage and landscaped garden near Woolton Village.
- Detached single-storey bungalow, ideal for downsizing
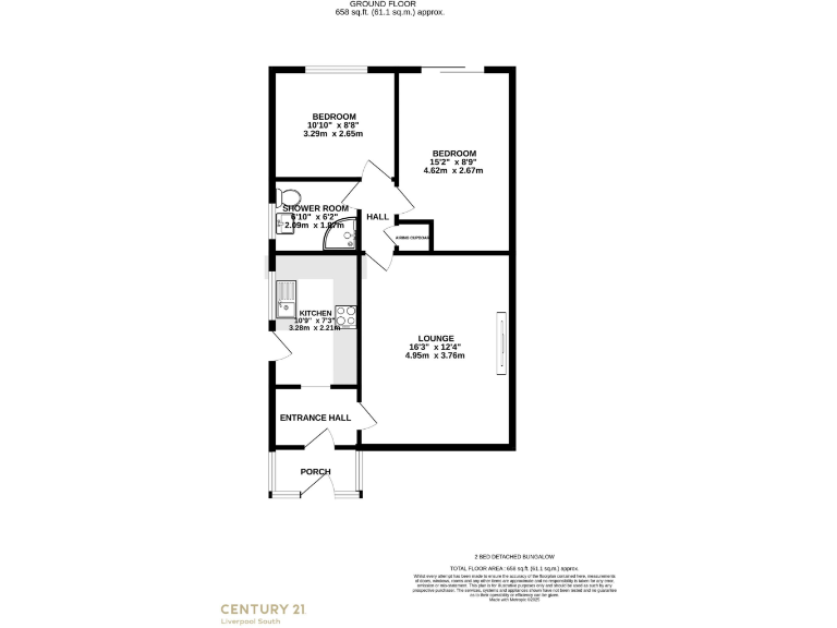
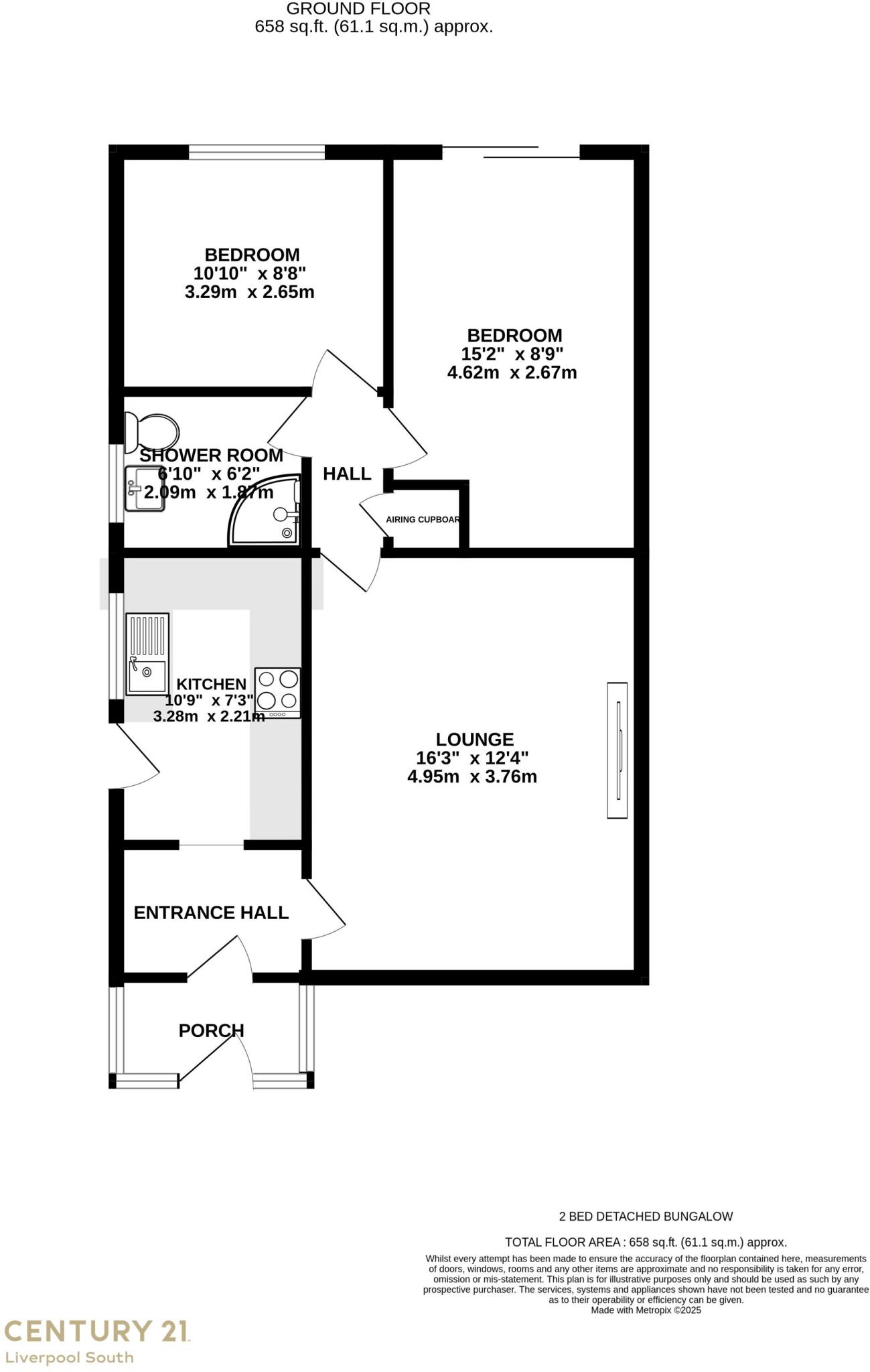
- Two well-proportioned bedrooms, one shower room
- Fitted kitchen and large lounge, ready to occupy
- Detached garage plus driveway for off-street parking
- Landscaped rear garden with two paved patio areas
- Modest overall size (c.658 sq ft) — limited living space
- EPC D; double glazing (install date unknown)
- Area classified as deprived; average crime levels
A well-presented two-bedroom detached bungalow offering single-storey living in a popular Woolton location. The home has a fitted kitchen, large lounge, and a practical shower room — suited to buyers seeking manageable, ground-floor accommodation with immediate move-in potential. Off-road parking, a detached garage and a landscaped rear garden with patios add clear lifestyle value for entertaining or low-maintenance outdoor enjoyment.
Constructed in the early 1990s, the property benefits from mains gas central heating, double glazing (installation date unknown) and a cavity wall that is assumed insulated. The overall footprint is modest (about 658 sq ft), making it a practical choice for downsizers or anyone wanting a compact, contemporary bungalow close to Woolton Village amenities, schools and good road links.
There are a few practical points to note: the home has a single shower room only and is of average internal size, so buyers needing more space or extra bathrooms should consider the limitations. The surrounding area is classified as deprived with average crime levels; however local services, fast broadband and a cluster of well-rated schools nearby offset those concerns for many buyers.
Overall this is a tidy, move-in-ready bungalow with realistic scope for modest updates rather than major renovation, ideal for those prioritising single-storey convenience, a manageable garden and off-street parking within reach of Woolton’s shops and leisure facilities.
3 bedroom bungalow for sale in Clay Cross Road, Liverpool, Merseyside, L25 — £475,000 • 3 bed • 1 bath • 1002 ft²
2 bedroom bungalow for sale in Mansell Drive, Liverpool, Merseyside, L26 — £325,000 • 2 bed • 1 bath • 1341 ft²
2 bedroom detached bungalow for sale in Brookhurst Road, Bromborough, CH63 — £275,000 • 2 bed • 1 bath • 786 ft²
2 bedroom detached bungalow for sale in Runnells Lane, Liverpool, L23 — £325,000 • 2 bed • 2 bath • 844 ft²
2 bedroom bungalow for sale in Kirkland Close, Liverpool, Merseyside, L9 — £175,000 • 2 bed • 1 bath • 570 ft²
2 bedroom bungalow for sale in Sylvan Court, Liverpool, Merseyside, L25 — £200,000 • 2 bed • 1 bath • 492 ft²






















































































