**Standout Features:**
- Pre-owned luxury Stately Topaz park home built in 2021
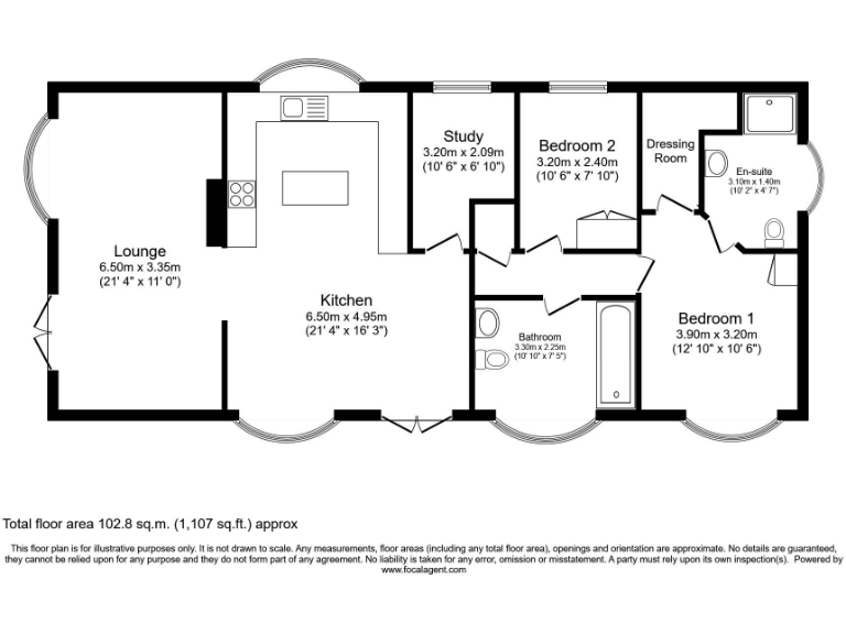
- Modern, spacious design on a large plot (50'x22')
- Two double bedrooms, en-suite, study, and two bathrooms
- Off-street parking for 2 cars
- Pet-friendly with easy-to-maintain garden featuring artificial grass
- Located in a welcoming community tailored for residents aged 45 and over
- Prime location near New Forest and coastal amenities
This exceptional pre-owned park home offers an ideal retreat for those seeking a blend of modern comfort and community living. Set within beautifully landscaped grounds in St Leonards, Dorset, this contemporary bungalow features two spacious double bedrooms, a versatile study, and an inviting semi-open kitchen complete with an island. Natural light floods the comfortable living space through large windows, enhancing the home's airy ambiance and connecting you beautifully to the surrounding tranquil greenery.
The property boasts a meticulously maintained, easy-care garden, perfect for enjoying sunny days and entertaining. The generous decking space provides additional outdoor living options, making it ideal for relaxation or social gatherings with friends and family. While the home is in excellent condition, it’s designed with low maintenance in mind, allowing you to enjoy your surroundings without the hassle.
With access to lovely walking trails nearby, a safe and vibrant community atmosphere, and essential amenities just a short drive away, this park home is perfect for first-time buyers, retirees, or anyone looking to downsize in elegance. Don’t miss the opportunity to embrace a peaceful lifestyle in this exclusive area—this property is a combination of luxury living and community spirit that won’t last long!
2 bedroom park home for sale in Silver Mists Park, St Leonards, Dorset, BH24 — £240,000 • 2 bed • 2 bath • 900 ft²
2 bedroom detached house for sale in Alpine Drive, RINGWOOD, Hampshire, BH24 — £340,000 • 2 bed • 2 bath • 981 ft²
2 bedroom park home for sale in Alpine Drive, Silver Mists Park, Matchams, Ringwood, BH24 — £275,000 • 2 bed • 1 bath • 899 ft²
2 bedroom park home for sale in Fillybrook Fields, Matchams Lane, Hurn, Christchurch, Dorset, BH23 — £325,000 • 2 bed • 2 bath • 889 ft²
2 bedroom park home for sale in New Forest Glades, Matchams Lane, Hurn, Nr Christchurch, BH23 6AW, BH23 — £310,000 • 2 bed • 2 bath • 1000 ft²
2 bedroom bungalow for sale in Fillybrook Fields, Matchams Lane, Hurn, Christchurch, Dorset, BH23 — £325,000 • 2 bed • 2 bath • 1000 ft²






































































































