B16 8FQ - 1 bedroom flat for sale in Sherborne Street, Birmingham, B16

View on Property Piper

1 bedroom flat for sale in Sherborne Street, Birmingham, B16

Summary - Apartment 11, 53, Sherborne Street, BIRMINGHAM B16 8FQ

1 bed 1 bath Flat

**Key Features:**
- Chain-free city center apartment
- 105 years remaining on long lease
- Open-plan living area
- Modern kitchen with built-in oven and hob
- Double bedroom with fitted wardrobe
- Electric heating and double glazing
- Off-street parking available
- Close to Broad Street, Brindley Place, and public transport

This spacious upper-floor apartment in the exclusive 'Europa' development offers a fantastic opportunity for first-time buyers or investors seeking a well-located property in a vibrant, multicultural neighborhood. Boasting an inviting open-plan living space and a well-equipped kitchen, this one-bedroom flat is in good condition overall, although minor cosmetic upgrades could enhance its appeal. Positioned conveniently near major road links, nightlife, and New Street Station, it promises an urban lifestyle with access to local amenities and conveniences.

While the apartment is ready to move into, the need for renovation adds value for those wanting to personalize their living environment. The property benefits from a low service charge that covers essential maintenance, making it a prudent investment. With no upward chain, this opportunity is available now—don't miss your chance to own a slice of city living at an attractive price.

Property Details

Image Descriptions

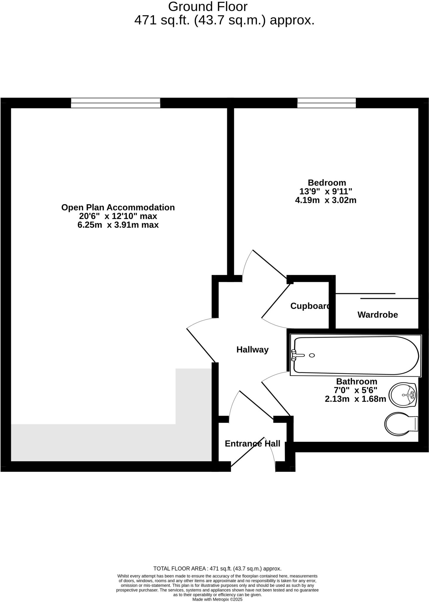
Floorplan Description

Rooms

Textual Property Features

Detected Visual Features

Nearby Schools

Nearest Bars And Restaurants

,,,,}

Nearest General Shops

,,}

Nearest Grocery shops

,,}

Nearest Supermarkets

,,}

Nearest Religious buildings

,,}

Nearest Medical buildings

,,,}

Nearest Airports

}

Nearest Leisure Facilities

,,,,}

Nearest Tourist attractions

,,}

Nearest Train stations

,,,,}

Nearest Bus stations and stops

,,,,}

Nearest Hotels

,,}

Tags

Local Market Stats

AirBnB Data

Similar Properties

Meta

High Res Images

Compatible Images

Low res Images

Thumbnails

Raw Images

High Res Floorplan Images

Compatible Floorplan Images

Low res Floorplan Images

FloorplanImages Thumbnail

Raw Floorplan Images