**Outstanding Features:**
- **Idyllic Location:** Nestled in a peaceful countryside setting with scenic walks at your doorstep.
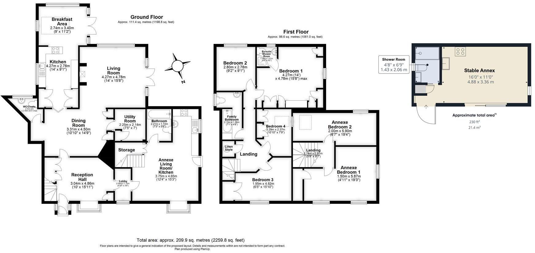
- **Charming Main House:** Four spacious bedrooms with period charm, including a cozy wood-burning stove and an open-plan kitchen.
- **Flexible Living Options:** Two self-contained annexes currently operating as successful holiday lets, generating reliable income.
- **Beautiful Gardens:** South-west facing outdoor space perfect for relaxation and entertaining.
- **Access to Amenities:** Close proximity to Stratford-upon-Avon and Warwick, blending rural tranquility with urban connectivity.
**Property Summary:**
Discover Apple Tree Cottage, an enchanting semi-detached country retreat that seamlessly combines traditional charm and modern comforts on a generous plot of over a quarter of an acre. This character-laden home features four well-proportioned bedrooms and a warm, inviting open-plan kitchen and breakfast area overlooking meticulously maintained gardens. Enjoy the privacy of two excellent self-contained annexes, consisting of a two-bedroom retreat and a garden studio, both boasting proven rental potential—a perfect opportunity for investors or multi-generational living.
The property includes sizable outdoor space ideal for summer gatherings, with lush south-west facing gardens providing the perfect backdrop for relaxation. Located within reach of delightful countryside walks, yet conveniently close to the vibrant amenities of Stratford-upon-Avon and Warwick, Apple Tree Cottage offers a rare opportunity to invest in a tranquil lifestyle without sacrificing accessibility.
While the property is in good condition, buyers should be aware of potential maintenance needs typical of character homes. With its blend of charm, space, and income potential, this cottage is an excellent opportunity that is sure to attract interest—don’t miss your chance to make it your own!
4 bedroom semi-detached house for sale in Burbage Avenue, Stratford-Upon-Avon, CV37 — £495,000 • 4 bed • 2 bath • 1559 ft²
4 bedroom barn conversion for sale in Birmingham Road, Haseley, CV35 — £700,000 • 4 bed • 3 bath • 1637 ft²
3 bedroom detached bungalow for sale in Wootton Close, Stratford-Upon-Avon, CV37 — £595,000 • 3 bed • 2 bath • 1783 ft²
Plot for sale in Boundry Lane, Stratford Upon Avon, Warwickshire, CV37 — £575,000 • 4 bed • 3 bath • 1962 ft²
4 bedroom semi-detached house for sale in Dale Avenue, Stratford-Upon-Avon, CV37 — £700,000 • 4 bed • 2 bath • 1552 ft²
6 bedroom detached house for sale in Fosse Way, Moreton Morrell, CV35 — £1,750,000 • 6 bed • 7 bath • 4877 ft²


















































































































































































































































