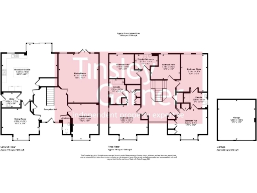
**Standout Features:**
- Five spacious double bedrooms, including two with ensuites
- Three reception areas: living room, dining room, and family room
- Immaculate, modern breakfast kitchen complete with high-end appliances
- Enclosed landscaped rear garden ideal for outdoor entertaining
- Detached double garage with EV charging point
- Large plot size with ample off-road parking
**Notable Concerns:**
- High council tax band
- Located in a deprived area, which may impact property value
Welcome to your dream executive family home located in the desirable Wedgwood Park development. This superbly maintained detached property, built in 2016, boasts a generous 2750 square feet of living space, designed with modern comfort in mind. The striking Tudor Revival facade sets the tone for its high-quality interiors, featuring five spacious double bedrooms, three elegant bathrooms (two of which are ensuites), and an abundance of entertaining space across the living room, dining room, and family room.
Indulge your culinary skills in the contemporary breakfast kitchen, equipped with premium integrated appliances and a chic design. The landscaped rear garden serves as a perfect backdrop for gatherings with friends and family, while the private driveway and detached double garage enhance convenience with dedicated EV charging facilities. Situated within walking distance of Barlaston village and its amenities, you’ll also enjoy easy access to the picturesque countryside and key commuter routes.
This home combines ample living space, modern conveniences, and investment potential, making it ideal for families or discerning buyers looking for a substantial residence in a vibrant community. Act swiftly—homes in this area often attract keen interest!
5 bedroom detached house for sale in Florentine Avenue, Barlaston, Stoke-on-Trent, ST12 — £675,000 • 5 bed • 3 bath • 2500 ft²
5 bedroom detached house for sale in Franklin Drive, Blythe Bridge, ST11 9TN, ST11 — £625,000 • 5 bed • 4 bath • 2148 ft²
4 bedroom detached house for sale in Conran Place, Barlaston, ST12 — £485,000 • 4 bed • 3 bath • 1594 ft²
5 bedroom detached house for sale in Blundell Drive, Stone, ST15 — £435,000 • 5 bed • 3 bath • 1689 ft²
6 bedroom detached house for sale in High Street, STOKE-ON-TRENT, Staffordshire, ST7 — £500,000 • 6 bed • 2 bath • 2591 ft²
6 bedroom detached house for sale in Intaglio Drive, Barlaston, Stoke-on-Trent, ST12 — £710,000 • 6 bed • 3 bath • 2420 ft²


































































































































































