Well-updated detached bungalow with south-facing garden and garage — ideal for downsizers.
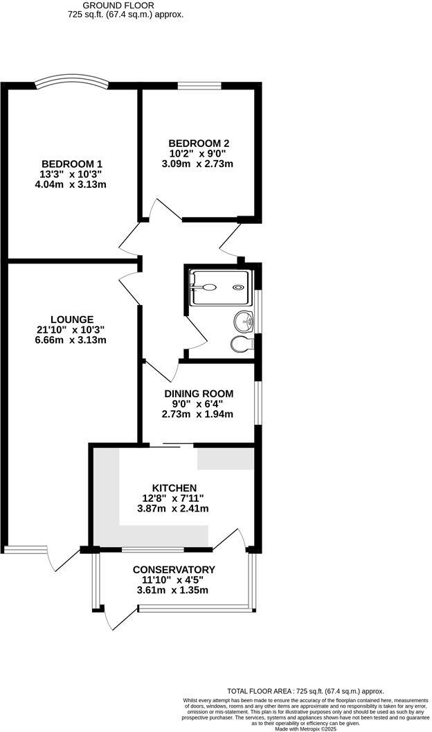
Detached single-storey bungalow with two double bedrooms
Quiet, single-storey living meets practical updates in this well-presented detached bungalow on Lindale Road. The layout offers two double bedrooms, a large living room, separate dining room and a re-fitted kitchen with integrated appliances — a compact, low-maintenance home suited to downsizers or couples seeking single-floor convenience.
The conservatory/utility and re-fitted shower room add practical, modern touches, while the enclosed south-facing rear garden provides a sunny, private spot for relaxing and pottering. A concrete driveway and detached single garage give off-street parking and secure storage, and the property benefits from gas central heating and uPVC double glazing throughout.
Be aware of a few material points: the EPC is rated D and the local area shows higher-than-average crime and wider area economic deprivation, which may affect future resale. The plot and rear garden are modest for a bungalow, so buyers seeking large outside space should note the limited garden size.
Overall this freehold bungalow delivers easy, low-maintenance living and sensible modernisation potential. It’s an appealing option for downsizers, first-time buyers wanting a future-proof single-storey home, or those seeking a compact property with scope to personalise.
2 bedroom detached bungalow for sale in Norton Avenue, Somersall, Chesterfield, S40 3NG, S40 — £349,950 • 2 bed • 1 bath • 610 ft²
2 bedroom detached bungalow for sale in Holmesdale Close, Dronfield, S18 — £270,000 • 2 bed • 1 bath • 937 ft²
2 bedroom semi-detached bungalow for sale in Heath Avenue, Killamarsh, Sheffield, S21 — £195,000 • 2 bed • 1 bath • 598 ft²
2 bedroom semi-detached bungalow for sale in Coniston Drive, Clay Cross, S45 — £180,000 • 2 bed • 1 bath • 581 ft²
2 bedroom detached bungalow for sale in Woodleigh Close, Chesterfield, S40 — £250,000 • 2 bed • 1 bath • 968 ft²
3 bedroom detached bungalow for sale in Yeldersley Close, Holme Hall, Chesterfield, S40 — £300,000 • 3 bed • 2 bath • 1146 ft²










































































