**Property Highlights:**
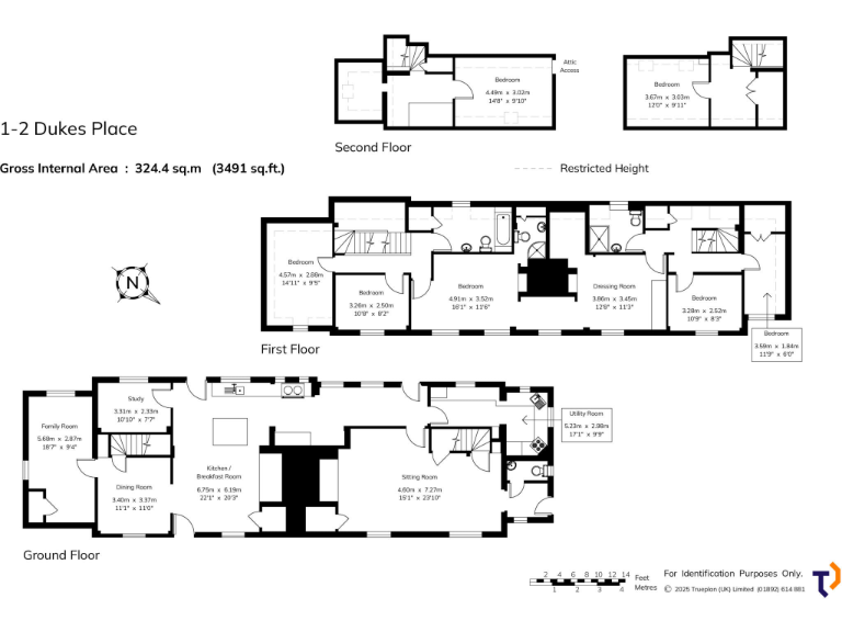
- Expansive 3,491 sq ft Tudor-style detached residence
- 7 spacious bedrooms and 3 reception rooms
- Impeccably maintained period features, including inglenook fireplaces
- Generously landscaped gardens with multiple seating areas
- Quiet rural location near West Peckham village, with low crime rates
- Excellent connectivity to London and surrounding areas
- Ample off-street parking for six or more cars
- Local amenities and reputable schools nearby
Discover the distinctive charm of this stunning Tudor-style property that offers a remarkable blend of historic elegance and modern comfort. Spanning over 3,400 sq ft, this residence features 7 well-appointed bedrooms and 3 reception rooms, perfect for large families or those seeking additional space. Step into the open kitchen and breakfast room, equipped with high-end appliances and a striking inglenook fireplace, which sets the tone for this refined home's inviting aesthetic. Traditional elements like exposed beams and wooden doors harmonize beautifully with contemporary finishes throughout.
Nestled in a serene rural location, the property boasts meticulously landscaped gardens that serve as a private sanctuary, complete with mature trees and various seating areas to soak in the tranquility of country living. Although the village amenities are just moments away, including a gastro pub and vineyard, the property maintains a secluded yet connected feel. Ample off-street parking makes hosting family or guests a breeze.
With its flexible living arrangements and exceptional setting, this delightful home offers limitless potential for those looking to create lasting memories. Explore the possibilities today—properties like this, with both character and space, don’t come along often!
3 bedroom detached house for sale in Forge Lane, West Peckham, Maidstone, ME18 — £850,000 • 3 bed • 2 bath • 1291 ft²
Equestrian facility for sale in Claxfield Road, Lynsted, Kent, ME9 — £1,650,000 • 4 bed • 2 bath • 2964 ft²
6 bedroom detached house for sale in Bethersden, Ashford, Kent, TN26 — £1,750,000 • 6 bed • 3 bath • 3721 ft²
7 bedroom detached house for sale in Dane Park, East Farleigh, Maidstone, ME15 — £1,350,000 • 7 bed • 4 bath • 3197 ft²
2 bedroom semi-detached house for sale in Broadwater Road, West Malling, ME19 — £600,000 • 2 bed • 1 bath • 1876 ft²
5 bedroom detached house for sale in Chapel Street, Ryarsh, West Malling, ME19 — £1,250,000 • 5 bed • 3 bath • 2664 ft²






























































































