Large plot, gated driveway and double garage — ideal for families and commuters..
Five bedrooms including master with en-suite
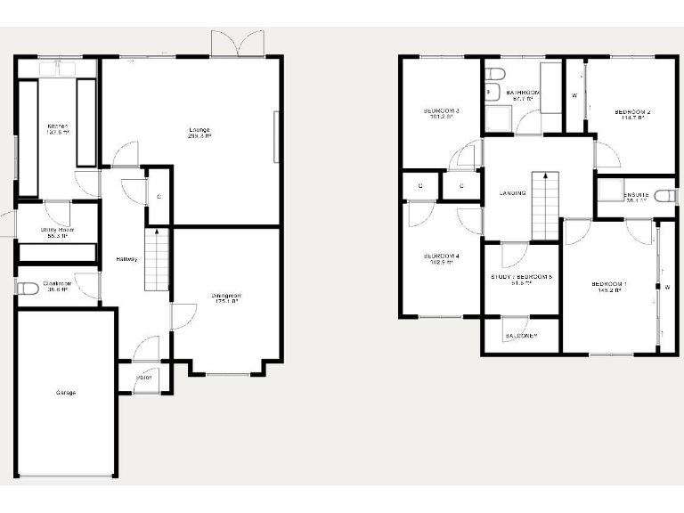
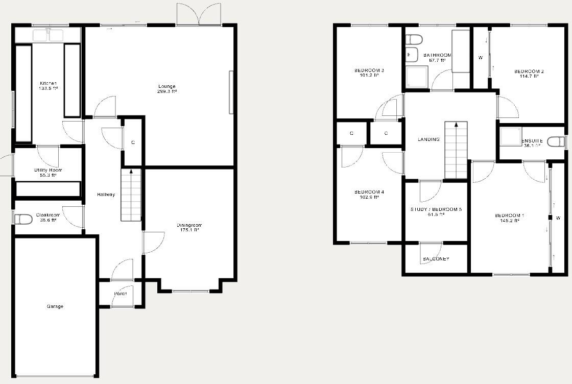
Set on a large plot in comfortable suburbia, this five-bedroom detached house blends 1970s character with modern fittings across a compact footprint. The home offers flexible living with two reception rooms, a fitted kitchen, utility and cloakroom on the ground floor, and five bedrooms upstairs including a master with en-suite and a bedroom with a private balcony.
Outdoor space is a strong asset: a long rear garden (described as substantial) and a private gated driveway leading to a double garage deliver excellent parking and storage. Practical comforts include double glazing and gas central heating; local amenities, good schools and fast transport links make the location family-friendly and commuter-ready.
Room sizes are generally average and ceiling heights are standard, reflecting the 1970s build and a smaller overall internal size. The property has been modernised in parts (kitchen and some reception areas) but retains mid-century elements and may need further updating to suit contemporary tastes.
This house suits families needing multiple bedrooms, excellent outdoor space and off-road parking, or buyers seeking a sizeable plot with scope for landscaping or selective improvement. Freehold tenure, low local crime and good digital connectivity add practical appeal.
5 bedroom semi-detached house for sale in Hollywood Lane, Wainscott, Rochester, ME3 — £650,000 • 5 bed • 1 bath • 1683 ft²
4 bedroom detached house for sale in Grant Road, Wainscott, Rochester, ME3 8EE, ME3 — £625,000 • 4 bed • 3 bath • 1507 ft²
6 bedroom detached house for sale in Hollywood Lane, Wainscott, Rochester, Kent. ME3 — £780,000 • 6 bed • 4 bath • 3068 ft²
4 bedroom detached house for sale in Grant Road, Wainscott, Rochester, ME3 8EE, ME3 — £600,000 • 4 bed • 2 bath • 1648 ft²
3 bedroom detached house for sale in Eglington Drive, Wainscott, Rochester, Kent, ME3 — £425,000 • 3 bed • 2 bath • 1229 ft²
5 bedroom detached house for sale in Maidstone Road, Chatham, Kent, ME4 — £850,000 • 5 bed • 3 bath • 1706 ft²


































































































