NW9 5DY - 3 bedroom terraced house for sale in Annesley Avenue, Colin…

View on Property Piper

3 bedroom terraced house for sale in Annesley Avenue, Colindale, London, NW9

Summary - 46 ANNESLEY AVENUE, COLINDALE, LONDON, LONDON NW9 5DY

3 bed 1 bath Terraced

Near Colindale Station (Northern Line) — convenient commuting links
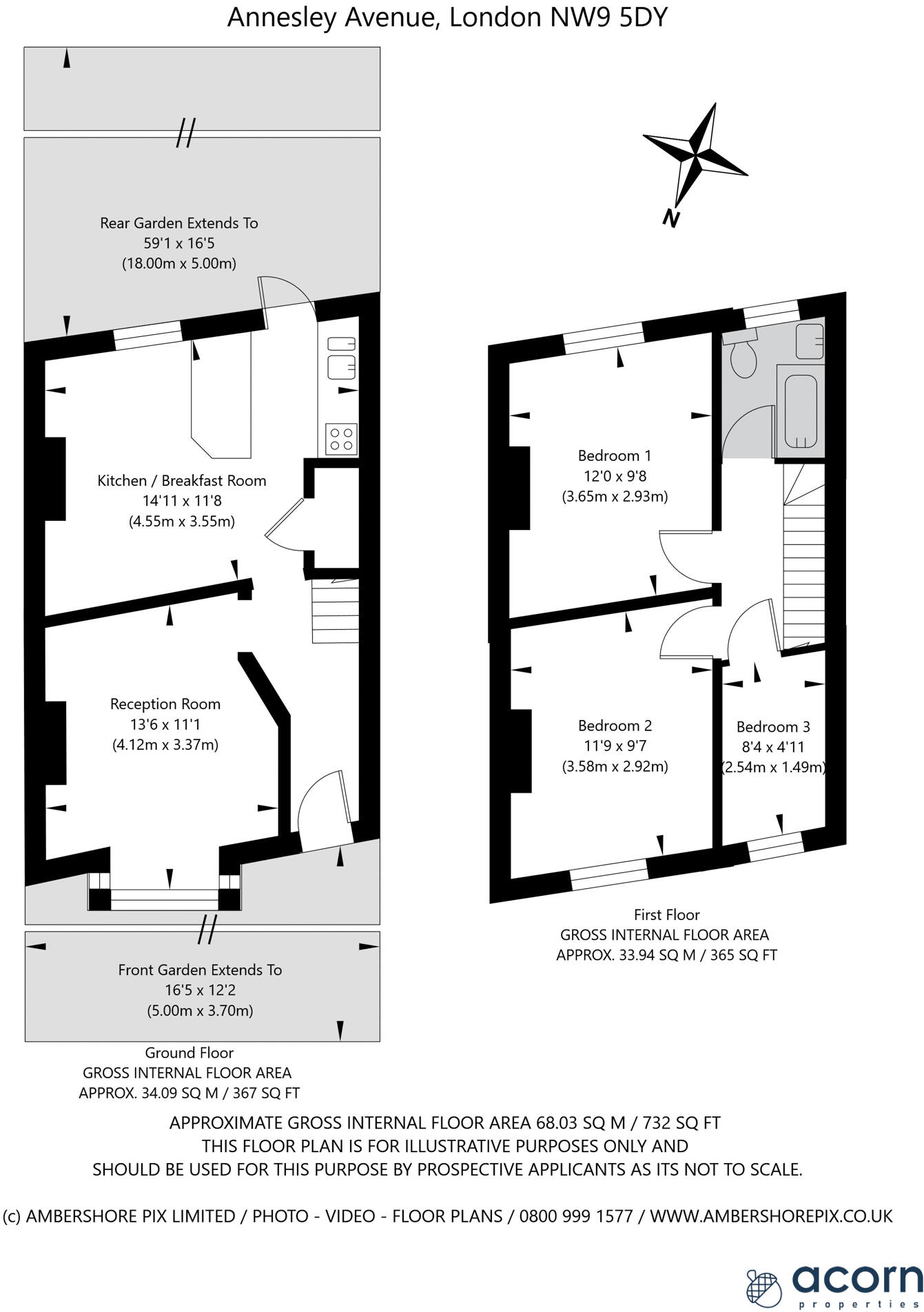
Private rear garden reported as approximately 60 feet
Three bedrooms; two doubles and one single, family bathroom
Total area about 732 sq ft — compact family footprint
Freehold tenure with period mid-terrace character
Property dated in places; requires cosmetic updating
Solid brick walls likely uninsulated; energy improvements advised
No mention of off-street parking; parking likely on-street only
Set on a residential Colindale street, this three-bedroom mid-terrace offers practical family accommodation and clear rental potential. The ground floor has a front reception and a kitchen/diner that opens onto a private garden, creating useful indoor–outdoor flow. Two double bedrooms, a single bedroom and a family bathroom sit upstairs. The house totals about 732 sq ft and is offered as freehold.

The location is a strong selling point: Colindale Station (Northern Line) and local supermarkets are within easy reach, making commuting and everyday shopping straightforward. Local schools rated Good are nearby and the area is popular with young families and students, supporting both owner-occupier and lettings demand.

The property is dated in places and will benefit from cosmetic updating and possible energy-efficiency improvements. The solid-brick walls are likely uninsulated and the glazing’s installation date is unknown. There is no mention of off-street parking. These are realistic renovation opportunities for buyers seeking added value or a straightforward family move-in with staged improvements.

In short: a compact, well-located period terrace with a long rear garden and clear scope for uplift through refurbishment and insulation works. Suitable for a young family wanting transport links and outside space, or an investor targeting consistent local demand.

Property Details

Brochure Descriptions

Image Descriptions

Floorplan Description

Rooms

Textual Property Features

Detected Visual Features

EPC Details

Nearby Schools

Nearest Bars And Restaurants

,,,,}

Nearest General Shops

,,}

Nearest Grocery shops

,,}

Nearest Supermarkets

,,}

Nearest Religious buildings

,,}

Nearest Medical buildings

,,,}

Nearest Airports

,}

Nearest Leisure Facilities

,,,,}

Nearest Tourist attractions

,,}

Nearest Train stations

,,,,}

Nearest Bus stations and stops

,,,,}

Nearest Hotels

,,}

Tags

Local Market Stats

AirBnB Data

Meta

High Res Images

Compatible Images

Low res Images

Thumbnails

Raw Images

High Res Floorplan Images

Compatible Floorplan Images

Low res Floorplan Images

FloorplanImages Thumbnail

Raw Floorplan Images