Turn-key two-bed with garage, garden and excellent commuter links — closing date set.
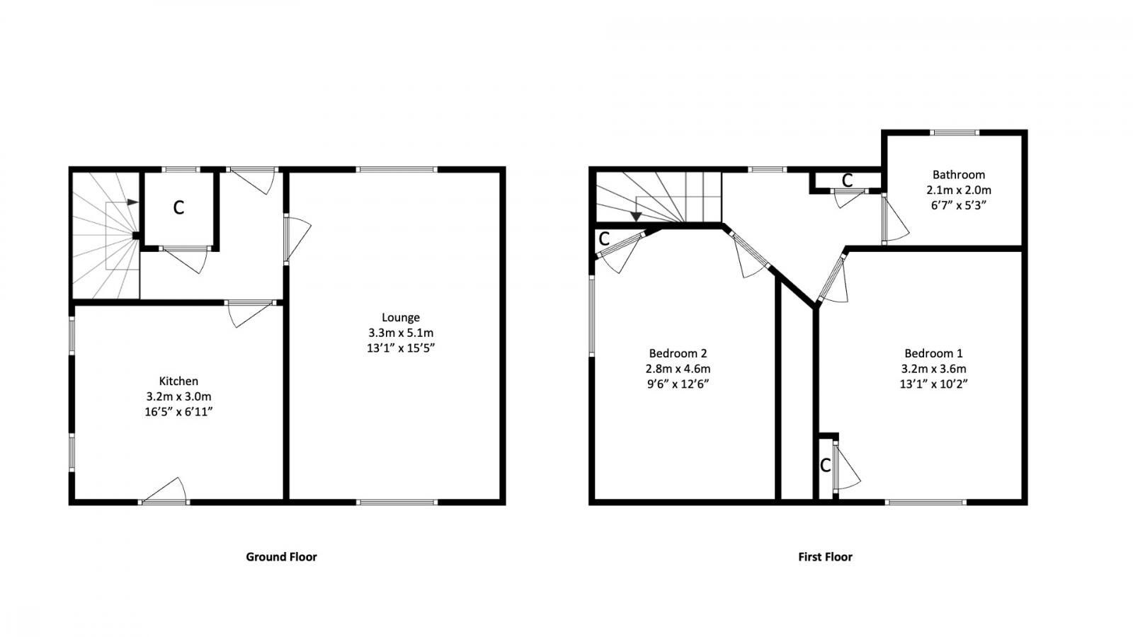
- Two bedrooms and one modern shower room
- Small overall size: approx. 592 sq ft
- Turn-key condition: contemporary kitchen and decor
- Enclosed rear garden with raised decking
- Monoblock driveway and detached garage (off-street parking)
- Gas central heating and double glazing
- Excellent mobile signal and fast broadband
- Located in a very deprived outer-city area; tenure unknown
A tidy, ready-to-move-in two-bedroom semi-detached home on Holytown Road, offered with a set closing date of Thursday 18/09 at 12pm. The house is presented in turn-key condition with a modern fitted kitchen, a bright lounge and a contemporary shower room — suitable for first-time buyers, downsizers or commuters.
Outside there’s a Monoblock driveway, detached garage and an enclosed rear garden with raised decking ideal for outdoor dining. Practical features include gas central heating, double glazing, excellent mobile signal and fast broadband — useful for home working or streaming.
Be aware this is a small property (approximately 592 sq ft) in an area classified as outer city hardship / very deprived. Tenure is unknown and common-area or service charges (if any) are not specified. The compact size limits living and storage space, so viewings should check layout suitability.
Overall this is a compact, low-maintenance home in a convenient location with good transport links to the M8 and Holytown train station. The asking price reflects the size and local market; prompt viewing is recommended because a closing date has been set.
2 bedroom end of terrace house for sale in Main Street, Holytown, Motherwell, ML1 — £135,000 • 2 bed • 1 bath
2 bedroom semi-detached house for sale in Barbeth Way, Cumbernauld, Glasgow, North Lanarkshire, G67 — £165,000 • 2 bed • 1 bath • 664 ft²
3 bedroom end of terrace house for sale in Wilkie Drive, Holytown, Motherwell, ML1 — £180,000 • 3 bed • 2 bath • 786 ft²
2 bedroom semi-detached house for sale in 32d Sherry Avenue, ML1 — £125,000 • 2 bed • 1 bath • 600 ft²
2 bedroom semi-detached house for sale in Heatherbank Walk, Airdrie, North Lanarkshire, ML6 — £110,000 • 2 bed • 1 bath • 514 ft²
3 bedroom semi-detached house for sale in Main Street, Holytown, ML1 — £169,995 • 3 bed • 2 bath • 723 ft²






















































































































