Compact three-bedroom flat with outdoor space near stations and parks.
Private patio plus well-kept communal gardens
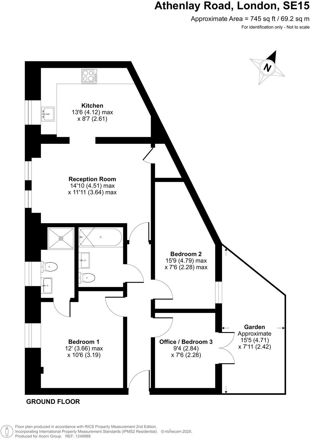
Set within a modern townhouse block on Athenlay Road, this ground-floor three-bedroom flat offers practical living across 745 sqft, well suited to young families or professionals wanting proximity to green space and transport. The reception room is bright and the neutrally decorated interiors allow immediate move-in or simple personalization. A private patio plus communal gardens provide outdoor space that’s rare for ground-floor flats in the area.
The building was constructed between 2007–2011 and benefits from double glazing and mains gas central heating via a boiler and radiators. Local transport is strong — Honor Oak Park and Nunhead stations are within walking distance — and the neighbourhood has a good selection of schools, parks and everyday amenities, making school runs and commutes straightforward.
Practical costs and tenure are transparent: this is a leasehold property with about 107 years remaining, a service charge around £2,000 per year and ground rent of £200 per year. The flat’s 745 sqft footprint is compact for three bedrooms, so buyers should expect efficient room layouts rather than expansive living space. No flooding risk is recorded and local crime levels are low.
This property will suit buyers seeking a well-located, low-maintenance home with outdoor space, or investors looking for a lettable three-bedroom in an established Inner City area. If you prefer large, open-plan living or a long lease over 125 years, note the modest lease length and service costs when weighing this purchase.
3 bedroom flat for sale in Athenlay Road, Nunhead, London, SE15 — £465,000 • 3 bed • 2 bath • 750 ft²
2 bedroom maisonette for sale in Athenlay Road, Peckham, SE15 — £500,000 • 2 bed • 1 bath • 575 ft²
4 bedroom terraced house for sale in Athenlay Road, Nunhead, SE15 — £1,175,000 • 4 bed • 2 bath • 2040 ft²
2 bedroom flat for sale in Soames Street, London, SE15 — £630,000 • 2 bed • 1 bath • 619 ft²
2 bedroom flat for sale in Athenlay Road, Nunhead, SE15 — £550,000 • 2 bed • 1 bath • 675 ft²
2 bedroom apartment for sale in Wat Tyler Road, London, SE3 — £500,000 • 2 bed • 1 bath • 598 ft²


































































































































